|
|
Kurashiki, Okayama Prefecture
岡山県倉敷市
|
|
Ryobibasu "Kaishin Bridge" car 1.9km
両備バス「開進橋」車1.9km
|
|
24-hour ventilation system ・ With mist sauna ・ Bus 1 tsubo or more
24時間換気システム・ミストサウナ付・バス1坪以上
|
|
All-electric ・ IH system kitchen ・ Face-to-face kitchen
オール電化・IHシステムキッチン・対面キッチン
|
Features pickup 特徴ピックアップ | | Solar power system / Parking three or more possible / System kitchen / Yang per good / All room storage / Shaping land / Face-to-face kitchen / Shutter - garage / IH cooking heater / Dish washing dryer / Walk-in closet / All-electric / roof balcony 太陽光発電システム /駐車3台以上可 /システムキッチン /陽当り良好 /全居室収納 /整形地 /対面式キッチン /シャッタ-車庫 /IHクッキングヒーター /食器洗乾燥機 /ウォークインクロゼット /オール電化 /ルーフバルコニー |
Price 価格 | | 29,800,000 yen 2980万円 |
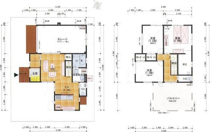
Floor plan 間取り | | 3LDK + S (storeroom) 3LDK+S(納戸) |
Units sold 販売戸数 | | 1 units 1戸 |
Land area 土地面積 | | 172.9 sq m (52.30 tsubo) (Registration) 172.9m2(52.30坪)(登記) |
Building area 建物面積 | | 136.09 sq m (41.16 tsubo) (Registration) 136.09m2(41.16坪)(登記) |
Driveway burden-road 私道負担・道路 | | Nothing, Northwest 6m width 無、北西6m幅 |
Completion date 完成時期(築年月) | | February 2009 2009年2月 |
Address 住所 | | Kurashiki, Okayama Prefecture Tsurajimachotsurushinden 岡山県倉敷市連島町鶴新田 |
Traffic 交通 | | Ryobibasu "Kaishin Bridge" car 1.9km 両備バス「開進橋」車1.9km |
Related links 関連リンク | | [Related Sites of this company] 【この会社の関連サイト】 |
Person in charge 担当者より | | Personnel Kishimoto Kei示 Age: 30 Daigyokai experience: on the basis of the experience gained up to 10 years from now, We always try to enjoy trade peace of mind to our customers. 担当者岸本圭示年齢:30代業界経験:10年今まで培った経験をもとに、お客様に安心頂ける取引を常に心掛けております。 |
Contact お問い合せ先 | | TEL: 0800-809-8570 [Toll free] mobile phone ・ Also available from PHS Caller ID is not notified Please contact the "saw SUUMO (Sumo)" If it does not lead, If the real estate company TEL:0800-809-8570【通話料無料】携帯電話・PHSからもご利用いただけます 発信者番号は通知されません 「SUUMO(スーモ)を見た」と問い合わせください つながらない方、不動産会社の方は
|
Building coverage, floor area ratio 建ぺい率・容積率 | | 60% ・ 200% 60%・200% |
Time residents 入居時期 | | Consultation 相談 |
Land of the right form 土地の権利形態 | | Ownership 所有権 |
Structure and method of construction 構造・工法 | | Wooden 2-story 木造2階建 |
Use district 用途地域 | | Semi-industrial 準工業 |
Overview and notices その他概要・特記事項 | | Contact: Kishimoto Kei示, Facilities: Public Water Supply, All-electric, Parking: Garage 担当者:岸本圭示、設備:公営水道、オール電化、駐車場:車庫 |
Company profile 会社概要 | | <Mediation> Okayama Governor (1) No. 005265 (Ltd.) best partner Yubinbango710-0847 Kurashiki, Okayama Prefecture Higashitomii 862-1 <仲介>岡山県知事(1)第005265号(株)ベストパートナー〒710-0847 岡山県倉敷市東富井862-1 |