|
|
Kurashiki, Okayama Prefecture
岡山県倉敷市
|
|
JR Honshi-Bisan Line "Kojima" walk 30 minutes
JR本四備讃線「児島」歩30分
|
|
Property number: B-084 Kojima junior high school walk 7 minutes! A quiet residential area! Yes attached building (about 6 quires)
物件番号:B-084 児島中学校徒歩7分!閑静な住宅地!付属建物(約6帖)あり
|
|
Land 50 square meters or more, Facing south, A quiet residential area, Or more before road 6m, 2-story, All room 6 tatami mats or more, Located on a hill, Development subdivision in
土地50坪以上、南向き、閑静な住宅地、前道6m以上、2階建、全居室6畳以上、高台に立地、開発分譲地内
|
Features pickup 特徴ピックアップ | | Land 50 square meters or more / Facing south / A quiet residential area / Or more before road 6m / 2-story / All room 6 tatami mats or more / Located on a hill / Development subdivision in 土地50坪以上 /南向き /閑静な住宅地 /前道6m以上 /2階建 /全居室6畳以上 /高台に立地 /開発分譲地内 |
Price 価格 | | 11.8 million yen 1180万円 |
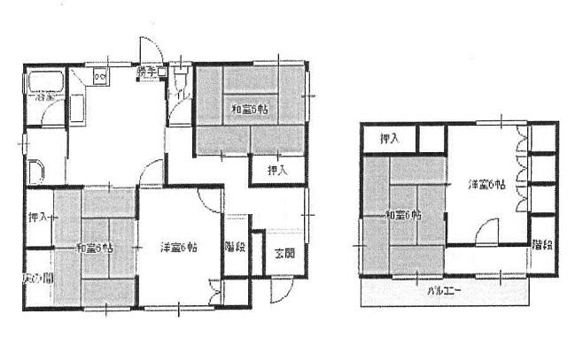
Floor plan 間取り | | 5DK 5DK |
Units sold 販売戸数 | | 1 units 1戸 |
Land area 土地面積 | | 193.82 sq m (registration) 193.82m2(登記) |
Building area 建物面積 | | 114.8 sq m (registration) 114.8m2(登記) |
Driveway burden-road 私道負担・道路 | | Nothing, South 6m width 無、南6m幅 |
Completion date 完成時期(築年月) | | July 1980 1980年7月 |
Address 住所 | | Kurashiki, Okayama Prefecture Kojimaogawa 4 岡山県倉敷市児島小川4 |
Traffic 交通 | | JR Honshi-Bisan Line "Kojima" walk 30 minutes JR本四備讃線「児島」歩30分
|
Related links 関連リンク | | [Related Sites of this company] 【この会社の関連サイト】 |
Contact お問い合せ先 | | TEL: 0800-603-6410 [Toll free] mobile phone ・ Also available from PHS Caller ID is not notified Please contact the "saw SUUMO (Sumo)" If it does not lead, If the real estate company TEL:0800-603-6410【通話料無料】携帯電話・PHSからもご利用いただけます 発信者番号は通知されません 「SUUMO(スーモ)を見た」と問い合わせください つながらない方、不動産会社の方は
|
Building coverage, floor area ratio 建ぺい率・容積率 | | 60% ・ 200% 60%・200% |
Time residents 入居時期 | | Consultation 相談 |
Land of the right form 土地の権利形態 | | Ownership 所有権 |
Structure and method of construction 構造・工法 | | Light-gauge steel 2-story 軽量鉄骨2階建 |
Use district 用途地域 | | Semi-industrial 準工業 |
Overview and notices その他概要・特記事項 | | Parking: car space 駐車場:カースペース |
Company profile 会社概要 | | <Mediation> Okayama Governor (8) No. 002875 (Ltd.) Yorozuya Yubinbango710-0142 Kurashiki City, Okayama Prefecture forest 2114-3 <仲介>岡山県知事(8)第002875号(株)萬屋〒710-0142 岡山県倉敷市林2114-3 |