|
|
Kurashiki, Okayama Prefecture
岡山県倉敷市
|
|
Ihara railway "Kibi no Makibi" walk 18 minutes
井原鉄道「吉備真備」歩18分
|
|
A quiet residential area, Parking three or more possible, Nantei, Warm water washing toilet seat, Yang per good, Flat terrain
閑静な住宅地、駐車3台以上可、南庭、温水洗浄便座、陽当り良好、平坦地
|
|
bath ・ Kitchen exchange ・ Toilet refurbished
風呂・キッチン交換・トイレ改装済
|
Features pickup 特徴ピックアップ | | Parking three or more possible / Yang per good / A quiet residential area / Warm water washing toilet seat / Nantei / Flat terrain 駐車3台以上可 /陽当り良好 /閑静な住宅地 /温水洗浄便座 /南庭 /平坦地 |
Price 価格 | | 8.8 million yen 880万円 |
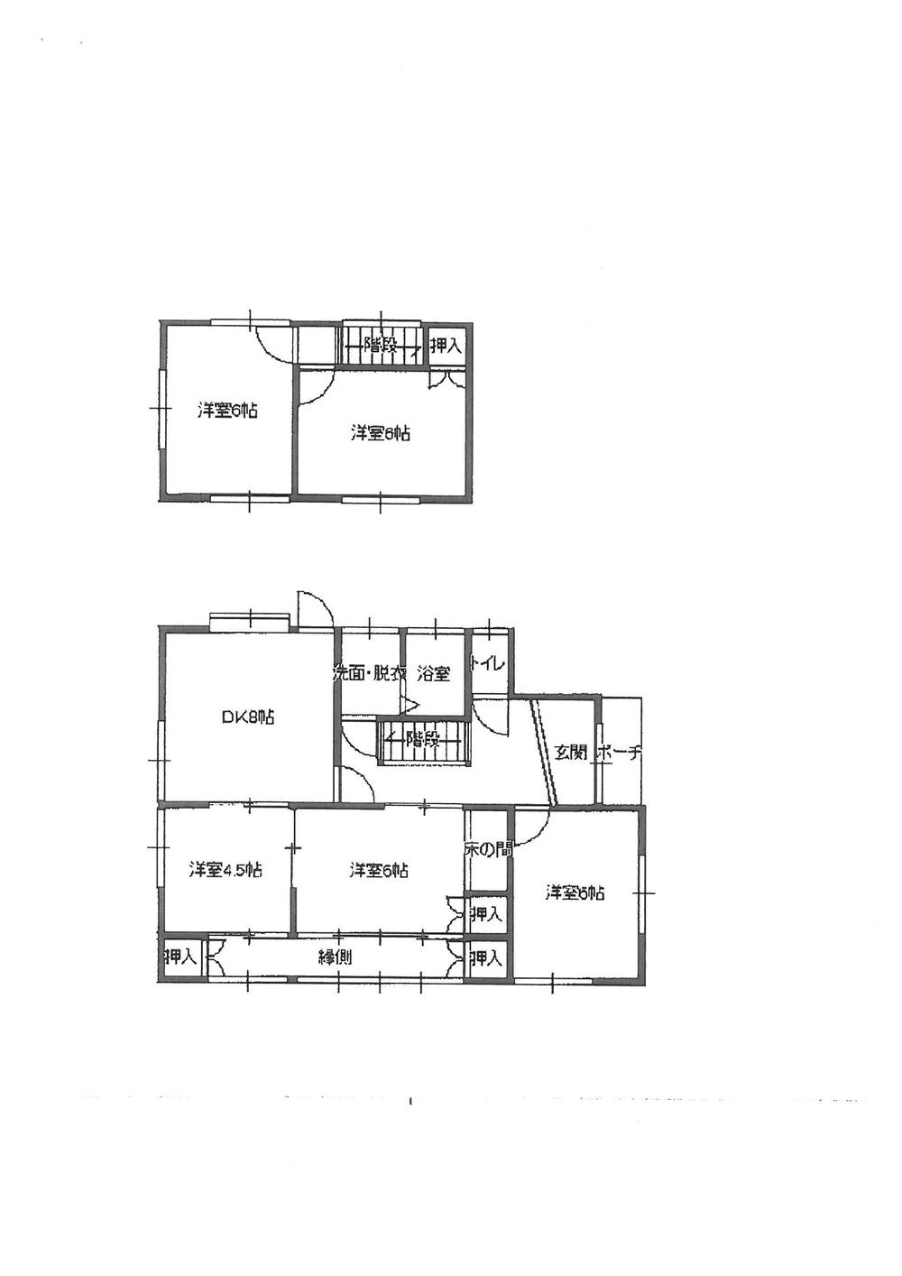
Floor plan 間取り | | 5DK 5DK |
Units sold 販売戸数 | | 1 units 1戸 |
Land area 土地面積 | | 198.38 sq m (registration) 198.38m2(登記) |
Building area 建物面積 | | 90.24 sq m (registration) 90.24m2(登記) |
Driveway burden-road 私道負担・道路 | | Nothing, North 4m width (contact the road width 13m) 無、北4m幅(接道幅13m) |
Completion date 完成時期(築年月) | | August 1977 1977年8月 |
Address 住所 | | Kurashiki, Okayama Prefecture Mabi-cho Ozaki 1017-39 岡山県倉敷市真備町尾崎1017-39 |
Traffic 交通 | | Ihara railway "Kibi no Makibi" walk 18 minutes Ihara railway "Bicchu Goimoto" walk 25 minutes 井原鉄道「吉備真備」歩18分 井原鉄道「備中呉妹」歩25分
|
Contact お問い合せ先 | | (Yes) Akazawa friendly TEL: 0800-603-6514 [Toll free] mobile phone ・ Also available from PHS Caller ID is not notified Please contact the "saw SUUMO (Sumo)" If it does not lead, If the real estate company (有)あかざわフレンドリーTEL:0800-603-6514【通話料無料】携帯電話・PHSからもご利用いただけます 発信者番号は通知されません 「SUUMO(スーモ)を見た」と問い合わせください つながらない方、不動産会社の方は
|
Building coverage, floor area ratio 建ぺい率・容積率 | | 60% ・ 200% 60%・200% |
Time residents 入居時期 | | Consultation 相談 |
Land of the right form 土地の権利形態 | | Ownership 所有権 |
Structure and method of construction 構造・工法 | | Wooden 2-story 木造2階建 |
Use district 用途地域 | | One dwelling 1種住居 |
Overview and notices その他概要・特記事項 | | Facilities: Public Water Supply, This sewage, Individual LPG, Parking: car space 設備:公営水道、本下水、個別LPG、駐車場:カースペース |
Company profile 会社概要 | | <Mediation> Okayama Governor (2) No. 004971 (with) Akazawa friendly Yubinbango712-8032 Kurashiki, Okayama Prefecture Kitase 6-11-28 <仲介>岡山県知事(2)第004971号(有)あかざわフレンドリー〒712-8032 岡山県倉敷市北畝6-11-28 |