Used Homes » Chugoku » Okayama Prefecture » Kurashiki
 
| | Kurashiki, Okayama Prefecture 岡山県倉敷市 |
| JR Honshi-Bisan Line "see tree" walk 19 minutes JR本四備讃線「木見」歩19分 |
| Land more than 100 square meters, Corner lot, Parking two Allowed, Toilet 2 places, Facing south, Immediate Available, See the mountain, System kitchen, Yang per good, Flat to the station, A quiet residential area, Or more before road 6m, Garden more than 10 square meters, Idyllic 土地100坪以上、角地、駐車2台可、トイレ2ヶ所、南向き、即入居可、山が見える、システムキッチン、陽当り良好、駅まで平坦、閑静な住宅地、前道6m以上、庭10坪以上、田園風 |
| Land more than 100 square meters, Corner lot, Parking two Allowed, Toilet 2 places, Facing south, Immediate Available, See the mountain, System kitchen, Yang per good, Flat to the station, A quiet residential area, Or more before road 6m, Garden more than 10 square meters, Idyll, Washbasin with shower, Shutter garage, 3 face lighting, Barrier-free, Bathroom 1 tsubo or more, 2-story, Warm water washing toilet seat, Nantei, Mu front building, Ventilation good, Or more ceiling height 2.5m, Flat terrain 土地100坪以上、角地、駐車2台可、トイレ2ヶ所、南向き、即入居可、山が見える、システムキッチン、陽当り良好、駅まで平坦、閑静な住宅地、前道6m以上、庭10坪以上、田園風景、シャワー付洗面台、シャッター車庫、3面採光、バリアフリー、浴室1坪以上、2階建、温水洗浄便座、南庭、前面棟無、通風良好、天井高2.5m以上、平坦地 |
Features pickup 特徴ピックアップ | | Parking two Allowed / Immediate Available / Land more than 100 square meters / See the mountain / Facing south / System kitchen / Yang per good / Flat to the station / A quiet residential area / Or more before road 6m / Corner lot / Garden more than 10 square meters / Idyll / Washbasin with shower / Shutter - garage / 3 face lighting / Barrier-free / Toilet 2 places / Bathroom 1 tsubo or more / 2-story / Warm water washing toilet seat / Nantei / Mu front building / Ventilation good / Or more ceiling height 2.5m / Flat terrain 駐車2台可 /即入居可 /土地100坪以上 /山が見える /南向き /システムキッチン /陽当り良好 /駅まで平坦 /閑静な住宅地 /前道6m以上 /角地 /庭10坪以上 /田園風景 /シャワー付洗面台 /シャッタ-車庫 /3面採光 /バリアフリー /トイレ2ヶ所 /浴室1坪以上 /2階建 /温水洗浄便座 /南庭 /前面棟無 /通風良好 /天井高2.5m以上 /平坦地 | Price 価格 | | 19,800,000 yen 1980万円 | Floor plan 間取り | | 4LDK + S (storeroom) 4LDK+S(納戸) | Units sold 販売戸数 | | 1 units 1戸 | Total units 総戸数 | | 1 units 1戸 | Land area 土地面積 | | 354.66 sq m (registration) 354.66m2(登記) | Building area 建物面積 | | 202.46 sq m (registration) 202.46m2(登記) | Driveway burden-road 私道負担・道路 | | Nothing, North 6m width (contact the road width 22m), Southwest 2.3m width 無、北6m幅(接道幅22m)、南西2.3m幅 | Completion date 完成時期(築年月) | | December 2005 2005年12月 | Address 住所 | | Kurashiki, Okayama Prefecture forest 岡山県倉敷市林 | Traffic 交通 | | JR Honshi-Bisan Line "see tree" walk 19 minutes JR本四備讃線「木見」歩19分
| Person in charge 担当者より | | Rep Yuasa 担当者湯浅 | Contact お問い合せ先 | | Co., Ltd. Wise Corporation TEL: 0120-831-698 "saw SUUMO (Sumo)" and please contact (株)ワイズコーポレーションTEL:0120-831-698「SUUMO(スーモ)を見た」と問い合わせください | Building coverage, floor area ratio 建ぺい率・容積率 | | 60% ・ 200% 60%・200% | Time residents 入居時期 | | Immediate available 即入居可 | Land of the right form 土地の権利形態 | | Ownership 所有権 | Structure and method of construction 構造・工法 | | Wooden 2-story (framing method) 木造2階建(軸組工法) | Use district 用途地域 | | One dwelling 1種住居 | Other limitations その他制限事項 | | Regulations have by the Landscape Act 景観法による規制有 | Overview and notices その他概要・特記事項 | | Contact: Yuasa, Facilities: Public Water Supply, Individual septic tank, Individual LPG, Parking: Car Port 担当者:湯浅、設備:公営水道、個別浄化槽、個別LPG、駐車場:カーポート | Company profile 会社概要 | | <Mediation> Okayama Governor (2) No. 005134 (Ltd.) Wise Corporation Yubinbango703-8243 Shimizu, Naka-ku, Okayama, Okayama Prefecture 273-7 <仲介>岡山県知事(2)第005134号(株)ワイズコーポレーション〒703-8243 岡山県岡山市中区清水273-7 |
Local appearance photo現地外観写真  Local (12 May 2013) is taken carefully your Japanese-style house.
現地(2013年12月)撮影丁寧にお使いの和風住宅です。
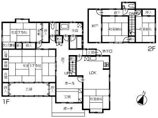
Floor plan間取り図  19,800,000 yen, 4LDK + S (storeroom), Land area 354.66 sq m , Building area 202.46 sq m room is also suitable for a large number of people of your family because it is spread.
1980万円、4LDK+S(納戸)、土地面積354.66m2、建物面積202.46m2 お部屋が広めなので大人数のご家族にも適しています。
Non-living roomリビング以外の居室  Indoor (12 May 2013) Shooting 17.5 tatami Japanese-style room
室内(2013年12月)撮影 17.5畳の和室
Livingリビング  Indoor (12 May 2013) Shooting Barrier-free LDK of.
室内(2013年12月)撮影 バリアフリーのLDK。
Kitchenキッチン  Indoor (12 May 2013) Shooting The kitchen has become a bright L-shaped.
室内(2013年12月)撮影 キッチンは明るいL型となっております。
Non-living roomリビング以外の居室  Indoor (12 May 2013) Shooting
室内(2013年12月)撮影
Toiletトイレ  Indoor (12 May 2013) shooting toilet is located on the first floor and the second floor.
室内(2013年12月)撮影トイレは1階と2階にあります。
Wash basin, toilet洗面台・洗面所  Indoor (12 May 2013) Shooting
室内(2013年12月)撮影
Bathroom浴室  Indoor (12 May 2013) Shooting
室内(2013年12月)撮影
Local appearance photo現地外観写真  Local (12 May 2013) Shooting
現地(2013年12月)撮影
Garden庭  Local (12 May 2013) Shooting
現地(2013年12月)撮影
Entrance玄関  Indoor (12 May 2013) Shooting
室内(2013年12月)撮影
Local photos, including front road前面道路含む現地写真  Local (12 May 2013) Shooting
現地(2013年12月)撮影
Location
|