1977October
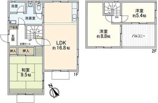
12.8 million yen, 3LDK, 91.94 sq m
Used Homes » Chugoku » Okayama Prefecture » Kurashiki
 
| | Kurashiki, Okayama Prefecture 岡山県倉敷市 |
| JR Sanyo Line "Kurashiki" bus 13 minutes off the beaten path shrine before walking 5 minutes JR山陽本線「倉敷」バス13分穴場神社前歩5分 |
Price 価格 | | 12.8 million yen 1280万円 | Floor plan 間取り | | 3LDK 3LDK | Units sold 販売戸数 | | 1 units 1戸 | Land area 土地面積 | | 180.62 sq m (registration) 180.62m2(登記) | Building area 建物面積 | | 91.94 sq m (registration) 91.94m2(登記) | Driveway burden-road 私道負担・道路 | | Nothing, Southwest 4m width (contact the road width 10.8m) 無、南西4m幅(接道幅10.8m) | Completion date 完成時期(築年月) | | October 1977 1977年10月 | Address 住所 | | Kurashiki, Okayama Prefecture Nakajima 岡山県倉敷市中島 | Traffic 交通 | | JR Sanyo Line "Kurashiki" bus 13 minutes off the beaten path shrine before walking 5 minutes JR山陽本線「倉敷」バス13分穴場神社前歩5分
| Person in charge 担当者より | | Person in charge of Suwon Shinsuke 担当者水原慎介 | Contact お問い合せ先 | | Mitsui Rehouse Kurashiki shop Mitsui Fudosan Realty China (Ltd.) TEL: 0120-321678 [Toll free] Please contact the "saw SUUMO (Sumo)" 三井のリハウス倉敷店三井不動産リアルティ中国(株)TEL:0120-321678【通話料無料】「SUUMO(スーモ)を見た」と問い合わせください | Building coverage, floor area ratio 建ぺい率・容積率 | | 60% ・ 200% 60%・200% | Time residents 入居時期 | | Immediate available 即入居可 | Land of the right form 土地の権利形態 | | Ownership 所有権 | Structure and method of construction 構造・工法 | | Light-gauge steel 2-story 軽量鉄骨2階建 | Use district 用途地域 | | Semi-industrial 準工業 | Overview and notices その他概要・特記事項 | | Contact: Suwon Shinsuke 担当者:水原慎介 | Company profile 会社概要 | | <Mediation> Minister of Land, Infrastructure and Transport (5) Article 005 169 issue of Mitsui Rehouse Kurashiki shop Mitsui Fudosan Realty China Co., Ltd. Yubinbango710-0055 Kurashiki City, Okayama Prefecture Achi 2-9-10 Fujitokubussan building first floor <仲介>国土交通大臣(5)第005169号三井のリハウス倉敷店三井不動産リアルティ中国(株)〒710-0055 岡山県倉敷市阿知2-9-10 藤徳物産ビル1階 |
 Local appearance photo
現地外観写真
 Floor plan
間取り図
Location
|