1964August
5.8 million yen, 4LDK, 67.98 sq m
Used Homes » Kansai » Osaka prefecture » Daito

| | Osaka Prefecture Daito 大阪府大東市 |
| JR katamachi line "Shijonawate" walk 7 minutes JR片町線「四条畷」歩7分 |
| Interior renovation completed, Facing south, Within a 10-minute walk station 内装リフォーム済、南向き、駅徒歩10分以内 |
Features pickup 特徴ピックアップ | | Interior renovation / Facing south / Yang per good / Japanese-style room 内装リフォーム /南向き /陽当り良好 /和室 | Price 価格 | | 5.8 million yen 580万円 | Floor plan 間取り | | 4LDK 4LDK | Units sold 販売戸数 | | 1 units 1戸 | Land area 土地面積 | | 45.91 sq m (registration) 45.91m2(登記) | Building area 建物面積 | | 67.98 sq m (registration) 67.98m2(登記) | Driveway burden-road 私道負担・道路 | | 5.89 sq m , South 4m width 5.89m2、南4m幅 | Completion date 完成時期(築年月) | | August 1964 1964年8月 | Address 住所 | | Osaka Prefecture Daito City Hojo 2 大阪府大東市北条2 | Traffic 交通 | | JR katamachi line "Shijonawate" walk 7 minutes JR片町線「四条畷」歩7分
| Related links 関連リンク | | [Related Sites of this company] 【この会社の関連サイト】 | Contact お問い合せ先 | | (Ltd.) Nakatomi building contractors TEL: 0800-603-1649 [Toll free] mobile phone ・ Also available from PHS Caller ID is not notified Please contact the "saw SUUMO (Sumo)" If it does not lead, If the real estate company (株)中富工務店TEL:0800-603-1649【通話料無料】携帯電話・PHSからもご利用いただけます 発信者番号は通知されません 「SUUMO(スーモ)を見た」と問い合わせください つながらない方、不動産会社の方は
| Building coverage, floor area ratio 建ぺい率・容積率 | | 60% ・ 200% 60%・200% | Time residents 入居時期 | | Consultation 相談 | Land of the right form 土地の権利形態 | | Ownership 所有権 | Structure and method of construction 構造・工法 | | Wooden 2-story 木造2階建 | Use district 用途地域 | | Two mid-high 2種中高 | Company profile 会社概要 | | <Mediation> governor of Osaka (6) No. 033657 (Ltd.) Nakatomi builders Yubinbango575-0063 Osaka shijonawate Seiryu 18-11 <仲介>大阪府知事(6)第033657号(株)中富工務店〒575-0063 大阪府四條畷市清瀧18-11 |
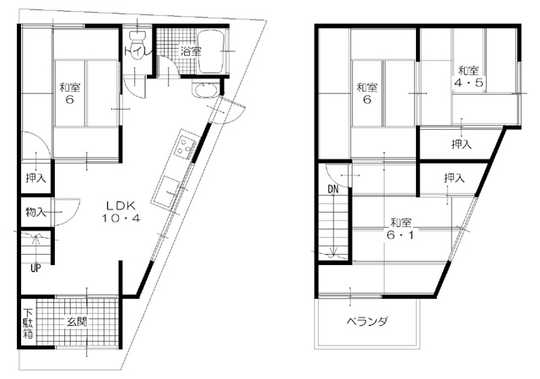
Floor plan間取り図  5.8 million yen, 4LDK, Land area 45.91 sq m , Building area 67.98 sq m
580万円、4LDK、土地面積45.91m2、建物面積67.98m2
Location
|