1985June
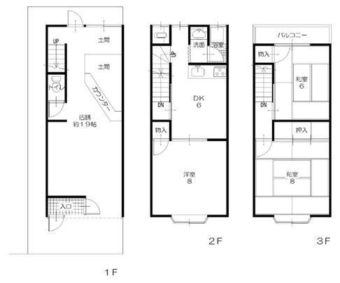
6.95 million yen, 3DK + S (storeroom), 93.45 sq m
Used Homes » Kansai » Osaka prefecture » Daito
 
| | Osaka Prefecture Daito 大阪府大東市 |
| JR katamachi line "Nozaki" walk 6 minutes JR片町線「野崎」歩6分 |
| House with store, Facing south, Within a 10-minute walk station 店舗付住宅、南向き、駅徒歩10分以内 |
Features pickup 特徴ピックアップ | | All room 6 tatami mats or more / Facing south / Yang per good 全居室6畳以上 /南向き /陽当り良好 | Price 価格 | | 6.95 million yen 695万円 | Floor plan 間取り | | 3DK + S (storeroom) 3DK+S(納戸) | Units sold 販売戸数 | | 1 units 1戸 | Land area 土地面積 | | 48.46 sq m (registration) 48.46m2(登記) | Building area 建物面積 | | 93.45 sq m (registration) 93.45m2(登記) | Driveway burden-road 私道負担・道路 | | 13.72 sq m , South 4m width 13.72m2、南4m幅 | Completion date 完成時期(築年月) | | June 1985 1985年6月 | Address 住所 | | Osaka Prefecture Daito Minamitsunobe cho 大阪府大東市南津の辺町 | Traffic 交通 | | JR katamachi line "Nozaki" walk 6 minutes JR片町線「野崎」歩6分
| Related links 関連リンク | | [Related Sites of this company] 【この会社の関連サイト】 | Contact お問い合せ先 | | (Ltd.) Nakatomi building contractors TEL: 0800-603-1649 [Toll free] mobile phone ・ Also available from PHS Caller ID is not notified Please contact the "saw SUUMO (Sumo)" If it does not lead, If the real estate company (株)中富工務店TEL:0800-603-1649【通話料無料】携帯電話・PHSからもご利用いただけます 発信者番号は通知されません 「SUUMO(スーモ)を見た」と問い合わせください つながらない方、不動産会社の方は
| Building coverage, floor area ratio 建ぺい率・容積率 | | 60% ・ 300% 60%・300% | Time residents 入居時期 | | Consultation 相談 | Land of the right form 土地の権利形態 | | Ownership 所有権 | Structure and method of construction 構造・工法 | | Steel frame three-story 鉄骨3階建 | Use district 用途地域 | | Quasi-residence 準住居 | Overview and notices その他概要・特記事項 | | Facilities: Public Water Supply, Centralized LPG 設備:公営水道、集中LPG | Company profile 会社概要 | | <Mediation> governor of Osaka (6) No. 033657 (Ltd.) Nakatomi builders Yubinbango575-0063 Osaka shijonawate Seiryu 18-11 <仲介>大阪府知事(6)第033657号(株)中富工務店〒575-0063 大阪府四條畷市清瀧18-11 |
 Local appearance photo
現地外観写真
Floor plan間取り図  6.95 million yen, 3DK + S (storeroom), Land area 48.46 sq m , Building area 93.45 sq m
695万円、3DK+S(納戸)、土地面積48.46m2、建物面積93.45m2
Location
|