1972December
5.5 million yen, 4DK, 64.39 sq m
Used Homes » Kansai » Osaka prefecture » Daito
 
| | Osaka Prefecture Daito 大阪府大東市 |
| JR katamachi line "Shijonawate" walk 12 minutes JR片町線「四条畷」歩12分 |
| Double-sided balcony, A quiet residential area, Following Japanese-style room 両面バルコニー、閑静な住宅地、続き和室 |
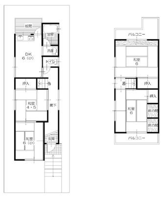
Features pickup 特徴ピックアップ | | Located on a hill / A quiet residential area / Japanese-style room / 2 or more sides balcony 高台に立地 /閑静な住宅地 /和室 /2面以上バルコニー | Price 価格 | | 5.5 million yen 550万円 | Floor plan 間取り | | 4DK 4DK | Units sold 販売戸数 | | 1 units 1戸 | Land area 土地面積 | | 71.52 sq m (registration) 71.52m2(登記) | Building area 建物面積 | | 64.39 sq m (registration) 64.39m2(登記) | Driveway burden-road 私道負担・道路 | | Nothing, West 5.5m width 無、西5.5m幅 | Completion date 完成時期(築年月) | | December 1972 1972年12月 | Address 住所 | | Osaka Prefecture Daito City Hojo 4 大阪府大東市北条4 | Traffic 交通 | | JR katamachi line "Shijonawate" walk 12 minutes JR片町線「四条畷」歩12分
| Related links 関連リンク | | [Related Sites of this company] 【この会社の関連サイト】 | Contact お問い合せ先 | | (Ltd.) Nakatomi building contractors TEL: 0800-603-1649 [Toll free] mobile phone ・ Also available from PHS Caller ID is not notified Please contact the "saw SUUMO (Sumo)" If it does not lead, If the real estate company (株)中富工務店TEL:0800-603-1649【通話料無料】携帯電話・PHSからもご利用いただけます 発信者番号は通知されません 「SUUMO(スーモ)を見た」と問い合わせください つながらない方、不動産会社の方は
| Building coverage, floor area ratio 建ぺい率・容積率 | | 60% ・ 200% 60%・200% | Time residents 入居時期 | | Consultation 相談 | Land of the right form 土地の権利形態 | | Ownership 所有権 | Structure and method of construction 構造・工法 | | Wooden 2-story 木造2階建 | Use district 用途地域 | | One middle and high 1種中高 | Overview and notices その他概要・特記事項 | | Facilities: Public Water Supply, City gas 設備:公営水道、都市ガス | Company profile 会社概要 | | <Mediation> governor of Osaka (6) No. 033657 (Ltd.) Nakatomi builders Yubinbango575-0063 Osaka shijonawate Seiryu 18-11 <仲介>大阪府知事(6)第033657号(株)中富工務店〒575-0063 大阪府四條畷市清瀧18-11 |
 Local appearance photo
現地外観写真
Floor plan間取り図  5.5 million yen, 4DK, Land area 71.52 sq m , Building area 64.39 sq m
550万円、4DK、土地面積71.52m2、建物面積64.39m2
Location
|