Used Homes » Kansai » Osaka prefecture » Daito
 
| | Osaka Prefecture Daito 大阪府大東市 |
| JR katamachi line "Nozaki" walk 2 minutes JR片町線「野崎」歩2分 |
| Price has dropped from 21.8 million yen. March to 18.8 million yen from 24 September 27 価格が2180万円より下がりました。平成24年9月27日より1880万円に |
Features pickup 特徴ピックアップ | | Super close / Flat to the station / A quiet residential area / Corner lot / 2-story / Ventilation good / Flat terrain スーパーが近い /駅まで平坦 /閑静な住宅地 /角地 /2階建 /通風良好 /平坦地 | Price 価格 | | 13.8 million yen 1380万円 | Floor plan 間取り | | 5DK 5DK | Units sold 販売戸数 | | 1 units 1戸 | Land area 土地面積 | | 128.36 sq m (registration) 128.36m2(登記) | Building area 建物面積 | | 92.31 sq m (registration) 92.31m2(登記) | Driveway burden-road 私道負担・道路 | | Nothing, East 4.2m width, North 4m width 無、東4.2m幅、北4m幅 | Completion date 完成時期(築年月) | | April 1982 1982年4月 | Address 住所 | | Osaka Prefecture Daito Minamitsunobe cho 大阪府大東市南津の辺町 | Traffic 交通 | | JR katamachi line "Nozaki" walk 2 minutes JR片町線「野崎」歩2分
| Contact お問い合せ先 | | TEL: 0800-603-2566 [Toll free] mobile phone ・ Also available from PHS Caller ID is not notified Please contact the "saw SUUMO (Sumo)" If it does not lead, If the real estate company TEL:0800-603-2566【通話料無料】携帯電話・PHSからもご利用いただけます 発信者番号は通知されません 「SUUMO(スーモ)を見た」と問い合わせください つながらない方、不動産会社の方は
| Building coverage, floor area ratio 建ぺい率・容積率 | | 60% ・ 200% 60%・200% | Time residents 入居時期 | | Consultation 相談 | Land of the right form 土地の権利形態 | | Ownership 所有権 | Structure and method of construction 構造・工法 | | Wooden 2-story 木造2階建 | Use district 用途地域 | | Two mid-high 2種中高 | Overview and notices その他概要・特記事項 | | Facilities: Public Water Supply, This sewage, City gas, Parking: Garage 設備:公営水道、本下水、都市ガス、駐車場:車庫 | Company profile 会社概要 | | <Mediation> governor of Osaka (7) Osaka Daito No. 027375 No. Toho housing Yubinbango574-0011 Hojo 1-1-12 <仲介>大阪府知事(7)第027375号東宝ハウジング〒574-0011 大阪府大東市北条1-1-12 |
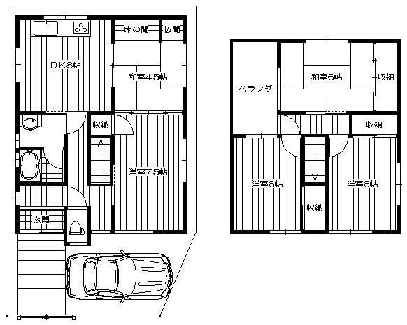
Floor plan間取り図  13.8 million yen, 5DK, Land area 128.36 sq m , Building area 92.31 sq m
1380万円、5DK、土地面積128.36m2、建物面積92.31m2
Local appearance photo現地外観写真  Local (June 2012) shooting
現地(2012年6月)撮影
 Local (June 2012) shooting
現地(2012年6月)撮影
Bathroom浴室  Indoor (June 2012) shooting
室内(2012年6月)撮影
Kitchenキッチン  Indoor (June 2012) shooting
室内(2012年6月)撮影
Non-living roomリビング以外の居室  Indoor (June 2012) shooting
室内(2012年6月)撮影
Entrance玄関  Local (June 2012) shooting
現地(2012年6月)撮影
Wash basin, toilet洗面台・洗面所  Indoor (June 2012) shooting
室内(2012年6月)撮影
Parking lot駐車場  Local (June 2012) shooting
現地(2012年6月)撮影
Non-living roomリビング以外の居室  Indoor (June 2012) shooting
室内(2012年6月)撮影
 Indoor (June 2012) shooting
室内(2012年6月)撮影
 Indoor (June 2012) shooting
室内(2012年6月)撮影
 Indoor (June 2012) shooting
室内(2012年6月)撮影
Location
|