1974July
5.8 million yen, 3DK, 47.07 sq m
Used Homes » Kansai » Osaka prefecture » Daito
 
| | Osaka Prefecture Daito 大阪府大東市 |
| JR katamachi line "Suminodo" walk 13 minutes JR片町線「住道」歩13分 |
| ■ Renovated is settled! ■ It will be able to immediately move. ■ It is green in many living environment. ■ Hyoya up to elementary school 1 minute walk. ■ A 1-minute walk from the "Japan". ■改装済です!■即入居していただけます。■緑が多い住環境です。■氷野小学校まで徒歩1分。■「ジャパン」まで徒歩1分。 |
| ■ Renovated is settled! ・ Wall Cross Insect ・ Tatami mat replacement ・ Sliding door re-covering ・ DK floor CF re-covering ・ Wash basin had made ・ Washlet had made ・ Bathroom shower had made ・ Veranda aluminum terrace had made ・ Roof solar removal ■改装済です!・壁クロス張替え ・畳表替え ・襖張替え ・DK床CF張替え ・洗面台新調 ・ウォシュレット新調 ・浴室シャワー新調 ・ベランダアルミテラス新調 ・屋根ソーラー撤去 |
Features pickup 特徴ピックアップ | | Immediate Available / Interior renovation / Japanese-style room / Wide balcony / 2-story / Leafy residential area 即入居可 /内装リフォーム /和室 /ワイドバルコニー /2階建 /緑豊かな住宅地 | Price 価格 | | 5.8 million yen 580万円 | Floor plan 間取り | | 3DK 3DK | Units sold 販売戸数 | | 1 units 1戸 | Land area 土地面積 | | 35.29 sq m 35.29m2 | Building area 建物面積 | | 47.07 sq m 47.07m2 | Driveway burden-road 私道負担・道路 | | Nothing, North 3.8m width 無、北3.8m幅 | Completion date 完成時期(築年月) | | July 1974 1974年7月 | Address 住所 | | Osaka Prefecture Daito Daito-cho 大阪府大東市大東町 | Traffic 交通 | | JR katamachi line "Suminodo" walk 13 minutes JR片町線「住道」歩13分
| Contact お問い合せ先 | | (Ltd.) Nakatomi building contractors TEL: 0800-603-1649 [Toll free] mobile phone ・ Also available from PHS Caller ID is not notified Please contact the "saw SUUMO (Sumo)" If it does not lead, If the real estate company (株)中富工務店TEL:0800-603-1649【通話料無料】携帯電話・PHSからもご利用いただけます 発信者番号は通知されません 「SUUMO(スーモ)を見た」と問い合わせください つながらない方、不動産会社の方は
| Building coverage, floor area ratio 建ぺい率・容積率 | | 60% ・ 200% 60%・200% | Time residents 入居時期 | | Immediate available 即入居可 | Land of the right form 土地の権利形態 | | Ownership 所有権 | Structure and method of construction 構造・工法 | | Wooden 2-story 木造2階建 | Renovation リフォーム | | 2013 February interior renovation completed (toilet ・ wall ・ floor) 2013年2月内装リフォーム済(トイレ・壁・床) | Use district 用途地域 | | One dwelling 1種住居 | Overview and notices その他概要・特記事項 | | Facilities: Public Water Supply, This sewage 設備:公営水道、本下水 | Company profile 会社概要 | | <Mediation> governor of Osaka (6) No. 033657 (Ltd.) Nakatomi builders Yubinbango575-0063 Osaka shijonawate Seiryu 18-11 <仲介>大阪府知事(6)第033657号(株)中富工務店〒575-0063 大阪府四條畷市清瀧18-11 |
 Local appearance photo
現地外観写真
 Living
リビング
 Kitchen
キッチン
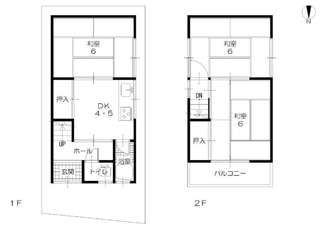
Floor plan間取り図  5.8 million yen, 3DK, Land area 35.29 sq m , Building area 47.07 sq m
580万円、3DK、土地面積35.29m2、建物面積47.07m2
 Bathroom
浴室
 Non-living room
リビング以外の居室
 Wash basin, toilet
洗面台・洗面所
 Toilet
トイレ
 Non-living room
リビング以外の居室
Location
|