1980December
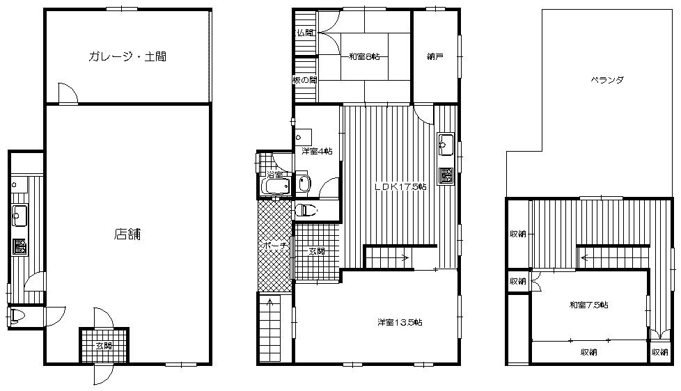
41 million yen, 3LDK + S (storeroom), 184.61 sq m
Used Homes » Kansai » Osaka prefecture » Daito
 
| | Osaka Prefecture Daito 大阪府大東市 |
| JR katamachi line "Nozaki" walk 3 minutes JR片町線「野崎」歩3分 |
Features pickup 特徴ピックアップ | | Parking three or more possible / Super close / It is close to the city / LDK15 tatami mats or more / Japanese-style room / Shutter - garage / Toilet 2 places / 2-story / The window in the bathroom / Good view / All room 6 tatami mats or more / Storeroom 駐車3台以上可 /スーパーが近い /市街地が近い /LDK15畳以上 /和室 /シャッタ-車庫 /トイレ2ヶ所 /2階建 /浴室に窓 /眺望良好 /全居室6畳以上 /納戸 | Price 価格 | | 41 million yen 4100万円 | Floor plan 間取り | | 3LDK + S (storeroom) 3LDK+S(納戸) | Units sold 販売戸数 | | 1 units 1戸 | Total units 総戸数 | | 1 units 1戸 | Land area 土地面積 | | 133.39 sq m (registration) 133.39m2(登記) | Building area 建物面積 | | 184.61 sq m (registration) 184.61m2(登記) | Driveway burden-road 私道負担・道路 | | Nothing 無 | Completion date 完成時期(築年月) | | December 1980 1980年12月 | Address 住所 | | Osaka Prefecture Daito Nozaki 1 大阪府大東市野崎1 | Traffic 交通 | | JR katamachi line "Nozaki" walk 3 minutes JR片町線「野崎」歩3分
| Contact お問い合せ先 | | TEL: 0800-603-2566 [Toll free] mobile phone ・ Also available from PHS Caller ID is not notified Please contact the "saw SUUMO (Sumo)" If it does not lead, If the real estate company TEL:0800-603-2566【通話料無料】携帯電話・PHSからもご利用いただけます 発信者番号は通知されません 「SUUMO(スーモ)を見た」と問い合わせください つながらない方、不動産会社の方は
| Building coverage, floor area ratio 建ぺい率・容積率 | | 60% ・ 200% 60%・200% | Time residents 入居時期 | | Consultation 相談 | Land of the right form 土地の権利形態 | | Ownership 所有権 | Structure and method of construction 構造・工法 | | Wooden 2-story 木造2階建 | Use district 用途地域 | | Two mid-high 2種中高 | Overview and notices その他概要・特記事項 | | Facilities: Public Water Supply, This sewage, Parking: Garage 設備:公営水道、本下水、駐車場:車庫 | Company profile 会社概要 | | <Mediation> governor of Osaka (7) Osaka Daito No. 027375 No. Toho housing Yubinbango574-0011 Hojo 1-1-12 <仲介>大阪府知事(7)第027375号東宝ハウジング〒574-0011 大阪府大東市北条1-1-12 |
Floor plan間取り図  41 million yen, 3LDK + S (storeroom), Land area 133.39 sq m , Building area 184.61 sq m
4100万円、3LDK+S(納戸)、土地面積133.39m2、建物面積184.61m2
Non-living roomリビング以外の居室  Indoor (June 2013) Shooting
室内(2013年6月)撮影
Bathroom浴室  Indoor (June 2013) Shooting
室内(2013年6月)撮影
Wash basin, toilet洗面台・洗面所  Indoor (June 2013) Shooting
室内(2013年6月)撮影
Other introspectionその他内観  Indoor (June 2013) Shooting
室内(2013年6月)撮影
 Other
その他
Location
|