Used Homes » Kansai » Osaka prefecture » Habikino


Osaka Prefecture Habikino
Kintetsu Minami-Osaka Line "Takasu" walk 12 minutes
« ~ South road ~ »Hito is good! ◆ Preview available! Carefree to contact us!
Facing south, Flat to the station, Siemens south road, A quiet residential area, Shaping land, South balcony
Features pickup
2 along the line more accessible / Facing south / Flat to the station / Siemens south road / A quiet residential area / Around traffic fewer / Shaping land / 2-story / South balcony / The window in the bathroom / City gas / Flat terrain
Event information
Local tours (please make a reservation beforehand) schedule / Every Saturday, Sunday and public holidays
Price
9.8 million yen
Floor plan
4DK
Units sold
1 units
Land area
65.74 sq m (19.88 tsubo) (Registration)
Building area
70.87 sq m (21.43 tsubo) (Registration)
Driveway burden-road
Nothing, South 4.7m width (contact the road width 5.3m)
Completion date
August 1995
Address
Osaka Prefecture Habikino Iga 6
Traffic
Kintetsu Minami-Osaka Line "Takasu" walk 12 minutes
Kintetsu Minami-Osaka Line "Fujiidera" walk 23 minutes
Kintetsu Minami-Osaka Line "Eganosho" walk 25 minutes
Related links
[Related Sites of this company]
Contact
Century 21 Daiei build TEL: 072-937-2500 "saw SUUMO (Sumo)" and please contact
Building coverage, floor area ratio
60% ・ 200%
Time residents
2 months after the contract
Land of the right form
Ownership
Structure and method of construction
Wooden 2-story (framing method)
Use district
One dwelling
Other limitations
Regulations have by the Law for the Protection of Cultural Properties
Overview and notices
Facilities: Public Water Supply, Individual septic tank, City gas, Parking: Car Port
Company profile
<Mediation> governor of Osaka (14) No. 004453 Century 21 Daiei build Yubinbango583-0027 Osaka Prefecture Fujiidera Ichioka 2-10-4


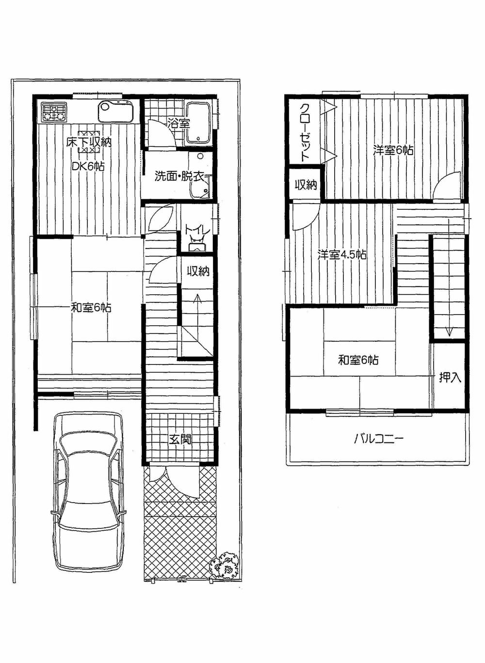
Floor plan

Floor plan. 9.8 million yen, 4DK, Land area 65.74 sq m , Building area 70.87 sq m
9.8 million yen, 4DK, Land area 65.74 sq m , Building area 70.87 sq m

Local appearance photo

Local appearance photo. Local (September 2013) Shooting
Local (September 2013) Shooting

Local photos, including front road

Local photos, including front road. Local (September 2013) Shooting
Local (September 2013) Shooting

Local appearance photo

Local appearance photo. Local (September 2013) Shooting
Local (September 2013) Shooting

Living

Living. Indoor (September 2013) Shooting
Indoor (September 2013) Shooting

Bathroom

Bathroom. Indoor (September 2013) Shooting
Indoor (September 2013) Shooting

Kitchen

Kitchen. Indoor (September 2013) Shooting
Indoor (September 2013) Shooting

Non-living room

Non-living room. Indoor (September 2013) Shooting
Indoor (September 2013) Shooting

Wash basin, toilet

Wash basin, toilet. Indoor (September 2013) Shooting
Indoor (September 2013) Shooting

Toilet

Toilet. Indoor (September 2013) Shooting
Indoor (September 2013) Shooting

Other

Other. Kintetsu Takasu Station
Kintetsu Takasu Station

Local appearance photo

Local appearance photo. Local (September 2013) Shooting
Local (September 2013) Shooting

Non-living room

Non-living room. Indoor (September 2013) Shooting
Indoor (September 2013) Shooting



Location