Used Homes » Kansai » Osaka prefecture » Habikino
 
| | Osaka Prefecture Habikino 大阪府羽曳野市 |
| Kintetsu Minami-Osaka Line "Fujiidera" 15 minutes Habikigaoka Yonchome KitaAyumi 1 minute bus 近鉄南大阪線「藤井寺」バス15分羽曳が丘四丁目北歩1分 |
| Land area of about 46.2 square meters, 4LDK + 1 single carport, LDK15 tatami mats or more, Zenshitsuminami direction, Atrium there is there is all the room 6 tatami mats or more. 土地面積約46.2坪、4LDK+カーポート1台、LDK15畳以上、全室南向き、吹抜けがあり全居室6畳以上ございます。 |
Features pickup 特徴ピックアップ | | LDK15 tatami mats or more / Zenshitsuminami direction / Atrium / All room 6 tatami mats or more LDK15畳以上 /全室南向き /吹抜け /全居室6畳以上 | Price 価格 | | 19,800,000 yen 1980万円 | Floor plan 間取り | | 4LDK 4LDK | Units sold 販売戸数 | | 1 units 1戸 | Land area 土地面積 | | 152.95 sq m (registration) 152.95m2(登記) | Building area 建物面積 | | 99.18 sq m (registration) 99.18m2(登記) | Driveway burden-road 私道負担・道路 | | Nothing, Northeast 4.7m width 無、北東4.7m幅 | Completion date 完成時期(築年月) | | November 1988 1988年11月 | Address 住所 | | Osaka Prefecture Habikino Gakuenmae 2 大阪府羽曳野市学園前2 | Traffic 交通 | | Kintetsu Minami-Osaka Line "Fujiidera" 15 minutes Habikigaoka Yonchome KitaAyumi 1 minute bus 近鉄南大阪線「藤井寺」バス15分羽曳が丘四丁目北歩1分
| Person in charge 担当者より | | Person in charge of real-estate and building Tomikura Ryoji Age: 40 Daigyokai experience: the purchase of 17-year real estate ・ To get used to you the power of the customers to be an important decision to sale, You my best my best. Questions about real estate, Anxiety, etc., What ... please consult. Carefully one by one to answer, It will deliver the peace of mind. 担当者宅建富倉 良治年齢:40代業界経験:17年不動産の購入・売却という重要な決断をされるお客様のお力になれるよう、精一杯がんばります。不動産に関する質問、不安など、何なりとご相談下さい。一つ一つ丁寧にお答えし、安心をお届けします。 | Contact お問い合せ先 | | TEL: 0800-603-0424 [Toll free] mobile phone ・ Also available from PHS Caller ID is not notified Please contact the "saw SUUMO (Sumo)" If it does not lead, If the real estate company TEL:0800-603-0424【通話料無料】携帯電話・PHSからもご利用いただけます 発信者番号は通知されません 「SUUMO(スーモ)を見た」と問い合わせください つながらない方、不動産会社の方は
| Building coverage, floor area ratio 建ぺい率・容積率 | | Fifty percent ・ Hundred percent 50%・100% | Time residents 入居時期 | | Consultation 相談 | Land of the right form 土地の権利形態 | | Ownership 所有権 | Structure and method of construction 構造・工法 | | Wooden 2-story 木造2階建 | Use district 用途地域 | | One low-rise 1種低層 | Other limitations その他制限事項 | | Residential land development construction regulation area 宅地造成工事規制区域 | Overview and notices その他概要・特記事項 | | Contact: Tomikura Ryoji, Facilities: Public Water Supply, Individual septic tank, City gas, Parking: Car Port 担当者:富倉 良治、設備:公営水道、個別浄化槽、都市ガス、駐車場:カーポート | Company profile 会社概要 | | <Mediation> Minister of Land, Infrastructure and Transport (9) No. 003,123 (one company) Real Estate Association (Corporation) metropolitan area real estate Fair Trade Council member Kintetsu Real Estate Co., Ltd. Fujiidera office Yubinbango583-0027 Osaka Prefecture Fujiidera Ichioka 2-8-41 (Kintetsu Fujiidera Station Kitade preoral) <仲介>国土交通大臣(9)第003123号(一社)不動産協会会員 (公社)首都圏不動産公正取引協議会加盟近鉄不動産(株)藤井寺営業所〒583-0027 大阪府藤井寺市岡2-8-41 (近鉄藤井寺駅北出口前) |
Local appearance photo現地外観写真  Local (September 2013) Shooting
現地(2013年9月)撮影
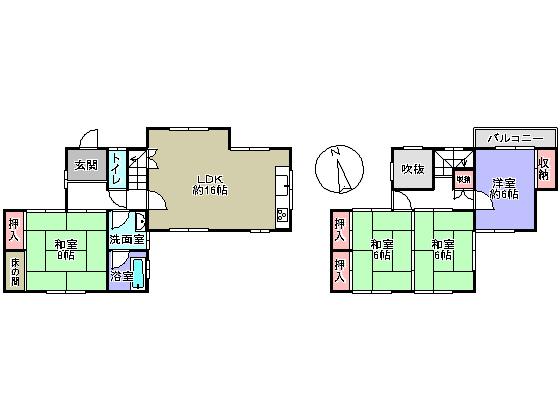
Floor plan間取り図  19,800,000 yen, 4LDK, Land area 152.95 sq m , Building area 99.18 sq m
1980万円、4LDK、土地面積152.95m2、建物面積99.18m2
Kitchenキッチン  Indoor (September 2013) Shooting
室内(2013年9月)撮影
Bathroom浴室  Indoor (2013 9) Shooting
室内(2013年9)撮影
Wash basin, toilet洗面台・洗面所  Indoor (September 2013) Shooting
室内(2013年9月)撮影
Toiletトイレ  Indoor (September 2013) Shooting
室内(2013年9月)撮影
Otherその他  Atrium
吹抜け
 Second floor Japanese-style room
2階和室
Livingリビング  Indoor (September 2013) Shooting
室内(2013年9月)撮影
Local appearance photo現地外観写真  Local (September 2013) Shooting
現地(2013年9月)撮影
Location
|