2001August
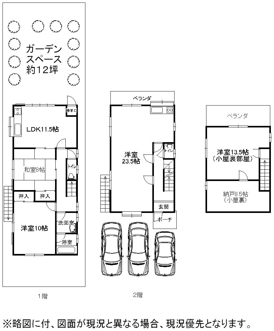
20.8 million yen, 4LDK + S (storeroom), 117.51 sq m
Used Homes » Kansai » Osaka prefecture » Higashi-Osaka City
 
| | Osaka Prefecture Higashiosaka 大阪府東大阪市 |
| Kintetsu Nara Line "Hyotan'yama" walk 25 minutes 近鉄奈良線「瓢箪山」歩25分 |
Features pickup 特徴ピックアップ | | Parking three or more possible / Immediate Available / Or more before road 6m / Garden more than 10 square meters / 2-story / Ventilation good / Attic storage 駐車3台以上可 /即入居可 /前道6m以上 /庭10坪以上 /2階建 /通風良好 /屋根裏収納 | Price 価格 | | 20.8 million yen 2080万円 | Floor plan 間取り | | 4LDK + S (storeroom) 4LDK+S(納戸) | Units sold 販売戸数 | | 1 units 1戸 | Land area 土地面積 | | 149.75 sq m (registration) 149.75m2(登記) | Building area 建物面積 | | 117.51 sq m (registration) 117.51m2(登記) | Driveway burden-road 私道負担・道路 | | Nothing, East 6.8m width 無、東6.8m幅 | Completion date 完成時期(築年月) | | August 2001 2001年8月 | Address 住所 | | Osaka Prefecture Higashi Rokumanji cho 大阪府東大阪市六万寺町1 | Traffic 交通 | | Kintetsu Nara Line "Hyotan'yama" walk 25 minutes 近鉄奈良線「瓢箪山」歩25分
| Contact お問い合せ先 | | Oetchi Industry Co., Ltd. Housing Division Maioka shop TEL: 0800-603-7612 [Toll free] mobile phone ・ Also available from PHS Caller ID is not notified Please contact the "saw SUUMO (Sumo)" If it does not lead, If the real estate company オーエッチ工業(株)ハウジング事業部 枚岡店TEL:0800-603-7612【通話料無料】携帯電話・PHSからもご利用いただけます 発信者番号は通知されません 「SUUMO(スーモ)を見た」と問い合わせください つながらない方、不動産会社の方は
| Building coverage, floor area ratio 建ぺい率・容積率 | | 60% ・ 200% 60%・200% | Time residents 入居時期 | | Immediate available 即入居可 | Land of the right form 土地の権利形態 | | Ownership 所有権 | Structure and method of construction 構造・工法 | | Steel 2-story 鉄骨2階建 | Overview and notices その他概要・特記事項 | | Parking: Garage 駐車場:車庫 | Company profile 会社概要 | | <Mediation> governor of Osaka (2) the first 052,985 No. Oetchi Industry Co., housing Division Maioka shop Yubinbango579-8036 Osaka Higashi Takadono cho 1-10 <仲介>大阪府知事(2)第052985号オーエッチ工業(株)ハウジング事業部 枚岡店〒579-8036 大阪府東大阪市鷹殿町1-10 |
Local appearance photo現地外観写真  Local (August 2013) Shooting
現地(2013年8月)撮影
Floor plan間取り図  20.8 million yen, 4LDK + S (storeroom), Land area 149.75 sq m , You can also building area 117.51 sq m 2 households live
2080万円、4LDK+S(納戸)、土地面積149.75m2、建物面積117.51m2 2世帯同居もできます
Location
|