|
|
Osaka Prefecture Higashiosaka
大阪府東大阪市
|
|
JR katamachi line "Konoike Nitta" walk 19 minutes
JR片町線「鴻池新田」歩19分
|
|
◆ 2006 architecture ◆ ◆ Facing south ◆ ◆ There is no high on the south side building, Good view ◆ ◆ Room luxury equipment ◆
◆平成18年建築◆◆南向き◆◆南側に高い建物がなく、眺望良好◆◆室内高級設備◆
|
|
It is still a beautiful property in a built shallow! Best !! bright gardening widely roof balcony of 3F is It may be the south side of the day, The room is bright! Seiwa is close to elementary school.
築浅でまだまだきれいな物件です! 3Fのルーフバルコニーが広くて明るくガーデニングに最適!! 南側の日当たりも良く、室内は明るいですよ! 成和小学校まで近いです。
|
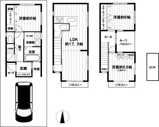
Features pickup 特徴ピックアップ | | 2 along the line more accessible / It is close to the city / Facing south / Bathroom Dryer / Yang per good / All room storage / Flat to the station / Siemens south road / LDK15 tatami mats or more / Around traffic fewer / Japanese-style room / Washbasin with shower / Barrier-free / Toilet 2 places / Bathroom 1 tsubo or more / South balcony / Otobasu / Warm water washing toilet seat / loft / Nantei / Underfloor Storage / The window in the bathroom / Urban neighborhood / Ventilation good / All living room flooring / Dish washing dryer / All room 6 tatami mats or more / Three-story or more / City gas / Flat terrain / Movable partition 2沿線以上利用可 /市街地が近い /南向き /浴室乾燥機 /陽当り良好 /全居室収納 /駅まで平坦 /南側道路面す /LDK15畳以上 /周辺交通量少なめ /和室 /シャワー付洗面台 /バリアフリー /トイレ2ヶ所 /浴室1坪以上 /南面バルコニー /オートバス /温水洗浄便座 /ロフト /南庭 /床下収納 /浴室に窓 /都市近郊 /通風良好 /全居室フローリング /食器洗乾燥機 /全居室6畳以上 /3階建以上 /都市ガス /平坦地 /可動間仕切り |
Price 価格 | | 19.6 million yen 1960万円 |
Floor plan 間取り | | 3LDK 3LDK |
Units sold 販売戸数 | | 1 units 1戸 |
Total units 総戸数 | | 1 units 1戸 |
Land area 土地面積 | | 62.18 sq m (18.80 tsubo) (Registration) 62.18m2(18.80坪)(登記) |
Building area 建物面積 | | 92.59 sq m (28.00 tsubo) (Registration) 92.59m2(28.00坪)(登記) |
Driveway burden-road 私道負担・道路 | | Nothing, South 5.3m width (contact the road width 4.5m) 無、南5.3m幅(接道幅4.5m) |
Completion date 完成時期(築年月) | | May 2006 2006年5月 |
Address 住所 | | Osaka Prefecture Higashi Shinjo 1 大阪府東大阪市新庄1 |
Traffic 交通 | | JR katamachi line "Konoike Nitta" walk 19 minutes Kintetsu Keihanna line "Aramoto" walk 20 minutes Subway Chuo Line "Nagata" walk 30 minutes JR片町線「鴻池新田」歩19分 近鉄けいはんな線「荒本」歩20分 地下鉄中央線「長田」歩30分
|
Related links 関連リンク | | [Related Sites of this company] 【この会社の関連サイト】 |
Person in charge 担当者より | | Person in charge of real-estate and building Fujisawa Jun Age: 30 Daigyokai Experience: proposes the perfect best plan in 11 years our customers! ! 担当者宅建藤澤 淳年齢:30代業界経験:11年お客様にぴったりのベストプランを提案します!! |
Contact お問い合せ先 | | TEL: 0800-805-5823 [Toll free] mobile phone ・ Also available from PHS Caller ID is not notified Please contact the "saw SUUMO (Sumo)" If it does not lead, If the real estate company TEL:0800-805-5823【通話料無料】携帯電話・PHSからもご利用いただけます 発信者番号は通知されません 「SUUMO(スーモ)を見た」と問い合わせください つながらない方、不動産会社の方は
|
Building coverage, floor area ratio 建ぺい率・容積率 | | 60% ・ 200% 60%・200% |
Time residents 入居時期 | | Consultation 相談 |
Land of the right form 土地の権利形態 | | Ownership 所有権 |
Structure and method of construction 構造・工法 | | Wooden three-story 木造3階建 |
Overview and notices その他概要・特記事項 | | Contact: Fujisawa Atsushi, Facilities: Public Water Supply, This sewage, City gas, Parking: car space 担当者:藤澤 淳、設備:公営水道、本下水、都市ガス、駐車場:カースペース |
Company profile 会社概要 | | <Mediation> governor of Osaka Prefecture (1) the first 054,416 No. House Grant Co. Yubinbango536-0004 Osaka Joto-ku Imafukunishi 2-13-8 <仲介>大阪府知事(1)第054416号ハウスグラント(株)〒536-0004 大阪府大阪市城東区今福西2-13-8 |