|
|
Osaka Prefecture Higashiosaka
大阪府東大阪市
|
|
Kintetsu Nara Line "single Oka" walk 13 minutes
近鉄奈良線「枚岡」歩13分
|
|
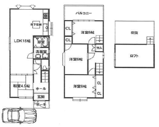
◇ is a floor plan of the 2-story 4LDK spacious and pledge ◇ LDK15 ◇ will be saved in the storage rich and clean up
◇2階建4LDKの間取りです◇LDK15帖で広々としてます◇収納豊富で片付けに助かります
|
|
◇ south open space ・ Per west terraced, Daylighting ・ ventilation ・ The beauty of the view good ◇ night view and summer fireworks please check once ◇ 2 floor of the rooms are all the rooms Western-style Because the rooms are independent, Also ensure Inquiry private space do not hesitate ☆ → 0800-808-7253
◇南側空地・西側ひな壇につき、採光・通風・眺望良好◇夜景と夏の花火の美しさは一度ご確認して下さい◇2階のお部屋は全室洋室です 独立しているお部屋なので、プライベートな空間も確保お問い合わせはお気軽に☆→0800-808-7253
|
Features pickup 特徴ピックアップ | | A quiet residential area / LDK15 tatami mats or more / Japanese-style room / 2-story / The window in the bathroom / All room 6 tatami mats or more / City gas / terrace 閑静な住宅地 /LDK15畳以上 /和室 /2階建 /浴室に窓 /全居室6畳以上 /都市ガス /テラス |
Price 価格 | | 10.8 million yen 1080万円 |
Floor plan 間取り | | 4LDK 4LDK |
Units sold 販売戸数 | | 1 units 1戸 |
Land area 土地面積 | | 86.3 sq m (26.10 tsubo) (Registration) 86.3m2(26.10坪)(登記) |
Building area 建物面積 | | 85.86 sq m (25.97 tsubo) (Registration) 85.86m2(25.97坪)(登記) |
Driveway burden-road 私道負担・道路 | | Nothing 無 |
Completion date 完成時期(築年月) | | August 1994 1994年8月 |
Address 住所 | | Osaka Prefecture Higashi Kyakubo cho 大阪府東大阪市客坊町 |
Traffic 交通 | | Kintetsu Nara Line "single Oka" walk 13 minutes Kintetsu Nara Line "Hyotan'yama" walk 14 minutes Kintetsu Nara Line "Nukata" walk 22 minutes 近鉄奈良線「枚岡」歩13分 近鉄奈良線「瓢箪山」歩14分 近鉄奈良線「額田」歩22分
|
Person in charge 担当者より | | Person in charge of real-estate and building Sakamoto Masato Age: 20 Daigyokai experience: use to maximize the serious part is one year my advantage, Always aim to passionate service considered empathetic in your eyes! ! I will do my best day-to-day business as they say that there is no mistake in the service of Sakamoto. 担当者宅建坂本 優人年齢:20代業界経験:1年私の長所である真面目な部分を最大限に使い、常にお客様目線で親身に考え情熱的な接客を目指します!!坂本の接客に間違いなしと言われるように日々の業務を頑張ります。 |
Contact お問い合せ先 | | TEL: 0800-808-7253 [Toll free] mobile phone ・ Also available from PHS Caller ID is not notified Please contact the "saw SUUMO (Sumo)" If it does not lead, If the real estate company TEL:0800-808-7253【通話料無料】携帯電話・PHSからもご利用いただけます 発信者番号は通知されません 「SUUMO(スーモ)を見た」と問い合わせください つながらない方、不動産会社の方は
|
Building coverage, floor area ratio 建ぺい率・容積率 | | 60% ・ 150% 60%・150% |
Time residents 入居時期 | | Consultation 相談 |
Land of the right form 土地の権利形態 | | Ownership 所有権 |
Structure and method of construction 構造・工法 | | Wooden 2-story 木造2階建 |
Use district 用途地域 | | One low-rise 1種低層 |
Overview and notices その他概要・特記事項 | | Contact: Sakamoto Masato, Facilities: Public Water Supply, This sewage, City gas, Parking: No 担当者:坂本 優人、設備:公営水道、本下水、都市ガス、駐車場:無 |
Company profile 会社概要 | | <Mediation> governor of Osaka Prefecture (1) No. 056319 (Ltd.) rack housing Yubinbango574-0033 Osaka Prefecture Daito Ogimachi 6-17 <仲介>大阪府知事(1)第056319号(株)ラックハウジング〒574-0033 大阪府大東市扇町6-17 |