2006December
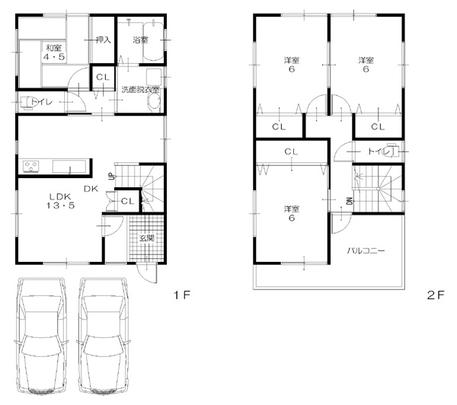
23.8 million yen, 4LDK, 92.34 sq m
Used Homes » Kansai » Osaka prefecture » Hirakata
 
| | Hirakata, Osaka 大阪府枚方市 |
| JR katamachi line "Tsuda" 10 minutes International Golf Course before walking 7 minutes by bus JR片町線「津田」バス10分国際ゴルフ場前歩7分 |
| Parking two Allowed, Built within five years, Or more before road 6m 駐車2台可、築5年以内、前道6m以上 |
Features pickup 特徴ピックアップ | | Parking two Allowed / All room storage / Or more before road 6m / Wide balcony / Toilet 2 places 駐車2台可 /全居室収納 /前道6m以上 /ワイドバルコニー /トイレ2ヶ所 | Price 価格 | | 23.8 million yen 2380万円 | Floor plan 間取り | | 4LDK 4LDK | Units sold 販売戸数 | | 1 units 1戸 | Land area 土地面積 | | 101.35 sq m (registration) 101.35m2(登記) | Building area 建物面積 | | 92.34 sq m (registration) 92.34m2(登記) | Driveway burden-road 私道負担・道路 | | Nothing, East 6m width 無、東6m幅 | Completion date 完成時期(築年月) | | December 2006 2006年12月 | Address 住所 | | Hirakata, Osaka Tsudahigashi cho 2 大阪府枚方市津田東町2 | Traffic 交通 | | JR katamachi line "Tsuda" 10 minutes International Golf Course before walking 7 minutes by bus JR片町線「津田」バス10分国際ゴルフ場前歩7分
| Related links 関連リンク | | [Related Sites of this company] 【この会社の関連サイト】 | Contact お問い合せ先 | | (Ltd.) Nakatomi building contractors TEL: 0800-603-1649 [Toll free] mobile phone ・ Also available from PHS Caller ID is not notified Please contact the "saw SUUMO (Sumo)" If it does not lead, If the real estate company (株)中富工務店TEL:0800-603-1649【通話料無料】携帯電話・PHSからもご利用いただけます 発信者番号は通知されません 「SUUMO(スーモ)を見た」と問い合わせください つながらない方、不動産会社の方は
| Building coverage, floor area ratio 建ぺい率・容積率 | | 60% ・ 200% 60%・200% | Time residents 入居時期 | | Consultation 相談 | Land of the right form 土地の権利形態 | | Ownership 所有権 | Structure and method of construction 構造・工法 | | Wooden 2-story 木造2階建 | Use district 用途地域 | | One middle and high 1種中高 | Overview and notices その他概要・特記事項 | | Facilities: Public Water Supply, This sewage, City gas, Parking: Car Port 設備:公営水道、本下水、都市ガス、駐車場:カーポート | Company profile 会社概要 | | <Mediation> governor of Osaka (6) No. 033657 (Ltd.) Nakatomi builders Yubinbango575-0063 Osaka shijonawate Seiryu 18-11 <仲介>大阪府知事(6)第033657号(株)中富工務店〒575-0063 大阪府四條畷市清瀧18-11 |
 Local appearance photo
現地外観写真
 Local appearance photo
現地外観写真
Floor plan間取り図  23.8 million yen, 4LDK, Land area 101.35 sq m , Building area 92.34 sq m
2380万円、4LDK、土地面積101.35m2、建物面積92.34m2
Location
|