1999July
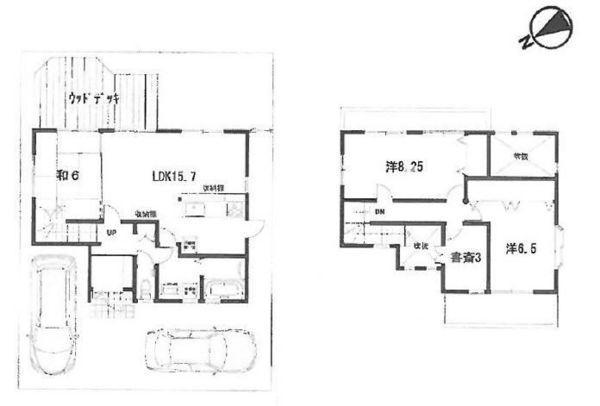
31,800,000 yen, 4LDK, 94.39 sq m
Used Homes » Kansai » Osaka prefecture » Hirakata
 
| | Hirakata, Osaka 大阪府枚方市 |
| JR katamachi line "Nagao" walk 14 minutes JR片町線「長尾」歩14分 |
| H20_nenrifomusumi ◆ Home security Yi tea ◆ loft ◆ Wood deck ◆ Parking 2 cars H20年リフォーム済◆ホームセキュイティー◆ロフト◆ウッドデッキ◆駐車2台 |
| H20_nenrifomusumi ◆ Home security Yi tea ◆ loft ◆ Wood deck ◆ Parking 2 cars H20年リフォーム済◆ホームセキュイティー◆ロフト◆ウッドデッキ◆駐車2台 |
Features pickup 特徴ピックアップ | | Parking two Allowed / Yang per good / Or more before road 6m / 2-story / loft / Wood deck / Flat terrain 駐車2台可 /陽当り良好 /前道6m以上 /2階建 /ロフト /ウッドデッキ /平坦地 | Price 価格 | | 31,800,000 yen 3180万円 | Floor plan 間取り | | 4LDK 4LDK | Units sold 販売戸数 | | 1 units 1戸 | Land area 土地面積 | | 138.65 sq m (registration) 138.65m2(登記) | Building area 建物面積 | | 94.39 sq m 94.39m2 | Driveway burden-road 私道負担・道路 | | Nothing, Northwest 6m width 無、北西6m幅 | Completion date 完成時期(築年月) | | July 1999 1999年7月 | Address 住所 | | Hirakata, Osaka Nagaohigashi cho 3 大阪府枚方市長尾東町3 | Traffic 交通 | | JR katamachi line "Nagao" walk 14 minutes JR片町線「長尾」歩14分
| Related links 関連リンク | | [Related Sites of this company] 【この会社の関連サイト】 | Contact お問い合せ先 | | TEL: 0800-603-2643 [Toll free] mobile phone ・ Also available from PHS Caller ID is not notified Please contact the "saw SUUMO (Sumo)" If it does not lead, If the real estate company TEL:0800-603-2643【通話料無料】携帯電話・PHSからもご利用いただけます 発信者番号は通知されません 「SUUMO(スーモ)を見た」と問い合わせください つながらない方、不動産会社の方は
| Building coverage, floor area ratio 建ぺい率・容積率 | | 40% ・ 80% 40%・80% | Time residents 入居時期 | | Consultation 相談 | Land of the right form 土地の権利形態 | | Ownership 所有権 | Structure and method of construction 構造・工法 | | Wooden 2-story 木造2階建 | Use district 用途地域 | | One low-rise 1種低層 | Company profile 会社概要 | | <Mediation> governor of Osaka (3) The 046,613 No. Century 21 Ritz housing (Ltd.) Hirakata store Yubinbango573-0022 Hirakata, Osaka Miyanosaka 2-2-5-103 <仲介>大阪府知事(3)第046613号センチュリー21リッツハウジング(株)枚方店〒573-0022 大阪府枚方市宮之阪2-2-5-103 |
 Local appearance photo
現地外観写真
Floor plan間取り図  31,800,000 yen, 4LDK, Land area 138.65 sq m , Building area 94.39 sq m
3180万円、4LDK、土地面積138.65m2、建物面積94.39m2
 Other
その他
 Other
その他
Location
|