Used Homes » Kansai » Osaka prefecture » Hirakata
 
| | Hirakata, Osaka 大阪府枚方市 |
| Keihan "Kozenji" walk 9 minutes 京阪本線「光善寺」歩9分 |
| Parking two Allowed, Land 50 square meters or more, It is close to the city, Facing south, Yang per good, Flat to the station, Siemens south road, LDK15 tatami mats or more, Corner lotese-style room, Garden more than 10 square meters, Toilet 2 places, 2-story, Zenshitsuminami direction, Nantei 駐車2台可、土地50坪以上、市街地が近い、南向き、陽当り良好、駅まで平坦、南側道路面す、LDK15畳以上、角地、和室、庭10坪以上、トイレ2ヶ所、2階建、全室南向き、南庭 |
| Parking two Allowed, Land 50 square meters or more, It is close to the city, Facing south, Yang per good, Flat to the station, Siemens south road, LDK15 tatami mats or more, Corner lotese-style room, Garden more than 10 square meters, Toilet 2 places, 2-story, Zenshitsuminami direction, Nantei, Storeroom, Flat terrain 駐車2台可、土地50坪以上、市街地が近い、南向き、陽当り良好、駅まで平坦、南側道路面す、LDK15畳以上、角地、和室、庭10坪以上、トイレ2ヶ所、2階建、全室南向き、南庭、納戸、平坦地 |
Features pickup 特徴ピックアップ | | Parking two Allowed / Land 50 square meters or more / It is close to the city / Facing south / Yang per good / Flat to the station / Siemens south road / LDK15 tatami mats or more / Corner lot / Japanese-style room / Garden more than 10 square meters / Toilet 2 places / 2-story / Zenshitsuminami direction / Nantei / Storeroom / Flat terrain 駐車2台可 /土地50坪以上 /市街地が近い /南向き /陽当り良好 /駅まで平坦 /南側道路面す /LDK15畳以上 /角地 /和室 /庭10坪以上 /トイレ2ヶ所 /2階建 /全室南向き /南庭 /納戸 /平坦地 | Price 価格 | | 43,800,000 yen 4380万円 | Floor plan 間取り | | 4LDK + 2S (storeroom) 4LDK+2S(納戸) | Units sold 販売戸数 | | 1 units 1戸 | Land area 土地面積 | | 294.18 sq m (88.98 tsubo) (Registration) 294.18m2(88.98坪)(登記) | Building area 建物面積 | | 143.54 sq m (43.42 tsubo) (Registration) 143.54m2(43.42坪)(登記) | Driveway burden-road 私道負担・道路 | | Nothing, West 3.6m width (contact the road width 14.1m), South 2m width (contact the road width 20.7m) 無、西3.6m幅(接道幅14.1m)、南2m幅(接道幅20.7m) | Completion date 完成時期(築年月) | | May 1996 1996年5月 | Address 住所 | | Hirakata, Osaka Hashiridani 1 大阪府枚方市走谷1 | Traffic 交通 | | Keihan "Kozenji" walk 9 minutes 京阪本線「光善寺」歩9分
| Person in charge 担当者より | | Person in charge of real-estate and building Tokuyama Mitsugu輔 Age: 30 Daigyokai Experience: 12 years Hirakata born ・ Enclosed is Tokuyama of 35 years. Yamanoue elementary school ・ Hirakata fourth junior high school ・ Kaorioka is Hirakata girl high school graduation. Real estate transactions in Hirakata my real estate brokerage history 13 years, Please leave all means to Tokuyama. 担当者宅建徳山 貢輔年齢:30代業界経験:12年枚方市出身・在中35年の徳山です。山之上小学校・枚方第4中学校・香里丘高校卒業の枚方っ子です。枚方市での不動産取引は不動産仲介歴13年目の私、徳山に是非お任せ下さい。 | Contact お問い合せ先 | | TEL: 0800-603-0426 [Toll free] mobile phone ・ Also available from PHS Caller ID is not notified Please contact the "saw SUUMO (Sumo)" If it does not lead, If the real estate company TEL:0800-603-0426【通話料無料】携帯電話・PHSからもご利用いただけます 発信者番号は通知されません 「SUUMO(スーモ)を見た」と問い合わせください つながらない方、不動産会社の方は
| Building coverage, floor area ratio 建ぺい率・容積率 | | Fifty percent ・ Hundred percent 50%・100% | Time residents 入居時期 | | Consultation 相談 | Land of the right form 土地の権利形態 | | Ownership 所有権 | Structure and method of construction 構造・工法 | | Light-gauge steel 2-story 軽量鉄骨2階建 | Construction 施工 | | Sekisui House Ltd. 積水ハウス(株) | Use district 用途地域 | | One low-rise 1種低層 | Other limitations その他制限事項 | | Setback: upon 27 sq m , Height district セットバック:要27m2、高度地区 | Overview and notices その他概要・特記事項 | | Contact: Tokuyama Mitsugu輔, Facilities: Public Water Supply, This sewage, City gas, Parking: Car Port 担当者:徳山 貢輔、設備:公営水道、本下水、都市ガス、駐車場:カーポート | Company profile 会社概要 | | <Mediation> Minister of Land, Infrastructure and Transport (9) No. 003,123 (one company) Real Estate Association (Corporation) metropolitan area real estate Fair Trade Council member Kintetsu Real Estate Co., Ltd. Hirakata office Yubinbango573-0032 Hirakata, Osaka Okahigashi cho 14-40 <仲介>国土交通大臣(9)第003123号(一社)不動産協会会員 (公社)首都圏不動産公正取引協議会加盟近鉄不動産(株)枚方営業所〒573-0032 大阪府枚方市岡東町14-40 |
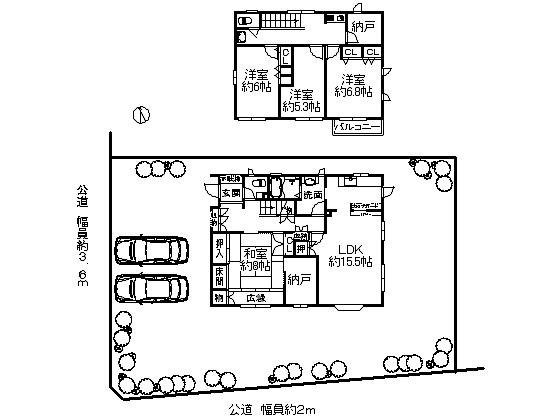
Floor plan間取り図  43,800,000 yen, 4LDK + 2S (storeroom), Land area 294.18 sq m , Building area 143.54 sq m
4380万円、4LDK+2S(納戸)、土地面積294.18m2、建物面積143.54m2
Local appearance photo現地外観写真  Local (September 2013) Shooting
現地(2013年9月)撮影
 Local (September 2013) Shooting
現地(2013年9月)撮影
Livingリビング  Indoor (September 2013) Shooting
室内(2013年9月)撮影
Bathroom浴室  Indoor (September 2013) Shooting
室内(2013年9月)撮影
Kitchenキッチン  Indoor (September 2013) Shooting
室内(2013年9月)撮影
Non-living roomリビング以外の居室  Indoor (September 2013) Shooting
室内(2013年9月)撮影
Entrance玄関  Local (September 2013) Shooting
現地(2013年9月)撮影
Toiletトイレ  Indoor (September 2013) Shooting
室内(2013年9月)撮影
Local photos, including front road前面道路含む現地写真  Local (September 2013) Shooting
現地(2013年9月)撮影
Garden庭  Indoor (September 2013) Shooting
室内(2013年9月)撮影
Kitchenキッチン  Indoor (September 2013) Shooting
室内(2013年9月)撮影
Non-living roomリビング以外の居室  Indoor (September 2013) Shooting
室内(2013年9月)撮影
Location
|