Used Homes » Kansai » Osaka prefecture » Ibaraki
 
| | Ibaraki, Osaka 大阪府茨木市 |
| Hankyu "Yamatedai 7-chome" walk 3 minutes 阪急バス「山手台7丁目」歩3分 |
| ■ Is Sekisui House, construction of the house! □ Parking space is widely two possible parking! ■ Bright has a very open feeling because it is the south-west side of the road! □ Lightweight steel frame! ■積水ハウス施工の家です!□駐車スペースが広く2台駐車可能!■南西側道路ですので非常に開放感があり明るいですよ!□軽量鉄骨造! |
| First top of feel free to contact us, Directly, please preview! [Housing exhibition fair - & Remodeling Fair -] ◆ Also held this year! ◆ January 11 (Sat) ~ 13 days (holiday) is, Happy privilege full of 3 days ☆ ・ I want to know now the "consumption tax increase and loan deduction", Individual consultations free of charge to the experts ・ Listing also Hokusetsu simultaneously exhibited 1,100! ・ Balloon art and also present plan Why do not you find the fun house? . Parking two Allowed, See the mountain, It is close to golf course, It is close to Tennis Court, All room storage, A quiet residential area, LDK15 tatami mats or moreese-style room, Toilet 2 places, 2-story, Leafy residential area, Southwestward, Flat terrain まずはお気軽にお問い合わせのうえ、直接ご内覧ください!【住宅展示フェア―&リフォームフェア―】◆今年も開催!◆1月11日(土) ~ 13日(祝)は、嬉しい特典いっぱいの3日間☆・今知っておきたい「消費増税やローン控除」を、専門家に無料で個別相談・物件情報も北摂1100件を一斉展示!・バルーンアートやプレゼント企画も 楽しく住まい探しをしませんか?詳細は下記の「関連リンク」をクリックしてご覧下さい。駐車2台可、山が見える、ゴルフ場が近い、テニスコートが近い、全居室収納、閑静な住宅地、LDK15畳以上、和室、トイレ2ヶ所、2階建、緑豊かな住宅地、南西向き、平坦地 |
Features pickup 特徴ピックアップ | | Parking two Allowed / See the mountain / It is close to golf course / It is close to Tennis Court / All room storage / A quiet residential area / LDK15 tatami mats or more / Japanese-style room / Toilet 2 places / 2-story / Leafy residential area / Southwestward / Flat terrain 駐車2台可 /山が見える /ゴルフ場が近い /テニスコートが近い /全居室収納 /閑静な住宅地 /LDK15畳以上 /和室 /トイレ2ヶ所 /2階建 /緑豊かな住宅地 /南西向き /平坦地 | Price 価格 | | 25,800,000 yen 2580万円 | Floor plan 間取り | | 5LDK 5LDK | Units sold 販売戸数 | | 1 units 1戸 | Land area 土地面積 | | 182.02 sq m (registration) 182.02m2(登記) | Building area 建物面積 | | 131.88 sq m (registration) 131.88m2(登記) | Driveway burden-road 私道負担・道路 | | Nothing, Southwest 6m width (contact the road width 13.5m) 無、南西6m幅(接道幅13.5m) | Completion date 完成時期(築年月) | | July 1987 1987年7月 | Address 住所 | | Ibaraki, Osaka Yamatedai 7 大阪府茨木市山手台7 | Traffic 交通 | | Hankyu "Yamatedai 7-chome" walk 3 minutes 阪急バス「山手台7丁目」歩3分 | Related links 関連リンク | | [Related Sites of this company] 【この会社の関連サイト】 | Person in charge 担当者より | | Person in charge of real-estate and building KikuHisashi As it is better suggestions by encouraging the voice of the "thank you" from Junichi customers, It will be addressed in good faith. 担当者宅建菊永 純一お客様からの「ありがとう」の声を励みにより良いご提案ができる様、誠意をもって取り組ませていただきます。 | Contact お問い合せ先 | | TEL: 0800-603-2282 [Toll free] mobile phone ・ Also available from PHS Caller ID is not notified Please contact the "saw SUUMO (Sumo)" If it does not lead, If the real estate company TEL:0800-603-2282【通話料無料】携帯電話・PHSからもご利用いただけます 発信者番号は通知されません 「SUUMO(スーモ)を見た」と問い合わせください つながらない方、不動産会社の方は
| Building coverage, floor area ratio 建ぺい率・容積率 | | Fifty percent ・ Hundred percent 50%・100% | Time residents 入居時期 | | Consultation 相談 | Land of the right form 土地の権利形態 | | Ownership 所有権 | Structure and method of construction 構造・工法 | | Light-gauge steel 2-story 軽量鉄骨2階建 | Use district 用途地域 | | One low-rise 1種低層 | Other limitations その他制限事項 | | Height district 高度地区 | Overview and notices その他概要・特記事項 | | Contact: KikuHisashi Junichi, Facilities: Public Water Supply, This sewage, City gas, Parking: Garage 担当者:菊永 純一、設備:公営水道、本下水、都市ガス、駐車場:車庫 | Company profile 会社概要 | | <Mediation> governor of Osaka (10) No. 021564 (Ltd.) Mishima Corporation JR Ibaraki head office Yubinbango567-0032 Ibaraki, Osaka Nishiekimae cho 6-22 <仲介>大阪府知事(10)第021564号(株)三島コーポレーションJR茨木本店〒567-0032 大阪府茨木市西駅前町6-22 |
Local appearance photo現地外観写真  Local (September 2012) shooting
現地(2012年9月)撮影
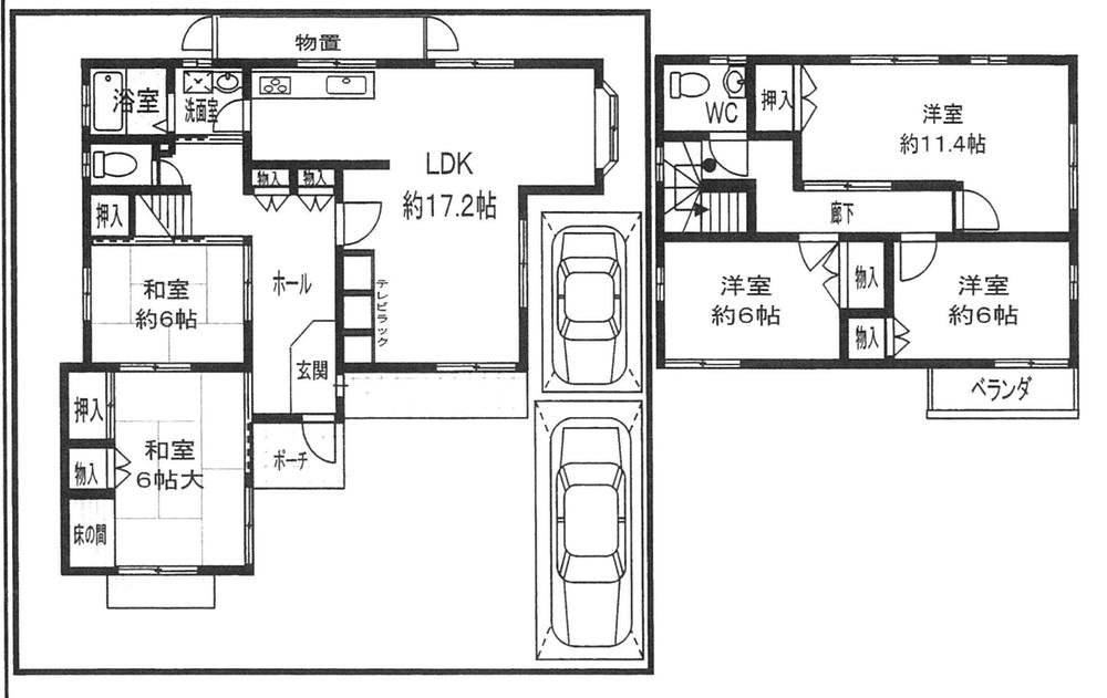
Floor plan間取り図  25,800,000 yen, 5LDK, Land area 182.02 sq m , Building area 131.88 sq m
2580万円、5LDK、土地面積182.02m2、建物面積131.88m2
Junior high school中学校  Ibaraki Tatsukita Mausoleum 2958m up to junior high school
茨木市立北陵中学校まで2958m
Primary school小学校  Ibaraki Municipal Yamatedai to elementary school 1588m
茨木市立山手台小学校まで1588m
Kindergarten ・ Nursery幼稚園・保育園  1394m to Sunny kindergarten
サニー幼稚園まで1394m
Post office郵便局  Ibaraki Yamatedai 1664m to the post office
茨木山手台郵便局まで1664m
Park公園  Yamatedai to Central Park 1509m
山手台中央公園まで1509m
Location
|