1994April
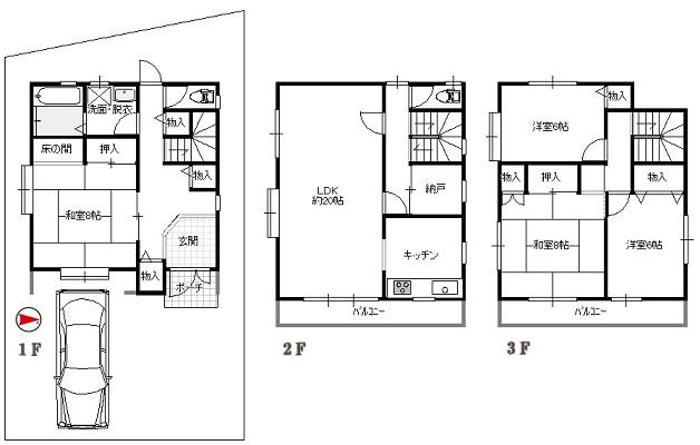
26,800,000 yen, 4LDK, 132.48 sq m
Used Homes » Kansai » Osaka prefecture » Ibaraki
 
| | Ibaraki, Osaka 大阪府茨木市 |
| Hankyu Kyoto Line "Ibaraki" walk 30 minutes 阪急京都線「茨木市」歩30分 |
| Land 30.41 square meters 2 × is 4 construction entrance spacious room design storage enhancement 土地30.41坪2×4工法です玄関広々ゆとり設計収納充実 |
Features pickup 特徴ピックアップ | | Immediate Available / LDK20 tatami mats or more / System kitchen / Yang per good / Japanese-style room / Toilet 2 places / Otobasu / The window in the bathroom / TV monitor interphone / Ventilation good / Three-story or more 即入居可 /LDK20畳以上 /システムキッチン /陽当り良好 /和室 /トイレ2ヶ所 /オートバス /浴室に窓 /TVモニタ付インターホン /通風良好 /3階建以上 | Price 価格 | | 26,800,000 yen 2680万円 | Floor plan 間取り | | 4LDK 4LDK | Units sold 販売戸数 | | 1 units 1戸 | Land area 土地面積 | | 100.56 sq m 100.56m2 | Building area 建物面積 | | 132.48 sq m 132.48m2 | Driveway burden-road 私道負担・道路 | | Nothing 無 | Completion date 完成時期(築年月) | | April 1994 1994年4月 | Address 住所 | | Ibaraki, Osaka Shindo 3 大阪府茨木市新堂3 | Traffic 交通 | | Hankyu Kyoto Line "Ibaraki" walk 30 minutes Hankyu "Shindo" walk 5 minutes 阪急京都線「茨木市」歩30分 阪急バス「新堂」歩5分 | Related links 関連リンク | | [Related Sites of this company] 【この会社の関連サイト】 | Person in charge 担当者より | | [Regarding this property.] Land 30.41 square meters 2 × is 4 construction entrance spacious room design storage enhancement 【この物件について】土地30.41坪2×4工法です玄関広々ゆとり設計収納充実 | Contact お問い合せ先 | | (Yes) Sunflower Corporation TEL: 0800-809-9097 [Toll free] mobile phone ・ Also available from PHS Caller ID is not notified Please contact the "saw SUUMO (Sumo)" If it does not lead, If the real estate company (有)ひまわりコーポレーションTEL:0800-809-9097【通話料無料】携帯電話・PHSからもご利用いただけます 発信者番号は通知されません 「SUUMO(スーモ)を見た」と問い合わせください つながらない方、不動産会社の方は
| Building coverage, floor area ratio 建ぺい率・容積率 | | 60% ・ 200% 60%・200% | Time residents 入居時期 | | Immediate available 即入居可 | Land of the right form 土地の権利形態 | | Ownership 所有権 | Structure and method of construction 構造・工法 | | Wooden three-story 木造3階建 | Use district 用途地域 | | One middle and high 1種中高 | Company profile 会社概要 | | <Mediation> governor of Osaka (2) No. 053309 (with) Sunflower Corporation Yubinbango577-0805 Osaka Higashi Takaramochi 2-6-8 <仲介>大阪府知事(2)第053309号(有)ひまわりコーポレーション〒577-0805 大阪府東大阪市宝持2-6-8 |
 Local appearance photo
現地外観写真
Floor plan間取り図  26,800,000 yen, 4LDK, Land area 100.56 sq m , Building area 132.48 sq m
2680万円、4LDK、土地面積100.56m2、建物面積132.48m2
 Other
その他
Location
|