1995May
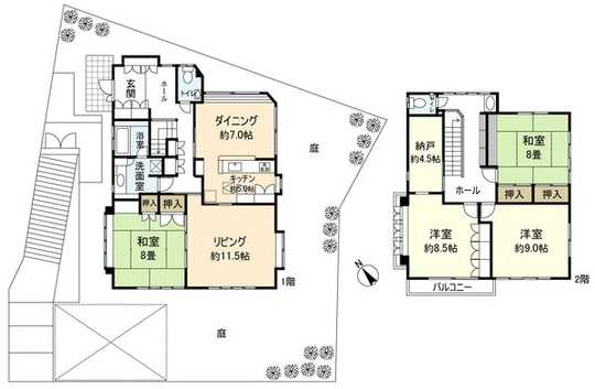
49,800,000 yen, 4LDK + S (storeroom), 156.27 sq m
Used Homes » Kansai » Osaka prefecture » Ibaraki
 
| | Ibaraki, Osaka 大阪府茨木市 |
| JR Tokaido Line "Ibaraki" walk 20 minutes JR東海道本線「茨木」歩20分 |
Price 価格 | | 49,800,000 yen 4980万円 | Floor plan 間取り | | 4LDK + S (storeroom) 4LDK+S(納戸) | Units sold 販売戸数 | | 1 units 1戸 | Land area 土地面積 | | 235.66 sq m (registration) 235.66m2(登記) | Building area 建物面積 | | 156.27 sq m (registration) 156.27m2(登記) | Driveway burden-road 私道負担・道路 | | Nothing, Northwest 4.9m width (contact the road width 4.4m) 無、北西4.9m幅(接道幅4.4m) | Completion date 完成時期(築年月) | | May 1995 1995年5月 | Address 住所 | | Ibaraki, Osaka Kitakasugaoka 1 大阪府茨木市北春日丘1 | Traffic 交通 | | JR Tokaido Line "Ibaraki" walk 20 minutes JR東海道本線「茨木」歩20分
| Person in charge 担当者より | | The person in charge Sakuraba Masashi 担当者櫻庭雅史 | Contact お問い合せ先 | | Mitsui Rehouse Ibaraki shop Mitsui Fudosan Realty (Ltd.) TEL: 0120-141731 [Toll free] Please contact the "saw SUUMO (Sumo)" 三井のリハウス茨木店三井不動産リアルティ(株)TEL:0120-141731【通話料無料】「SUUMO(スーモ)を見た」と問い合わせください | Building coverage, floor area ratio 建ぺい率・容積率 | | Fifty percent ・ Hundred percent 50%・100% | Time residents 入居時期 | | Consultation 相談 | Land of the right form 土地の権利形態 | | Ownership 所有権 | Structure and method of construction 構造・工法 | | Wooden 2-story 木造2階建 | Use district 用途地域 | | One low-rise 1種低層 | Overview and notices その他概要・特記事項 | | Contact: Sakuraba Masashi, Parking: car space 担当者:櫻庭雅史、駐車場:カースペース | Company profile 会社概要 | | <Mediation> Minister of Land, Infrastructure and Transport (13) No. 000777 (one company) Property distribution management Association (Corporation) metropolitan area real estate Fair Trade Council member Mitsui Rehouse Ibaraki shop Mitsui Fudosan Realty Co. Yubinbango567-0828 Ibaraki, Osaka Funaki-cho 5-12 Whiteville first floor <仲介>国土交通大臣(13)第000777号(一社)不動産流通経営協会会員 (公社)首都圏不動産公正取引協議会加盟三井のリハウス茨木店三井不動産リアルティ(株)〒567-0828 大阪府茨木市舟木町5-12 ホワイトビル1階 |
 Local appearance photo
現地外観写真
 Floor plan
間取り図
Location
|