1986April
95 million yen, 5LDK, 318.32 sq m
Used Homes » Kansai » Osaka prefecture » Ikeda
 
| | Osaka Prefecture Ikeda 大阪府池田市 |
| Hankyu Takarazuka Line "Ikeda" bus 7 minutes Satsukigaoka elementary school before walk 2 minutes 阪急宝塚線「池田」バス7分五月丘小学校前歩2分 |
Features pickup 特徴ピックアップ | | Corner lot / Good view / Located on a hill 角地 /眺望良好 /高台に立地 | Price 価格 | | 95 million yen 9500万円 | Floor plan 間取り | | 5LDK 5LDK | Units sold 販売戸数 | | 1 units 1戸 | Land area 土地面積 | | 297.35 sq m (registration) 297.35m2(登記) | Building area 建物面積 | | 318.32 sq m (registration) 318.32m2(登記) | Driveway burden-road 私道負担・道路 | | Nothing, South 6m width (contact the road width 18m), West 8m width (contact the road width 12m) 無、南6m幅(接道幅18m)、西8m幅(接道幅12m) | Completion date 完成時期(築年月) | | April 1986 1986年4月 | Address 住所 | | Osaka Prefecture Ikeda Satsukigaoka 5 大阪府池田市五月丘5 | Traffic 交通 | | Hankyu Takarazuka Line "Ikeda" bus 7 minutes Satsukigaoka elementary school before walk 2 minutes 阪急宝塚線「池田」バス7分五月丘小学校前歩2分
| Contact お問い合せ先 | | TEL: 0800-603-1265 [Toll free] mobile phone ・ Also available from PHS Caller ID is not notified Please contact the "saw SUUMO (Sumo)" If it does not lead, If the real estate company TEL:0800-603-1265【通話料無料】携帯電話・PHSからもご利用いただけます 発信者番号は通知されません 「SUUMO(スーモ)を見た」と問い合わせください つながらない方、不動産会社の方は
| Building coverage, floor area ratio 建ぺい率・容積率 | | 40% ・ 200% 40%・200% | Time residents 入居時期 | | Consultation 相談 | Land of the right form 土地の権利形態 | | Ownership 所有権 | Structure and method of construction 構造・工法 | | RC3 story RC3階建 | Use district 用途地域 | | One middle and high 1種中高 | Other limitations その他制限事項 | | Scenic zone 風致地区 | Overview and notices その他概要・特記事項 | | Facilities: Public Water Supply, This sewage, City gas, Parking: underground garage 設備:公営水道、本下水、都市ガス、駐車場:地下車庫 | Company profile 会社概要 | | <Mediation> Minister of Land, Infrastructure and Transport (11) No. 002287 (Corporation) Japan Living Service Co., Ltd. Senri office Yubinbango560-0082 Toyonaka, Osaka Shinsenrihigashi-cho 1-1-3 (Yomiuri Cultural Center first floor) <仲介>国土交通大臣(11)第002287号(株)日住サービス千里中央営業所〒560-0082 大阪府豊中市新千里東町1-1-3 (よみうり文化センター1階) |
Local appearance photo現地外観写真  Local (August 2012) shooting
現地(2012年8月)撮影
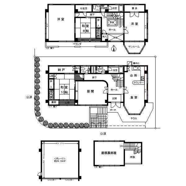
Floor plan間取り図  95 million yen, 5LDK, Land area 297.35 sq m , Building area 318.32 sq m
9500万円、5LDK、土地面積297.35m2、建物面積318.32m2
Livingリビング  Room (August 2012) shooting
室内(2012年8月)撮影
Entrance玄関  Indoor (August 212 years) shooting
室内(212年8月)撮影
View photos from the dwelling unit住戸からの眺望写真  View from the site (August 2012) shooting
現地からの眺望(2012年8月)撮影
Location
|