1998September
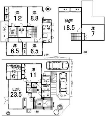
48,800,000 yen, 7LDK + S (storeroom), 246.82 sq m
Used Homes » Kansai » Osaka prefecture » Izumi City
 
| | Izumi City, Osaka 大阪府和泉市 |
| Senboku high-speed rail, "Izumi center" walk 7 minutes 泉北高速鉄道「和泉中央」歩7分 |
Price 価格 | | 48,800,000 yen 4880万円 | Floor plan 間取り | | 7LDK + S (storeroom) 7LDK+S(納戸) | Units sold 販売戸数 | | 1 units 1戸 | Land area 土地面積 | | 227.33 sq m (registration) 227.33m2(登記) | Building area 建物面積 | | 246.82 sq m (registration) 246.82m2(登記) | Driveway burden-road 私道負担・道路 | | Nothing, Southeast 8m width (contact the road width 13m), Northeast 6m width 無、南東8m幅(接道幅13m)、北東6m幅 | Completion date 完成時期(築年月) | | September 1998 1998年9月 | Address 住所 | | Osaka Izumi City Ibukino 3 大阪府和泉市いぶき野3 | Traffic 交通 | | Senboku high-speed rail, "Izumi center" walk 7 minutes 泉北高速鉄道「和泉中央」歩7分
| Person in charge 担当者より | | Rep Shimada Koji 担当者島田 浩司 | Contact お問い合せ先 | | Sumitomo Real Estate Sales Co., Ltd. Izumi central business center TEL: 0120-006351 [Toll free] Please contact the "saw SUUMO (Sumo)" 住友不動産販売(株)和泉中央営業センターTEL:0120-006351【通話料無料】「SUUMO(スーモ)を見た」と問い合わせください | Building coverage, floor area ratio 建ぺい率・容積率 | | Fifty percent ・ Hundred percent 50%・100% | Time residents 入居時期 | | Consultation 相談 | Land of the right form 土地の権利形態 | | Ownership 所有権 | Structure and method of construction 構造・工法 | | Wooden three-story 木造3階建 | Use district 用途地域 | | One low-rise 1種低層 | Other limitations その他制限事項 | | / Second floor storeroom 3.5 ・ Study 3 ・ K3.7 The third floor storeroom 18.5 / Terrain: flat /2階納戸3.5・書斎3・K3.7 3階納戸18.5/地勢:平坦 | Overview and notices その他概要・特記事項 | | Contact: Shimada Koji, Parking: car space 担当者:島田 浩司、駐車場:カースペース | Company profile 会社概要 | | <Mediation> Minister of Land, Infrastructure and Transport (11) No. 002077 (one company) Property distribution management Association (Corporation) metropolitan area real estate Fair Trade Council member Sumitomo Real Estate Sales Co., Ltd. Izumi central business center Yubinbango594-0041 Osaka Izumi City Ibukino 4-5 Ecole ・ Izumi North Building second floor <仲介>国土交通大臣(11)第002077号(一社)不動産流通経営協会会員 (公社)首都圏不動産公正取引協議会加盟住友不動産販売(株)和泉中央営業センター〒594-0041 大阪府和泉市いぶき野4-5 エコール・いずみ北館2階 |
Local appearance photo現地外観写真  appearance
外観
 Floor plan
間取り図
Location
|