1981September
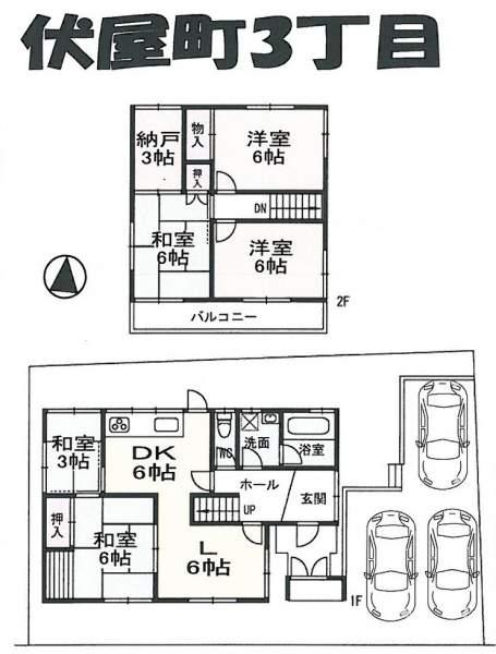
22,800,000 yen, 4LDK + S (storeroom), 114.86 sq m
Used Homes » Kansai » Osaka prefecture » Izumi City

| | Izumi City, Osaka 大阪府和泉市 |
| Senboku high-speed rail "Komyoike" walk 16 minutes 泉北高速鉄道「光明池」歩16分 |
| There is not difference in height or so of the road. There three garage. 道路との高低差あまりございません。車庫3台ございます。 |
Features pickup 特徴ピックアップ | | Land 50 square meters or more / City gas 土地50坪以上 /都市ガス | Price 価格 | | 22,800,000 yen 2280万円 | Floor plan 間取り | | 4LDK + S (storeroom) 4LDK+S(納戸) | Units sold 販売戸数 | | 1 units 1戸 | Land area 土地面積 | | 206.21 sq m (registration) 206.21m2(登記) | Building area 建物面積 | | 114.86 sq m (registration) 114.86m2(登記) | Driveway burden-road 私道負担・道路 | | Nothing, South 4.9m width 無、南4.9m幅 | Completion date 完成時期(築年月) | | September 1981 1981年9月 | Address 住所 | | Osaka Izumi City, hut-cho 3 大阪府和泉市伏屋町3 | Traffic 交通 | | Senboku high-speed rail "Komyoike" walk 16 minutes 泉北高速鉄道「光明池」歩16分
| Related links 関連リンク | | [Related Sites of this company] 【この会社の関連サイト】 | Person in charge 担当者より | | Rep Nishikawa 担当者西川 | Contact お問い合せ先 | | TEL: 0800-603-0479 [Toll free] mobile phone ・ Also available from PHS Caller ID is not notified Please contact the "saw SUUMO (Sumo)" If it does not lead, If the real estate company TEL:0800-603-0479【通話料無料】携帯電話・PHSからもご利用いただけます 発信者番号は通知されません 「SUUMO(スーモ)を見た」と問い合わせください つながらない方、不動産会社の方は
| Building coverage, floor area ratio 建ぺい率・容積率 | | 60% ・ 200% 60%・200% | Time residents 入居時期 | | Consultation 相談 | Land of the right form 土地の権利形態 | | Ownership 所有権 | Structure and method of construction 構造・工法 | | Light-gauge steel 2-story 軽量鉄骨2階建 | Use district 用途地域 | | Semi-industrial 準工業 | Overview and notices その他概要・特記事項 | | Contact: Nishikawa, Parking: car space 担当者:西川、駐車場:カースペース | Company profile 会社概要 | | <Mediation> Minister of Land, Infrastructure and Transport (10) No. 002608 Japan Residential Distribution Co., Ltd. Senboku shop Yubinbango594-1101 Osaka Izumi City Murodo cho 824-36 com box Komyoike 2F <仲介>国土交通大臣(10)第002608号日本住宅流通(株)泉北店〒594-1101 大阪府和泉市室堂町824-36 コムボックス光明池2F |
Floor plan間取り図  22,800,000 yen, 4LDK+S, Land area 206.21 sq m , Building area 114.86 sq m
2280万円、4LDK+S、土地面積206.21m2、建物面積114.86m2
Location
|