2011March
42,800,000 yen, 4LDK + S (storeroom), 118.4 sq m
Used Homes » Kansai » Osaka prefecture » Izumi City
 
| | Izumi City, Osaka 大阪府和泉市 |
| Senboku high-speed rail "Komyoike" 15 minutes Mizukidai 2-chome NishiAyumi 2 minutes by bus 泉北高速鉄道「光明池」バス15分みずき台2丁目西歩2分 |
| Is a three-way corner lot. Car car park two, There floor heating Chu tassel. 三方角地です。車車場2台、床暖駐房ございます。 |
Features pickup 特徴ピックアップ | | Parking two Allowed / LDK20 tatami mats or more / A quiet residential area / Or more before road 6m / Corner lot / Starting station / garden / Toilet 2 places / The window in the bathroom / City gas / Floor heating 駐車2台可 /LDK20畳以上 /閑静な住宅地 /前道6m以上 /角地 /始発駅 /庭 /トイレ2ヶ所 /浴室に窓 /都市ガス /床暖房 | Price 価格 | | 42,800,000 yen 4280万円 | Floor plan 間取り | | 4LDK + S (storeroom) 4LDK+S(納戸) | Units sold 販売戸数 | | 1 units 1戸 | Land area 土地面積 | | 227.13 sq m (registration) 227.13m2(登記) | Building area 建物面積 | | 118.4 sq m (registration) 118.4m2(登記) | Driveway burden-road 私道負担・道路 | | Nothing, North 5.5m width, South 15m width, West 6.5m width 無、北5.5m幅、南15m幅、西6.5m幅 | Completion date 完成時期(築年月) | | March 2011 2011年3月 | Address 住所 | | Osaka Izumi City Mizukidai 2 大阪府和泉市みずき台2 | Traffic 交通 | | Senboku high-speed rail "Komyoike" 15 minutes Mizukidai 2-chome NishiAyumi 2 minutes by bus 泉北高速鉄道「光明池」バス15分みずき台2丁目西歩2分
| Related links 関連リンク | | [Related Sites of this company] 【この会社の関連サイト】 | Person in charge 担当者より | | Rep Imura 担当者井村 | Contact お問い合せ先 | | TEL: 0800-603-0479 [Toll free] mobile phone ・ Also available from PHS Caller ID is not notified Please contact the "saw SUUMO (Sumo)" If it does not lead, If the real estate company TEL:0800-603-0479【通話料無料】携帯電話・PHSからもご利用いただけます 発信者番号は通知されません 「SUUMO(スーモ)を見た」と問い合わせください つながらない方、不動産会社の方は
| Building coverage, floor area ratio 建ぺい率・容積率 | | 40% ・ 80% 40%・80% | Time residents 入居時期 | | Consultation 相談 | Land of the right form 土地の権利形態 | | Ownership 所有権 | Structure and method of construction 構造・工法 | | Wooden 2-story 木造2階建 | Use district 用途地域 | | One low-rise 1種低層 | Overview and notices その他概要・特記事項 | | Contact: Imura, Parking: car space 担当者:井村、駐車場:カースペース | Company profile 会社概要 | | <Mediation> Minister of Land, Infrastructure and Transport (10) No. 002608 Japan Residential Distribution Co., Ltd. Senboku shop Yubinbango594-1101 Osaka Izumi City Murodo cho 824-36 com box Komyoike 2F <仲介>国土交通大臣(10)第002608号日本住宅流通(株)泉北店〒594-1101 大阪府和泉市室堂町824-36 コムボックス光明池2F |
 Local appearance photo
現地外観写真
 Other introspection
その他内観
 Living
リビング
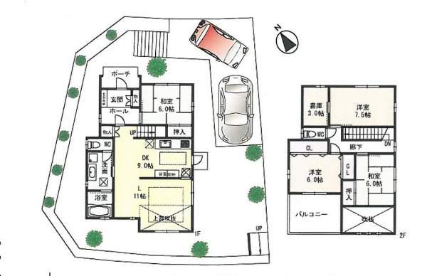
Floor plan間取り図  42,800,000 yen, 4LDK+S, Land area 227.13 sq m , Building area 118.4 sq m
4280万円、4LDK+S、土地面積227.13m2、建物面積118.4m2
 Bathroom
浴室
 Kitchen
キッチン
 Wash basin, toilet
洗面台・洗面所
 Toilet
トイレ
 Other introspection
その他内観
 View photos from the dwelling unit
住戸からの眺望写真
 Other introspection
その他内観
 Other introspection
その他内観
Location
|