|
|
Osaka Prefecture Kadoma
大阪府門真市
|
|
Keihan "Owada" 15 minutes Ayumi Ebata 4 minutes by bus
京阪本線「大和田」バス15分江端歩4分
|
|
■ H21_nenkenchikunochikuasabukkendesu. ■ All-electric housing ■ 4LDK + parking ■ It will be able to immediately move. ■ The room is very clean your.
■H21年建築の築浅物件です。■オール電化住宅■4LDK+駐車場■即入居していただけます。■室内たいへん綺麗にお使いです。
|
|
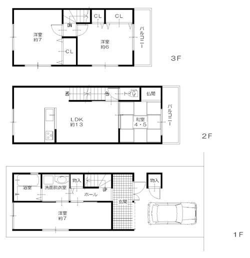
■ Wide on the second floor and the third floor balcony each. ■ The LDK, which with a counter kitchen are adjacent 4.5 Pledge of Japanese-style room, You can use spacious and you. It will be to the size of about 17.5 Pledge Taken together the LDK and the Japanese-style room.
■2階と3階に広いバルコニーがそれぞれ付いています。■カウンターキッチンのついたLDKには4.5帖の和室が隣接されており、広々とお使いいただけます。LDKと和室を併せると約17.5帖の広さになります。
|
Features pickup 特徴ピックアップ | | Immediate Available / System kitchen / A quiet residential area / Japanese-style room / Face-to-face kitchen / Wide balcony / 2 or more sides balcony / Three-story or more / All-electric / Flat terrain 即入居可 /システムキッチン /閑静な住宅地 /和室 /対面式キッチン /ワイドバルコニー /2面以上バルコニー /3階建以上 /オール電化 /平坦地 |
Price 価格 | | 19.5 million yen 1950万円 |
Floor plan 間取り | | 4LDK 4LDK |
Units sold 販売戸数 | | 1 units 1戸 |
Land area 土地面積 | | 57.2 sq m (registration) 57.2m2(登記) |
Building area 建物面積 | | 88.29 sq m (registration) 88.29m2(登記) |
Driveway burden-road 私道負担・道路 | | Nothing, East 4.3m width 無、東4.3m幅 |
Completion date 完成時期(築年月) | | April 2009 2009年4月 |
Address 住所 | | Osaka Prefecture Kadoma Ebata-cho 大阪府門真市江端町 |
Traffic 交通 | | Keihan "Owada" 15 minutes Ayumi Ebata 4 minutes by bus 京阪本線「大和田」バス15分江端歩4分
|
Contact お問い合せ先 | | (Ltd.) Nakatomi building contractors TEL: 0800-603-1649 [Toll free] mobile phone ・ Also available from PHS Caller ID is not notified Please contact the "saw SUUMO (Sumo)" If it does not lead, If the real estate company (株)中富工務店TEL:0800-603-1649【通話料無料】携帯電話・PHSからもご利用いただけます 発信者番号は通知されません 「SUUMO(スーモ)を見た」と問い合わせください つながらない方、不動産会社の方は
|
Building coverage, floor area ratio 建ぺい率・容積率 | | 60% ・ 200% 60%・200% |
Time residents 入居時期 | | Immediate available 即入居可 |
Land of the right form 土地の権利形態 | | Ownership 所有権 |
Structure and method of construction 構造・工法 | | Wooden three-story 木造3階建 |
Use district 用途地域 | | Semi-industrial 準工業 |
Other limitations その他制限事項 | | Quasi-fire zones 準防火地域 |
Overview and notices その他概要・特記事項 | | Facilities: Public Water Supply, This sewage, Parking: car space 設備:公営水道、本下水、駐車場:カースペース |
Company profile 会社概要 | | <Mediation> governor of Osaka (6) No. 033657 (Ltd.) Nakatomi builders Yubinbango575-0063 Osaka shijonawate Seiryu 18-11 <仲介>大阪府知事(6)第033657号(株)中富工務店〒575-0063 大阪府四條畷市清瀧18-11 |