|
|
Osaka Prefecture Kadoma
大阪府門真市
|
|
Keihan "Owada" bus 13 minutes Kadoma garage before walk 2 minutes
京阪本線「大和田」バス13分門真車庫前歩2分
|
|
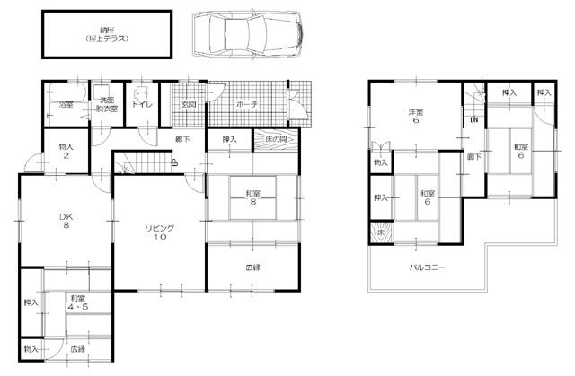
■ 5LDK + parking ■ Good per sun on the southeast corner lot! East side road is wide and there is a sense of relief at 6.9m. ■ About 63 square meters is wide of the land ■ It is ready-to-delivery per vacant house!
■5LDK+駐車場■東南角地で陽当たり良好!東側道路は広さが6.9mで開放感があります。■土地の広さは約63坪■空家につき引渡し即可能です!
|
|
■ South-facing wide balcony of. Ideal for well washing clothes also hit yang. ■ All room with storage. The dining kitchen is equipped with about 2 Pledge of things need a. ■ There are respectively on the first floor of the Japanese-style room 2 room Hiroen, You spend slowly while looking at Nantei. ■ There is a separate barn with a roof terrace (unregistered: about 8.38 square meters)
■南向きのワイドバルコニー。陽当たりも良く洗濯物干しに最適です。■全居室収納付き。ダイニングキッチンには約2帖の物入が付いています。■1階の和室2部屋にはそれぞれ広縁があり、南庭を眺めながらゆっくり過ごせます。■屋上テラス付の納屋別途あり(未登記:約8.38平米)
|
Features pickup 特徴ピックアップ | | Immediate Available / Land 50 square meters or more / LDK18 tatami mats or more / Facing south / System kitchen / Yang per good / All room storage / Siemens south road / A quiet residential area / Or more before road 6m / Corner lot / Japanese-style room / garden / Home garden / Washbasin with shower / Wide balcony / Bathroom 1 tsubo or more / 2-story / South balcony / Zenshitsuminami direction / Warm water washing toilet seat / The window in the bathroom / Leafy residential area / City gas / Storeroom / Flat terrain / rooftop 即入居可 /土地50坪以上 /LDK18畳以上 /南向き /システムキッチン /陽当り良好 /全居室収納 /南側道路面す /閑静な住宅地 /前道6m以上 /角地 /和室 /庭 /家庭菜園 /シャワー付洗面台 /ワイドバルコニー /浴室1坪以上 /2階建 /南面バルコニー /全室南向き /温水洗浄便座 /浴室に窓 /緑豊かな住宅地 /都市ガス /納戸 /平坦地 /屋上 |
Price 価格 | | 39,800,000 yen 3980万円 |
Floor plan 間取り | | 5LDK + S (storeroom) 5LDK+S(納戸) |
Units sold 販売戸数 | | 1 units 1戸 |
Land area 土地面積 | | 210.88 sq m 210.88m2 |
Building area 建物面積 | | 129.17 sq m (registration) 129.17m2(登記) |
Driveway burden-road 私道負担・道路 | | Nothing, South 4.7m width, East 6.9m width (contact the road width 28.1m) 無、南4.7m幅、東6.9m幅(接道幅28.1m) |
Completion date 完成時期(築年月) | | April 1969 1969年4月 |
Address 住所 | | Osaka Prefecture Kadoma Sengokuhigashi cho 大阪府門真市千石東町 |
Traffic 交通 | | Keihan "Owada" bus 13 minutes Kadoma garage before walk 2 minutes Subway Nagahori Tsurumi-ryokuchi Line "Kadoma south" walk 28 minutes JR katamachi line "Suminodo" walk 38 minutes 京阪本線「大和田」バス13分門真車庫前歩2分 地下鉄長堀鶴見緑地線「門真南」歩28分 JR片町線「住道」歩38分
|
Contact お問い合せ先 | | (Ltd.) Nakatomi building contractors TEL: 0800-603-1649 [Toll free] mobile phone ・ Also available from PHS Caller ID is not notified Please contact the "saw SUUMO (Sumo)" If it does not lead, If the real estate company (株)中富工務店TEL:0800-603-1649【通話料無料】携帯電話・PHSからもご利用いただけます 発信者番号は通知されません 「SUUMO(スーモ)を見た」と問い合わせください つながらない方、不動産会社の方は
|
Building coverage, floor area ratio 建ぺい率・容積率 | | Fifty percent ・ Hundred percent 50%・100% |
Time residents 入居時期 | | Immediate available 即入居可 |
Land of the right form 土地の権利形態 | | Ownership 所有権 |
Structure and method of construction 構造・工法 | | Wooden 2-story 木造2階建 |
Use district 用途地域 | | One low-rise 1種低層 |
Overview and notices その他概要・特記事項 | | Facilities: Public Water Supply, This sewage, City gas, Parking: car space 設備:公営水道、本下水、都市ガス、駐車場:カースペース |
Company profile 会社概要 | | <Mediation> governor of Osaka (6) No. 033657 (Ltd.) Nakatomi builders Yubinbango575-0063 Osaka shijonawate Seiryu 18-11 <仲介>大阪府知事(6)第033657号(株)中富工務店〒575-0063 大阪府四條畷市清瀧18-11 |