2010July
21.5 million yen, 4LDK, 100.57 sq m
Used Homes » Kansai » Osaka prefecture » Kadoma

| | Osaka Prefecture Kadoma 大阪府門真市 |
| Keihan "Owada" walk 20 minutes 京阪本線「大和田」歩20分 |
| ■ H22_nenkenchiku ■ Land 28.68 square meters ■ Before road 4.7M ■ All-electric ■H22年建築■土地28.68坪■前道4.7M■オール電化 |
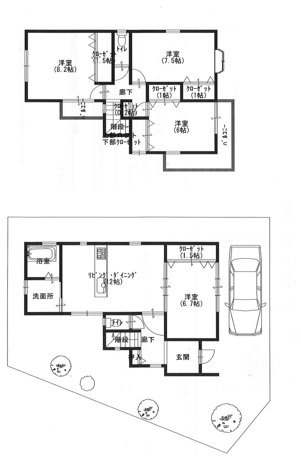
Features pickup 特徴ピックアップ | | 2-story / All-electric 2階建 /オール電化 | Price 価格 | | 21.5 million yen 2150万円 | Floor plan 間取り | | 4LDK 4LDK | Units sold 販売戸数 | | 1 units 1戸 | Land area 土地面積 | | 94.82 sq m 94.82m2 | Building area 建物面積 | | 100.57 sq m 100.57m2 | Driveway burden-road 私道負担・道路 | | Nothing, East 10.5m width 無、東10.5m幅 | Completion date 完成時期(築年月) | | July 2010 2010年7月 | Address 住所 | | Osaka Prefecture Kadoma Satsukida cho 大阪府門真市五月田町 | Traffic 交通 | | Keihan "Owada" walk 20 minutes 京阪本線「大和田」歩20分
| Related links 関連リンク | | [Related Sites of this company] 【この会社の関連サイト】 | Contact お問い合せ先 | | TEL: 06-6901-1456 Please contact as "saw SUUMO (Sumo)" TEL:06-6901-1456「SUUMO(スーモ)を見た」と問い合わせください | Building coverage, floor area ratio 建ぺい率・容積率 | | 60% ・ 200% 60%・200% | Time residents 入居時期 | | Consultation 相談 | Land of the right form 土地の権利形態 | | Ownership 所有権 | Structure and method of construction 構造・工法 | | Wooden 2-story 木造2階建 | Use district 用途地域 | | One dwelling 1種住居 | Overview and notices その他概要・特記事項 | | Facilities: all-electric 設備:オール電化 | Company profile 会社概要 | | <Mediation> governor of Osaka (2) the first 050,609 No. Tama Estate Co., Ltd., Koei builders Yubinbango570-0012 Osaka Moriguchi Okubo-cho, 3-1-1 <仲介>大阪府知事(2)第050609号タマエステート(株)弘栄工務店〒570-0012 大阪府守口市大久保町3-1-1 |
Floor plan間取り図  21.5 million yen, 4LDK, Land area 94.82 sq m , Building area 100.57 sq m floor plan
2150万円、4LDK、土地面積94.82m2、建物面積100.57m2 間取り図
Location
|