1986September
10.8 million yen, 5LDK, 88.57 sq m
Used Homes » Kansai » Osaka prefecture » Kadoma

| | Osaka Prefecture Kadoma 大阪府門真市 |
| Keihan "Furukawa Bridge" walk 11 minutes 京阪本線「古川橋」歩11分 |
| ○ is a spacious house of 5LDK ○ ○5LDKの広々したお家です○ |
| Yang per good, A quiet residential areaese-style room, The window in the bathroom, Ventilation good 陽当り良好、閑静な住宅地、和室、浴室に窓、通風良好 |
Features pickup 特徴ピックアップ | | Yang per good / A quiet residential area / Japanese-style room / The window in the bathroom / Ventilation good 陽当り良好 /閑静な住宅地 /和室 /浴室に窓 /通風良好 | Price 価格 | | 10.8 million yen 1080万円 | Floor plan 間取り | | 5LDK 5LDK | Units sold 販売戸数 | | 1 units 1戸 | Land area 土地面積 | | 41.02 sq m (registration) 41.02m2(登記) | Building area 建物面積 | | 88.57 sq m (registration) 88.57m2(登記) | Driveway burden-road 私道負担・道路 | | Nothing 無 | Completion date 完成時期(築年月) | | September 1986 1986年9月 | Address 住所 | | Osaka Prefecture Kadoma Shikotobuki cho 大阪府門真市寿町 | Traffic 交通 | | Keihan "Furukawa Bridge" walk 11 minutes Keihan "Owada" walk 16 minutes Keihan "Kadoma" walk 19 minutes 京阪本線「古川橋」歩11分 京阪本線「大和田」歩16分 京阪本線「門真市」歩19分
| Person in charge 担当者より | | The person in charge Takahashi Ryuya Age: 20 Daigyokai experience: there is also the second year in my own motto, Let's look for a happy My home, such as can be the one day laugh together! 担当者高橋 竜矢年齢:20代業界経験:2年私自身の座右の銘でもある、一日一笑を出来るような幸せなマイホームを一緒に探しましょう! | Contact お問い合せ先 | | TEL: 0800-805-4071 [Toll free] mobile phone ・ Also available from PHS Caller ID is not notified Please contact the "saw SUUMO (Sumo)" If it does not lead, If the real estate company TEL:0800-805-4071【通話料無料】携帯電話・PHSからもご利用いただけます 発信者番号は通知されません 「SUUMO(スーモ)を見た」と問い合わせください つながらない方、不動産会社の方は
| Building coverage, floor area ratio 建ぺい率・容積率 | | 60% ・ 200% 60%・200% | Time residents 入居時期 | | Consultation 相談 | Land of the right form 土地の権利形態 | | Ownership 所有権 | Structure and method of construction 構造・工法 | | Wooden three-story 木造3階建 | Overview and notices その他概要・特記事項 | | Contact: Takahashi Ryuya , Facilities: Public Water Supply, This sewage, Parking: Garage 担当者:高橋 竜矢 、設備:公営水道、本下水、駐車場:車庫 | Company profile 会社概要 | | <Mediation> governor of Osaka Prefecture (1) No. 056319 (Ltd.) rack housing Kadoma shop Yubinbango571-0065 Osaka Kadoma KAKIUCHI cho 3-17 <仲介>大阪府知事(1)第056319号(株)ラックハウジング門真店〒571-0065 大阪府門真市垣内町3-17 |
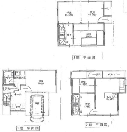
Floor plan間取り図  10.8 million yen, 5LDK, Land area 41.02 sq m , Building area 88.57 sq m
1080万円、5LDK、土地面積41.02m2、建物面積88.57m2
Location
|