|
|
Osaka Prefecture Kadoma
大阪府門真市
|
|
Keihan "Kayashima" bus 13 minutes Ayumi Ebata 4 minutes
京阪本線「萱島」バス13分江端歩4分
|
|
■ Or holiday stroll in Fukakita green space where you can enjoy sports and walk, etc. Why ■ Good per sun per southeast corner lot ■ Built-in garage protects your valuable car
■休日はスポーツやお散歩等楽しめる深北緑地でお散歩はいかがでしょうか■南東角地につき陽当たり良好■ビルトインガレージは大切なお車を守ります
|
|
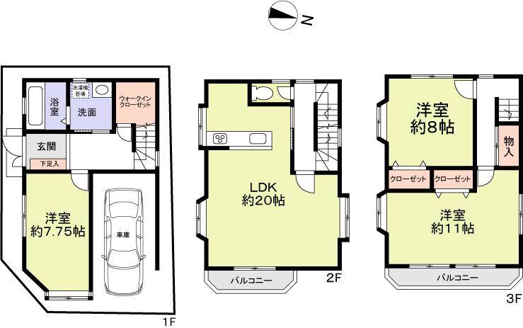
■ Floor plan of the room in each room 7 quires more ■ Life Information ・ To East Elementary School About 560m ・ Until the fourth junior high school About 500m ・ Kadoma Shimomabushi until the post office About 180m ・ Fukakita to green space About 320m ・ Up to life Innovation Center AS About 320m ・ Until the business Super Kadoma shop About 610m ・ Red Cliff to Kadoma Ebata shop About 250m ・ Until Lawson Shimomabushi shop About 200m ※ Driveway burden: 62.10 1 of equity 5 minutes out of sq m ・ 4.47 1 of equity 9 minutes of the sq m
■各居室は7帖以上でゆとりの間取り■ライフインフォメーション ・東小学校まで 約560m ・第四中学校まで 約500m ・門真下馬伏郵便局まで 約180m ・深北緑地まで 約320m ・生活創造館アズまで 約320m ・業務スーパー門真店まで 約610m ・アカカベ門真江端店まで 約250m ・ローソン下馬伏店まで 約200m※私道負担:62.10m2のうち持分5分の1 ・ 4.47m2のうち持分9分の1
|
Features pickup 特徴ピックアップ | | LDK20 tatami mats or more / Super close / Washbasin with shower / Face-to-face kitchen / The window in the bathroom / Dish washing dryer / Three-story or more / City gas LDK20畳以上 /スーパーが近い /シャワー付洗面台 /対面式キッチン /浴室に窓 /食器洗乾燥機 /3階建以上 /都市ガス |
Price 価格 | | 19,800,000 yen 1980万円 |
Floor plan 間取り | | 3LDK 3LDK |
Units sold 販売戸数 | | 1 units 1戸 |
Land area 土地面積 | | 66.59 sq m (registration) 66.59m2(登記) |
Building area 建物面積 | | 123.52 sq m (registration) 123.52m2(登記) |
Driveway burden-road 私道負担・道路 | | Share equity 62.1 sq m × (1 / 5) 共有持分62.1m2×(1/5) |
Completion date 完成時期(築年月) | | November 2001 2001年11月 |
Address 住所 | | Osaka Prefecture Kadoma Ebata-cho 大阪府門真市江端町 |
Traffic 交通 | | Keihan "Kayashima" bus 13 minutes Ayumi Ebata 4 minutes 京阪本線「萱島」バス13分江端歩4分
|
Related links 関連リンク | | [Related Sites of this company] 【この会社の関連サイト】 |
Person in charge 担当者より | | Rep Oyama Nobuaki 担当者大山 信明 |
Contact お問い合せ先 | | Sumitomo Forestry Home Service Co., Ltd. Moriguchi shop TEL: 0800-603-0276 [Toll free] mobile phone ・ Also available from PHS Caller ID is not notified Please contact the "saw SUUMO (Sumo)" If it does not lead, If the real estate company 住友林業ホームサービス(株)守口店TEL:0800-603-0276【通話料無料】携帯電話・PHSからもご利用いただけます 発信者番号は通知されません 「SUUMO(スーモ)を見た」と問い合わせください つながらない方、不動産会社の方は
|
Building coverage, floor area ratio 建ぺい率・容積率 | | 60% ・ 200% 60%・200% |
Time residents 入居時期 | | Consultation 相談 |
Land of the right form 土地の権利形態 | | Ownership 所有権 |
Structure and method of construction 構造・工法 | | Steel frame three-story 鉄骨3階建 |
Use district 用途地域 | | Semi-industrial 準工業 |
Other limitations その他制限事項 | | Quasi-fire zones, Reconstruction not Reconstruction allowed by the permit acquisition of 43 Article 61 準防火地域、再建築不可 43条但書の許可取得により再建築可 |
Overview and notices その他概要・特記事項 | | Contact: Oyama Nobuaki, Facilities: Public Water Supply, This sewage, City gas, Parking: car space 担当者:大山 信明、設備:公営水道、本下水、都市ガス、駐車場:カースペース |
Company profile 会社概要 | | <Mediation> Minister of Land, Infrastructure and Transport (14) Article 000220 No. Sumitomo Forestry Home Service Co., Ltd. Moriguchi shop Yubinbango570-0056 Osaka Moriguchi Jinaimachi 2-7-3 <仲介>国土交通大臣(14)第000220号住友林業ホームサービス(株)守口店〒570-0056 大阪府守口市寺内町2-7-3 |