Used Homes » Kansai » Osaka prefecture » Katano


Osaka Prefecture Katano
Keihan Katano Line "Kozu" walk 7 minutes
▼ You can use it as a station walk 7 minutes of good location ▼ 2 family house! (There is a kitchen on the first floor) ▼ south-facing balcony with a good per yang ▼ on the front road width is wide and 6.9m, There is a feeling of opening.
▼ is a good floor plan of storage are many usability. ▼ 5LDK + kitchen + parking
Features pickup
A quiet residential area / Or more before road 6m / Japanese-style room / Toilet 2 places / South balcony / The window in the bathroom / Three-story or more / City gas / Flat terrain / 2 family house
Price
15.8 million yen
Floor plan
5LDKK
Units sold
1 units
Land area
66.27 sq m (registration)
Building area
106.38 sq m (registration)
Driveway burden-road
Nothing, East 6.9m width
Completion date
October 1997
Address
Osaka Prefecture Katano Kozu 3
Traffic
Keihan Katano Line "Kozu" walk 7 minutes
Keihan Katano Line "Katano" walk 17 minutes
Keihan Katano Line "Murano" walk 17 minutes
Contact
(Ltd.) Nakatomi building contractors TEL: 0800-603-1649 [Toll free] mobile phone ・ Also available from PHS
Caller ID is not notified
Please contact the "saw SUUMO (Sumo)"
If it does not lead, If the real estate company
Building coverage, floor area ratio
60% ・ 200%
Time residents
Consultation
Land of the right form
Ownership
Structure and method of construction
Wooden three-story
Use district
One middle and high
Overview and notices
Facilities: Public Water Supply, This sewage, City gas, Parking: car space
Company profile
<Mediation> governor of Osaka (6) No. 033657 (Ltd.) Nakatomi builders Yubinbango575-0063 Osaka shijonawate Seiryu 18-11


Local appearance photo
Local appearance photo

Local appearance photo
Local appearance photo

Local photos, including front road
Local photos, including front road

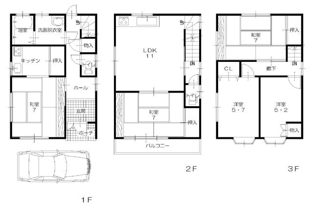
Floor plan

Floor plan. 15.8 million yen, 5LDKK, Land area 66.27 sq m , Building area 106.38 sq m
15.8 million yen, 5LDKK, Land area 66.27 sq m , Building area 106.38 sq m

Drug store

Drug store. Until drugstores Red Cliff Katano shop 975m
Until drugstores Red Cliff Katano shop 975m

Primary school

Primary school. 454m to Katano Tatsugun Tsu Elementary School
454m to Katano Tatsugun Tsu Elementary School

Kindergarten ・ Nursery

kindergarten ・ Nursery. Katano 759m to nursery school
Katano 759m to nursery school

Government office

Government office. Katano 1341m to city hall
Katano 1341m to city hall



Location