|
|
Osaka Prefecture Katano
大阪府交野市
|
|
JR katamachi line "Tsuda" walk 16 minutes
JR片町線「津田」歩16分
|
|
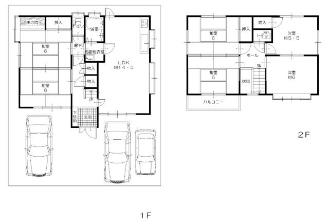
▼ 6LDK + parking 3 units can be (ordinary car two + one light car) ▼ all-electric housing ▼ southwest ▼ land about 36 square meters ▼ 2013 September renovation completed
▼6LDK+駐車3台可能(普通車2台+軽自動車1台)▼オール電化住宅▼南西向き▼土地約36坪▼H25年9月リフォーム済
|
|
▼ frontage is widely, There is a vaulted ceiling, It is very bright house. ▼ 1 floor ・ There are two ground floor toilet. ▼ spacious good floor plan easy to use. ▼ southwest-facing balcony <2013 September reform contents> ・ IH stove had made ・ Vanity had made ・ Tatami mat replacement ・ Cross Insect ・ With bathroom Thermo faucet had made ・ Toilet bowl had made with the second floor toilet tank
▼間口が広く、吹抜けがあり、とても明るいお家です。▼1階・2階トイレあり。▼ゆったりとした使い勝手の良い間取り。▼南西向きバルコニー<H25年9月リフォーム内容>・IHコンロ新調 ・洗面化粧台新調 ・畳表替え ・クロス張替え・浴室サーモ付水栓新調 ・2階トイレタンク付便器新調
|
Features pickup 特徴ピックアップ | | Parking three or more possible / Interior renovation / System kitchen / Yang per good / A quiet residential area / Japanese-style room / Washbasin with shower / Wide balcony / Toilet 2 places / 2-story / Warm water washing toilet seat / The window in the bathroom / IH cooking heater / Southwestward / Dish washing dryer / All-electric / Flat terrain 駐車3台以上可 /内装リフォーム /システムキッチン /陽当り良好 /閑静な住宅地 /和室 /シャワー付洗面台 /ワイドバルコニー /トイレ2ヶ所 /2階建 /温水洗浄便座 /浴室に窓 /IHクッキングヒーター /南西向き /食器洗乾燥機 /オール電化 /平坦地 |
Price 価格 | | 22,900,000 yen 2290万円 |
Floor plan 間取り | | 6LDK 6LDK |
Units sold 販売戸数 | | 1 units 1戸 |
Land area 土地面積 | | 120 sq m (registration) 120m2(登記) |
Building area 建物面積 | | 106.27 sq m 106.27m2 |
Driveway burden-road 私道負担・道路 | | Nothing, Southwest 4.8m width 無、南西4.8m幅 |
Completion date 完成時期(築年月) | | May 1988 1988年5月 |
Address 住所 | | Osaka Prefecture Katano Kuraji 5 大阪府交野市倉治5 |
Traffic 交通 | | JR katamachi line "Tsuda" walk 16 minutes Keihan Katano Line "Katano" bus 7 minutes Nishikura OsamuAyumi 4 minutes JR katamachi line "Tsuda" bus 6 minutes Nishikura OsamuAyumi 4 minutes JR片町線「津田」歩16分 京阪交野線「交野市」バス7分西倉治歩4分 JR片町線「津田」バス6分西倉治歩4分
|
Contact お問い合せ先 | | (Ltd.) Nakatomi building contractors TEL: 0800-603-1649 [Toll free] mobile phone ・ Also available from PHS Caller ID is not notified Please contact the "saw SUUMO (Sumo)" If it does not lead, If the real estate company (株)中富工務店TEL:0800-603-1649【通話料無料】携帯電話・PHSからもご利用いただけます 発信者番号は通知されません 「SUUMO(スーモ)を見た」と問い合わせください つながらない方、不動産会社の方は
|
Building coverage, floor area ratio 建ぺい率・容積率 | | 60% ・ 200% 60%・200% |
Time residents 入居時期 | | Consultation 相談 |
Land of the right form 土地の権利形態 | | Ownership 所有権 |
Structure and method of construction 構造・工法 | | Wooden 2-story 木造2階建 |
Renovation リフォーム | | 2013 September interior renovation completed (kitchen ・ bathroom ・ toilet ・ wall) 2013年9月内装リフォーム済(キッチン・浴室・トイレ・壁) |
Use district 用途地域 | | Two mid-high 2種中高 |
Overview and notices その他概要・特記事項 | | Facilities: Public Water Supply, Individual septic tank, Parking: car space 設備:公営水道、個別浄化槽、駐車場:カースペース |
Company profile 会社概要 | | <Mediation> governor of Osaka (6) No. 033657 (Ltd.) Nakatomi builders Yubinbango575-0063 Osaka shijonawate Seiryu 18-11 <仲介>大阪府知事(6)第033657号(株)中富工務店〒575-0063 大阪府四條畷市清瀧18-11 |