2007January
35 million yen, 2LDK, 72.87 sq m
Used Homes » Kansai » Osaka prefecture » Katano
 
| | Osaka Prefecture Katano 大阪府交野市 |
| Keihan Katano Line "My City" walk 9 minutes 京阪交野線「私市」歩9分 |
Price 価格 | | 35 million yen 3500万円 | Floor plan 間取り | | 2LDK 2LDK | Units sold 販売戸数 | | 1 units 1戸 | Land area 土地面積 | | 251.36 sq m (registration) 251.36m2(登記) | Building area 建物面積 | | 72.87 sq m (registration) 72.87m2(登記) | Driveway burden-road 私道負担・道路 | | Nothing, North 5.5m width (contact the road width 3.9m) 無、北5.5m幅(接道幅3.9m) | Completion date 完成時期(築年月) | | January 2007 2007年1月 | Address 住所 | | Osaka Prefecture Katano Kisaichi 6 大阪府交野市私市6 | Traffic 交通 | | Keihan Katano Line "My City" walk 9 minutes 京阪交野線「私市」歩9分
| Person in charge 担当者より | | Rep Hosomi Tetsuya 担当者細見 哲也 | Contact お問い合せ先 | | Sumitomo Real Estate Sales Co., Ltd. Hirakata business center TEL: 072-844-5321 Please inquire as "saw SUUMO (Sumo)" 住友不動産販売(株)枚方営業センターTEL:072-844-5321「SUUMO(スーモ)を見た」と問い合わせください | Building coverage, floor area ratio 建ぺい率・容積率 | | 60% ・ 200% 60%・200% | Time residents 入居時期 | | Consultation 相談 | Land of the right form 土地の権利形態 | | Ownership 所有権 | Structure and method of construction 構造・工法 | | Wooden 1 story 木造1階建 | Use district 用途地域 | | One middle and high 1種中高 | Other limitations その他制限事項 | | / Terrain: flat /地勢:平坦 | Overview and notices その他概要・特記事項 | | Contact: Hosomi Tetsuya, Parking: car space 担当者:細見 哲也、駐車場:カースペース | Company profile 会社概要 | | <Mediation> Minister of Land, Infrastructure and Transport (11) No. 002077 (one company) Property distribution management Association (Corporation) metropolitan area real estate Fair Trade Council member Sumitomo Real Estate Sales Co., Ltd. Hirakata business center Yubinbango573-1191 Hirakata, Osaka Shinmachi 1-9-11 Nippon Life Hirakata station building first floor <仲介>国土交通大臣(11)第002077号(一社)不動産流通経営協会会員 (公社)首都圏不動産公正取引協議会加盟住友不動産販売(株)枚方営業センター〒573-1191 大阪府枚方市新町1-9-11 日本生命枚方市駅前ビル1階 |
Local appearance photo現地外観写真  Taking a building from the southwest side
建物を南西側から撮影
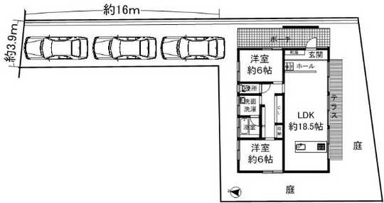
 Floor plan
間取り図
Location
|