Used Homes » Kansai » Osaka prefecture » Kishiwada


Osaka Prefecture Kishiwada
JR Hanwa Line "kumeta" 10 minutes Kanechika walk 4 minutes by bus
2012. renovated. How in the two-family house! ? ! Home garden you can enjoy!
Yes building separately. 125.85 sq m (1 floor 39.74 sq m Second floor 39.74 sq m 3 floor 46.37 sq m) parking three Allowed! (Two standard-sized car Light one) is a shutter garage!
Features pickup
Parking two Allowed / Immediate Available / Land 50 square meters or more / Interior renovation / System kitchen / Yang per good / Or more before road 6m / Japanese-style room / Shaping land / garden / Home garden / Washbasin with shower / Shutter - garage / 2-story / Warm water washing toilet seat / loft / The window in the bathroom / All room 6 tatami mats or more / Flat terrain
Price
24.5 million yen
Floor plan
4DK
Units sold
1 units
Land area
270.19 sq m (81.73 tsubo) (Registration)
Building area
122.84 sq m (37.15 tsubo) (Registration)
Driveway burden-road
Nothing, West 7.2m width (contact the road width 9m)
Completion date
March 1983
Address
Osaka Prefecture Kishiwada Yamadainaka cho
Traffic
JR Hanwa Line "kumeta" 10 minutes Kanechika walk 4 minutes by bus
Related links
[Related Sites of this company]
Contact
TEL: 0800-603-9094 [Toll free] mobile phone ・ Also available from PHS
Caller ID is not notified
Please contact the "saw SUUMO (Sumo)"
If it does not lead, If the real estate company
Building coverage, floor area ratio
60% ・ 200%
Time residents
Immediate available
Land of the right form
Ownership
Structure and method of construction
Steel 2-story
Renovation
August interior renovation completed (Kitchen 2012 ・ bathroom ・ toilet ・ wall)
Use district
Urbanization control area
Overview and notices
Facilities: Public Water Supply, This sewage, Centralized LPG, Building Permits reason: control area per building permit requirements, Parking: Garage
Company profile
<Mediation> governor of Osaka Prefecture (1) No. 056714 Star Real Estate Co., Ltd. Yubinbango594-0071 Osaka Izumi City, Fuchu-cho 1-5-12


Local appearance photo
Local appearance photo

Kitchen
Kitchen

Kitchen
Kitchen

Floor plan

Floor plan. 24.5 million yen, 4DK, Land area 270.19 sq m , Building area 122.84 sq m
24.5 million yen, 4DK, Land area 270.19 sq m , Building area 122.84 sq m

Local appearance photo

Local appearance photo. Separate building appearance
Separate building appearance

Living

Living. Separate building living
Separate building living

Bathroom
Bathroom

Kitchen

Kitchen. Separate building kitchen
Separate building kitchen

Non-living room
Non-living room

Wash basin, toilet
Wash basin, toilet

Parking lot

Parking lot. Separate building garage
Separate building garage

Other

Other. attic
attic

Floor plan

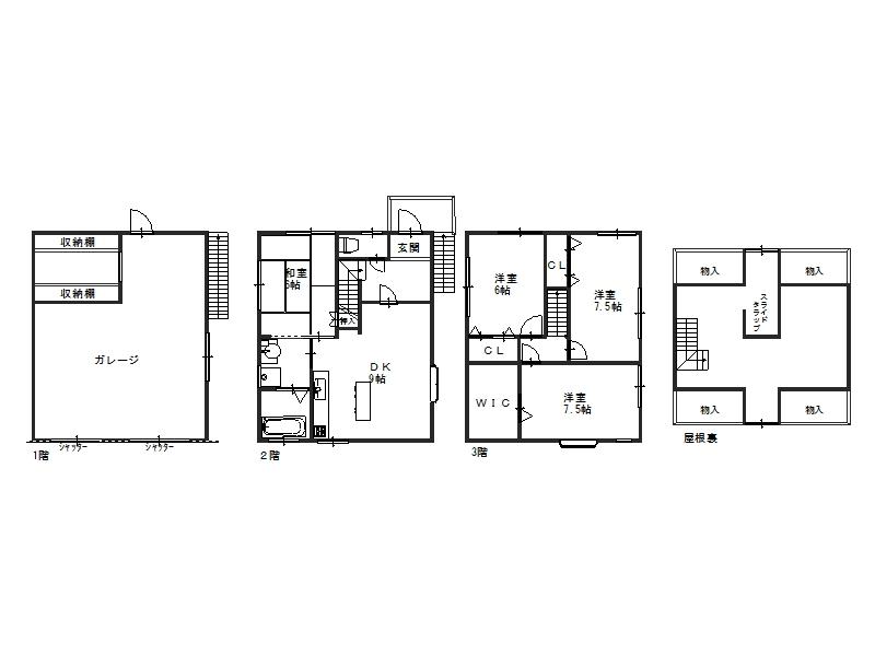
Floor plan. 24.5 million yen, 4DK, Land area 270.19 sq m , Building area 122.84 sq m separate building floor plan
24.5 million yen, 4DK, Land area 270.19 sq m , Building area 122.84 sq m separate building floor plan

Non-living room
Non-living room

Non-living room
Non-living room

Non-living room
Non-living room

Non-living room
Non-living room

Non-living room
Non-living room

Non-living room
Non-living room



Location