1973August
26.5 million yen, 5LDK, 109.82 sq m
Used Homes » Kansai » Osaka prefecture » Moriguchi

| | Osaka Moriguchi 大阪府守口市 |
| Keihan "Owada" walk 20 minutes 京阪本線「大和田」歩20分 |
| ■ Ideal for two-family house ■ Parking Santai Allowed ■ Recommended property in the northwest of the corner lot ■二世帯住宅に最適■駐車場三台可■北西の角地でお薦めの物件 |
Features pickup 特徴ピックアップ | | 2-story 2階建 | Price 価格 | | 26.5 million yen 2650万円 | Floor plan 間取り | | 5LDK 5LDK | Units sold 販売戸数 | | 1 units 1戸 | Land area 土地面積 | | 187.29 sq m 187.29m2 | Building area 建物面積 | | 109.82 sq m 109.82m2 | Driveway burden-road 私道負担・道路 | | Nothing, West 6m width, North 4m width 無、西6m幅、北4m幅 | Completion date 完成時期(築年月) | | August 1973 1973年8月 | Address 住所 | | Osaka Moriguchi Okubo-cho 5 大阪府守口市大久保町5 | Traffic 交通 | | Keihan "Owada" walk 20 minutes 京阪本線「大和田」歩20分
| Related links 関連リンク | | [Related Sites of this company] 【この会社の関連サイト】 | Contact お問い合せ先 | | TEL: 06-6901-1456 Please contact as "saw SUUMO (Sumo)" TEL:06-6901-1456「SUUMO(スーモ)を見た」と問い合わせください | Building coverage, floor area ratio 建ぺい率・容積率 | | 60% ・ 200% 60%・200% | Time residents 入居時期 | | Consultation 相談 | Land of the right form 土地の権利形態 | | Ownership 所有権 | Structure and method of construction 構造・工法 | | Wooden 2-story 木造2階建 | Use district 用途地域 | | One middle and high 1種中高 | Company profile 会社概要 | | <Mediation> governor of Osaka (2) the first 050,609 No. Tama Estate Co., Ltd., Koei builders Yubinbango570-0012 Osaka Moriguchi Okubo-cho, 3-1-1 <仲介>大阪府知事(2)第050609号タマエステート(株)弘栄工務店〒570-0012 大阪府守口市大久保町3-1-1 |
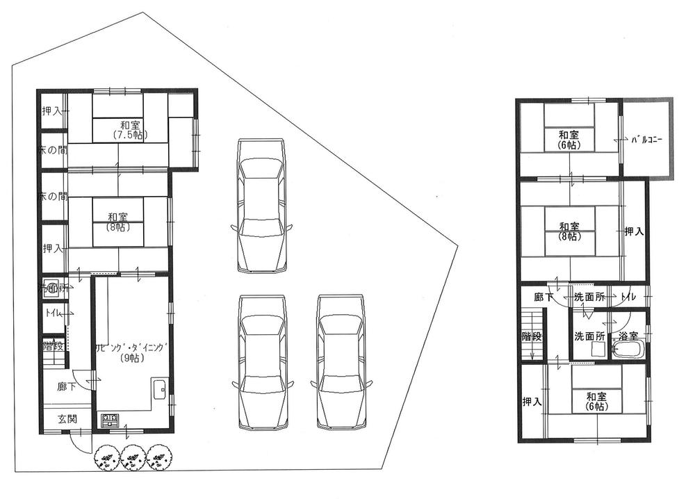
Floor plan間取り図  26.5 million yen, 5LDK, Land area 187.29 sq m , Building area 109.82 sq m floor plan
2650万円、5LDK、土地面積187.29m2、建物面積109.82m2 間取り図
Location
|