2001May
18 million yen, 4LDK, 102.06 sq m
Used Homes » Kansai » Osaka prefecture » Moriguchi
 
| | Osaka Moriguchi 大阪府守口市 |
| Keihan "Owada" walk 13 minutes 京阪本線「大和田」歩13分 |
| With garage, Within a 10-minute walk from the train station, Land 20 square meters or more 車庫付き、駅から徒歩10分以内、土地20坪以上 |
| Please feel free to visit. お気軽にご覧下さい。 |
Features pickup 特徴ピックアップ | | System kitchen / Flat to the station / A quiet residential area / Japanese-style room / Toilet 2 places / The window in the bathroom / Walk-in closet / All room 6 tatami mats or more / Three-story or more システムキッチン /駅まで平坦 /閑静な住宅地 /和室 /トイレ2ヶ所 /浴室に窓 /ウォークインクロゼット /全居室6畳以上 /3階建以上 | Price 価格 | | 18 million yen 1800万円 | Floor plan 間取り | | 4LDK 4LDK | Units sold 販売戸数 | | 1 units 1戸 | Land area 土地面積 | | 73.75 sq m (registration) 73.75m2(登記) | Building area 建物面積 | | 102.06 sq m (registration) 102.06m2(登記) | Driveway burden-road 私道負担・道路 | | Nothing 無 | Completion date 完成時期(築年月) | | May 2001 2001年5月 | Address 住所 | | Osaka Moriguchi Fujita-cho 4 大阪府守口市藤田町4 | Traffic 交通 | | Keihan "Owada" walk 13 minutes Keihan "Kayashima" walk 16 minutes Keihan "Furukawa Bridge" walk 23 minutes 京阪本線「大和田」歩13分 京阪本線「萱島」歩16分 京阪本線「古川橋」歩23分
| Related links 関連リンク | | [Related Sites of this company] 【この会社の関連サイト】 | Person in charge 担当者より | | Standing in the 20's the customer's point of view: the person in charge Hayato Shinohara age, Who will be caring allowed to support in your eyes than! 担当者篠原勇人年齢:20代お客様の立場に立ち、誰よりもお客様目線で親身にサポートさせていただきます! | Contact お問い合せ先 | | TEL: 0800-603-3495 [Toll free] mobile phone ・ Also available from PHS Caller ID is not notified Please contact the "saw SUUMO (Sumo)" If it does not lead, If the real estate company TEL:0800-603-3495【通話料無料】携帯電話・PHSからもご利用いただけます 発信者番号は通知されません 「SUUMO(スーモ)を見た」と問い合わせください つながらない方、不動産会社の方は
| Time residents 入居時期 | | Consultation 相談 | Land of the right form 土地の権利形態 | | Ownership 所有権 | Structure and method of construction 構造・工法 | | Slate roofing three-story スレート葺き3階建 | Overview and notices その他概要・特記事項 | | Contact: Hayato Shinohara, Parking: car space 担当者:篠原勇人、駐車場:カースペース | Company profile 会社概要 | | <Marketing alliance (agency)> Minister of Land, Infrastructure and Transport (1) No. 008115 (Ltd.) House communications Joto business center Yubinbango536-0004 Osaka Joto-ku Imafukunishi 3-2-2 president Joto 105 <販売提携(代理)>国土交通大臣(1)第008115号(株)ハウスコミュニケーション城東営業センター〒536-0004 大阪府大阪市城東区今福西3-2-2 プレジデント城東105 |
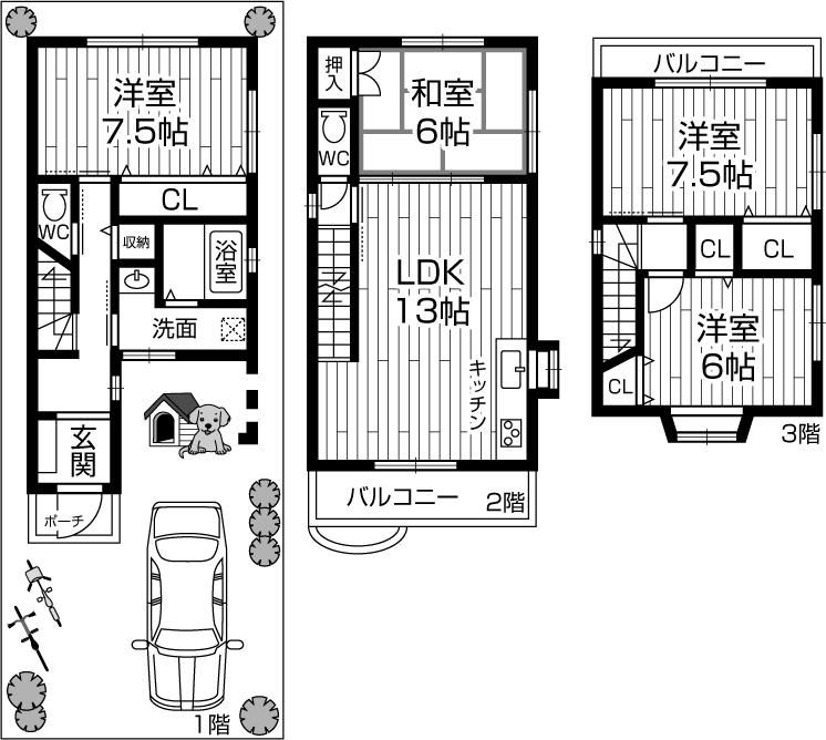
Floor plan間取り図  18 million yen, 4LDK, Land area 73.75 sq m , It is a building area of 102.06 sq m livable floor plan.
1800万円、4LDK、土地面積73.75m2、建物面積102.06m2 住み良い間取りです。
Local photos, including front road前面道路含む現地写真  Local shooting
現地撮影
Otherその他  Drag Segami
ドラッグセガミ
 Seven-Eleven
セブンイレブン
Location
|