2004April
75 million yen, 7LDK, 189.37 sq m
Used Homes » Kansai » Osaka prefecture » Abeno Ward
 
| | Osaka Abeno-ku, Osaka 大阪府大阪市阿倍野区 |
| Subway Tanimachi Line "Abeno" walk 3 minutes 地下鉄谷町線「阿倍野」歩3分 |
Features pickup 特徴ピックアップ | | Parking three or more possible / Facing south / roof balcony 駐車3台以上可 /南向き /ルーフバルコニー | Price 価格 | | 75 million yen 7500万円 | Floor plan 間取り | | 7LDK 7LDK | Units sold 販売戸数 | | 1 units 1戸 | Land area 土地面積 | | 118.93 sq m 118.93m2 | Building area 建物面積 | | 189.37 sq m 189.37m2 | Driveway burden-road 私道負担・道路 | | Nothing, South 4m width 無、南4m幅 | Completion date 完成時期(築年月) | | April 2004 2004年4月 | Address 住所 | | Osaka Abeno-ku, Osaka Abenosuji 3 大阪府大阪市阿倍野区阿倍野筋3 | Traffic 交通 | | Subway Tanimachi Line "Abeno" walk 3 minutes 地下鉄谷町線「阿倍野」歩3分
| Related links 関連リンク | | [Related Sites of this company] 【この会社の関連サイト】 | Contact お問い合せ先 | | TEL: 0120-666570 [Toll free] Please contact the "saw SUUMO (Sumo)" TEL:0120-666570【通話料無料】「SUUMO(スーモ)を見た」と問い合わせください | Building coverage, floor area ratio 建ぺい率・容積率 | | 80% ・ 240 percent 80%・240% | Time residents 入居時期 | | Consultation 相談 | Land of the right form 土地の権利形態 | | Ownership 所有権 | Structure and method of construction 構造・工法 | | Steel frame three-story 鉄骨3階建 | Use district 用途地域 | | Two mid-high 2種中高 | Overview and notices その他概要・特記事項 | | Parking: car space 駐車場:カースペース | Company profile 会社概要 | | <Mediation> governor of Osaka Prefecture (1) the first 056,131 No. Art Home Ltd. Yubinbango543-0043 Osaka Tennoji-ku, Katsuyama 1-9-16 <仲介>大阪府知事(1)第056131号アートホーム(株)〒543-0043 大阪府大阪市天王寺区勝山1-9-16 |
Local appearance photo現地外観写真  Local front photo
現地正面写真
 Local (August 2013) Shooting
現地(2013年8月)撮影
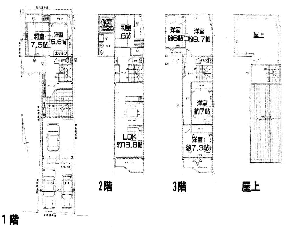
Floor plan間取り図  75 million yen, 7LDK, Land area 118.93 sq m , Building area 189.37 sq m
7500万円、7LDK、土地面積118.93m2、建物面積189.37m2
Local photos, including front road前面道路含む現地写真  Local (August 2013) Shooting
現地(2013年8月)撮影
 Local appearance photo
現地外観写真
 Local appearance photo
現地外観写真
 Local appearance photo
現地外観写真
Location
|