Used Homes » Kansai » Osaka prefecture » Asahi-ku
 
| | Osaka-shi, Osaka Asahi-ku, 大阪府大阪市旭区 |
| Keihan "Sembayashi" walk 3 minutes 京阪本線「千林」歩3分 |
| ◆ Heisei built shallow properties of 22 years building! ! ◆ Keihan "Sembayashi" a 3-minute walk from the station! ! ◆ Double-sided balcony ◆ There housed in the whole room! ! ◆ It is spacious 4LDK of quires LDK18! ◆平成22年建築の築浅物件!! ◆京阪「千林」駅より徒歩3分!!◆両面バルコニー ◆全居室に収納有り!!◆LDK18帖のゆったりとした4LDKです! |
Features pickup 特徴ピックアップ | | Immediate Available / LDK18 tatami mats or more / Facing south / All room storage / South balcony / Three-story or more / City gas 即入居可 /LDK18畳以上 /南向き /全居室収納 /南面バルコニー /3階建以上 /都市ガス | Price 価格 | | 29,800,000 yen 2980万円 | Floor plan 間取り | | 4LDK 4LDK | Units sold 販売戸数 | | 1 units 1戸 | Land area 土地面積 | | 67.56 sq m 67.56m2 | Building area 建物面積 | | 95.09 sq m 95.09m2 | Driveway burden-road 私道負担・道路 | | Nothing, North 4m width (contact the road width 4.8m) 無、北4m幅(接道幅4.8m) | Completion date 完成時期(築年月) | | January 2010 2010年1月 | Address 住所 | | Osaka-shi, Osaka Asahi-ku Shimizu 3 大阪府大阪市旭区清水3 | Traffic 交通 | | Keihan "Sembayashi" walk 3 minutes 京阪本線「千林」歩3分
| Related links 関連リンク | | [Related Sites of this company] 【この会社の関連サイト】 | Contact お問い合せ先 | | TEL: 0120464-700 [Toll free] Please contact the "saw SUUMO (Sumo)" TEL:0120464-700【通話料無料】「SUUMO(スーモ)を見た」と問い合わせください | Building coverage, floor area ratio 建ぺい率・容積率 | | 60% ・ 200% 60%・200% | Time residents 入居時期 | | Immediate available 即入居可 | Land of the right form 土地の権利形態 | | Ownership 所有権 | Structure and method of construction 構造・工法 | | Wooden three-story 木造3階建 | Use district 用途地域 | | Two mid-high 2種中高 | Overview and notices その他概要・特記事項 | | Facilities: Public Water Supply, This sewage, City gas, Parking: car space 設備:公営水道、本下水、都市ガス、駐車場:カースペース | Company profile 会社概要 | | <Mediation> governor of Osaka Prefecture (1) No. 056303 (Ltd.) Yuki realistic Estate Yubinbango577-0056 Osaka Higashi Chodo 1-23-3 <仲介>大阪府知事(1)第056303号(株)ユウキリアルエステート〒577-0056 大阪府東大阪市長堂1-23-3 |
Local appearance photo現地外観写真  In a variety of ideas to suit each lifestyle, Storage well of the house that was realized the dream of living.
それぞれのライフスタイルに合った様々な工夫で、暮らしの夢を実現した収納上手の家。
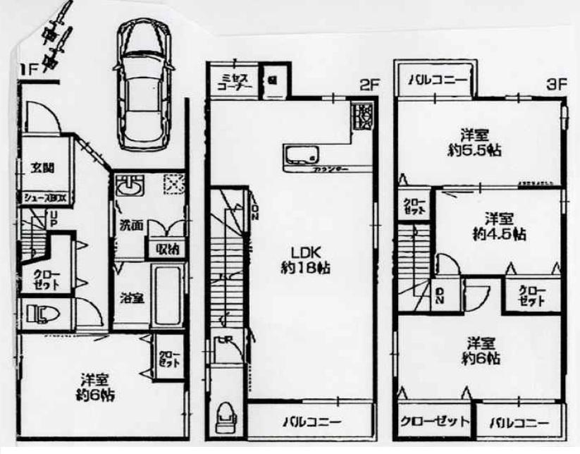
Floor plan間取り図  29,800,000 yen, 4LDK, Land area 67.56 sq m , Building area 95.09 sq m
2980万円、4LDK、土地面積67.56m2、建物面積95.09m2
Local appearance photo現地外観写真  It was well adopted the clean feeling of "white" in appearance and interior, Simple but also, Full of functional beauty "only one of the house in the world"
外観やインテリアに清潔感ある“白”を上手に採り入れた、シンプルでありながらも、機能美にあふれた“世界でたった一つの住まい”
Kitchenキッチン  It has the advantage of cooking while conversation with everyone in the family can be, It is rapidly gaining popularity.
料理をしながら家族のみんなで会話が出来るというメリットがあり、人気急上昇中です。
Livingリビング  Insert the light and wind, It is a comfortable space that will want to stay much full of sense of openness.
光と風が差し込み、開放感溢れるずっと居たくなる快適空間です。
Kitchenキッチン  Three-necked stove good command of well cooking efficiency is also attractive!
料理が効率よくこなせる三口コンロも魅力です!
Bathroom浴室  "Spacious want to spend the bus time." "I want to refresh heal the fatigue of the day", etc., The whole family of the healing space!
「ゆったりとしたバスタイムを過ごしたい」「一日の疲れを癒しリフレッシュしたい」など、家族みんなの癒し空間!
Non-living roomリビング以外の居室  Size is, Of course, storage capacity is also attractive!
広さは、もちろん収納力も魅力です!
Wash basin, toilet洗面台・洗面所  Storage is there plenty of vanity functionality preeminent!
収納がたっぷりあって機能性バツグンの洗面化粧台!
Toiletトイレ  Full of cleanliness is a healing space!
清潔感あふれる癒しの空間です!
Other introspectionその他内観  Even while having luggage, Gentle gradient that can be happy to "rise and fall"!
荷物を持ちながらでも、ラクラク「上がり下がり」できるゆるやかな勾配!
Otherその他  Long rain, such as a sudden rain and rainy season ・ Adhesion of pollen ・ Privacy, etc., The reason is the variety, We have a "room dry" in almost all of your home throughout the year.
突然の雨や梅雨などの長雨・花粉の付着・プライバシーなど、理由はさまざまですが、一年を通してほぼすべてのご家庭で「部屋干し」をしております。
 Also firmly you can check visitor's, Video recording ・ Rest assured that can be confirmed by also monitor screen playback!
来客者もしっかり確認でき、録画・再生もモニター画面で確認できるので安心です!
 Also reheating function!
追い炊き機能も!
Location
|