Used Homes » Kansai » Osaka prefecture » Asahi-ku


Osaka-shi, Osaka Asahi-ku,
Subway Tanimachi Line "Senbayashiomiya" walk 8 minutes
◇ Asahi-ku Omiya Is a store with a residence ◇ super close to ・ Yes, such as shopping street, Life convenient ◇ is a quiet residential area
◇ 1 floor is the original light work stations. Store, It is perfect for the office You can also change to a Western-style room and living room in the renovated ◇ Super, Shopping district is close to life is convenient situated ◇ southwest corner lot is per yang ・ Ventilation good ◆ We will immediately guide you to correspond per vacant house! ! Contact us feel free to ☆ → 0800-808-7253
Features pickup
A quiet residential area / The window in the bathroom / Three-story or more
Price
11.8 million yen
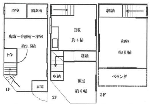
Floor plan
2DK
Units sold
1 units
Land area
35.71 sq m (10.80 tsubo) (Registration)
Building area
87.07 sq m (26.33 tsubo) (Registration)
Driveway burden-road
Nothing
Completion date
March 1989
Address
Osaka-shi, Osaka Asahi-ku Omiya 2
Traffic
Subway Tanimachi Line "Senbayashiomiya" walk 8 minutes
Keihan "Morishoji" walk 14 minutes
Subway Tanimachi Line "Sekime Takadono" walk 17 minutes
Person in charge
Person in charge of black Hama 侑弘 Age: 20 Daigyokai experience: Please let me help you !! happy life that was married in November of the year this year ☆
Contact
TEL: 0800-808-7253 [Toll free] mobile phone ・ Also available from PHS
Caller ID is not notified
Please contact the "saw SUUMO (Sumo)"
If it does not lead, If the real estate company
Building coverage, floor area ratio
60% ・ 200%
Time residents
Immediate available
Land of the right form
Ownership
Structure and method of construction
Wooden three-story
Use district
Two mid-high
Overview and notices
Contact: black Hama 侑弘, Parking: No
Company profile
<Mediation> governor of Osaka Prefecture (1) No. 056319 (Ltd.) rack housing Yubinbango574-0033 Osaka Prefecture Daito Ogimachi 6-17


Local appearance photo

Local appearance photo. It is a store with housing
It is a store with housing

Floor plan

Floor plan. 11.8 million yen, 2DK, Land area 35.71 sq m , Building area 87.07 sq m 2DK + store ・ Can you use it as a floor plan of the office Western-style
11.8 million yen, 2DK, Land area 35.71 sq m , Building area 87.07 sq m 2DK + store ・ Can you use it as a floor plan of the office Western-style

Local appearance photo

Local appearance photo. It is a three-story of the southwest corner lot
It is a three-story of the southwest corner lot

Bathroom

Bathroom. Bathroom is
Bathroom is

Kitchen

Kitchen. Kitchen with a window
Kitchen with a window

Non-living room

Non-living room. Bright Japanese-style room
Bright Japanese-style room

Entrance

Entrance. It is a quiet residential area
It is a quiet residential area

Receipt

Receipt. Is a Japanese-style room of storage
Is a Japanese-style room of storage

Local photos, including front road

Local photos, including front road. There are park near
There are park near

Other
Other

Non-living room

Non-living room. There is storage space
There is storage space

Receipt

Receipt. It is nearby shopping facilities convenient
It is nearby shopping facilities convenient

Other

Other. Balconies
Balconies



Location