|
|
Osaka-shi, Osaka Asahi-ku,
大阪府大阪市旭区
|
|
Subway Tanimachi Line "Senbayashiomiya" walk 19 minutes
地下鉄谷町線「千林大宮」歩19分
|
|
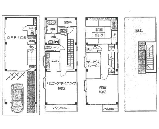
◇ is detached with office ◇ is on the south-facing sunny ◇ is a quiet residential area
◇事務所付戸建です◇南向きで日当たり良好です◇閑静な住宅街です
|
|
◇ is firm with housing ◇ is a sunny south-facing balcony ◇ There service rooms are also ◇ There are also 8 pledge calm Japanese-style ◇ will be saved in the storage space abundant clean up contact us feel free to ☆ → 0120-347-789
◇事務所付き住宅です◇南向きバルコニーで日当たり良好です◇サービスルームもあります◇8帖の落ち着いた和室もあります◇収納スペース豊富片付けに助かりますお問い合わせはお気軽に☆→0120-347-789
|
Features pickup 特徴ピックアップ | | Facing south / Yang per good / A quiet residential area / Bathroom 1 tsubo or more / South balcony / The window in the bathroom / Three-story or more / Storeroom 南向き /陽当り良好 /閑静な住宅地 /浴室1坪以上 /南面バルコニー /浴室に窓 /3階建以上 /納戸 |
Price 価格 | | 36,600,000 yen 3660万円 |
Floor plan 間取り | | 3LDK 3LDK |
Units sold 販売戸数 | | 1 units 1戸 |
Land area 土地面積 | | 80.46 sq m (24.33 tsubo) (Registration) 80.46m2(24.33坪)(登記) |
Building area 建物面積 | | 193.26 sq m (58.46 tsubo) (Registration) 193.26m2(58.46坪)(登記) |
Driveway burden-road 私道負担・道路 | | Nothing 無 |
Completion date 完成時期(築年月) | | October 2001 2001年10月 |
Address 住所 | | Osaka-shi, Osaka Asahi-ku, Akagawa 4 大阪府大阪市旭区赤川4 |
Traffic 交通 | | Subway Tanimachi Line "Senbayashiomiya" walk 19 minutes Subway Tanimachi Line "Sekime Takadono" walk 29 minutes Keihan "Morishoji" walk 27 minutes 地下鉄谷町線「千林大宮」歩19分 地下鉄谷町線「関目高殿」歩29分 京阪本線「森小路」歩27分
|
Person in charge 担当者より | | Person in charge of black Hama 侑弘 Age: 20 Daigyokai experience: Please let me help you !! happy life that was married in November of the year this year ☆ 担当者黒濱 侑弘年齢:20代業界経験:1年今年の11月に入籍しました!!幸せな暮らしのお手伝いを僕にさせてください☆ |
Contact お問い合せ先 | | TEL: 0800-808-7253 [Toll free] mobile phone ・ Also available from PHS Caller ID is not notified Please contact the "saw SUUMO (Sumo)" If it does not lead, If the real estate company TEL:0800-808-7253【通話料無料】携帯電話・PHSからもご利用いただけます 発信者番号は通知されません 「SUUMO(スーモ)を見た」と問い合わせください つながらない方、不動産会社の方は
|
Building coverage, floor area ratio 建ぺい率・容積率 | | 80% ・ 300% 80%・300% |
Time residents 入居時期 | | Consultation 相談 |
Land of the right form 土地の権利形態 | | Ownership 所有権 |
Structure and method of construction 構造・工法 | | Steel 4-story 鉄骨4階建 |
Use district 用途地域 | | Residential 近隣商業 |
Overview and notices その他概要・特記事項 | | Contact: black Hama 侑弘, Parking: No 担当者:黒濱 侑弘、駐車場:無 |
Company profile 会社概要 | | <Mediation> governor of Osaka Prefecture (1) No. 056319 (Ltd.) rack housing Yubinbango574-0033 Osaka Prefecture Daito Ogimachi 6-17 <仲介>大阪府知事(1)第056319号(株)ラックハウジング〒574-0033 大阪府大東市扇町6-17 |