1992May
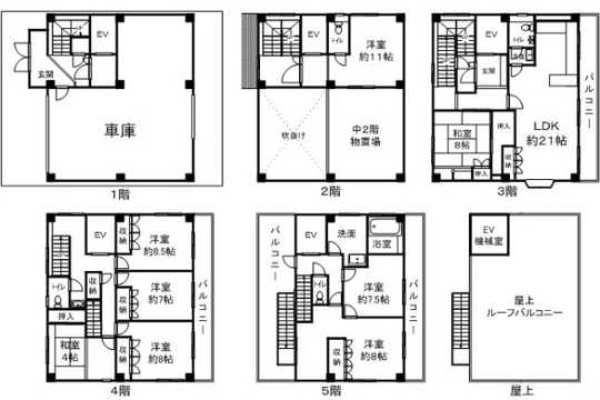
84,800,000 yen, 8LDK, 387.3 sq m
Used Homes » Kansai » Osaka prefecture » Fukushima-ku
 
| | Osaka-shi, Osaka, Fukushima-ku, 大阪府大阪市福島区 |
| Subway Sennichimae Line "Nodahanshin" walk 9 minutes 地下鉄千日前線「野田阪神」歩9分 |
Price 価格 | | 84,800,000 yen 8480万円 | Floor plan 間取り | | 8LDK 8LDK | Units sold 販売戸数 | | 1 units 1戸 | Land area 土地面積 | | 151.65 sq m (registration) 151.65m2(登記) | Building area 建物面積 | | 387.3 sq m (registration) 387.3m2(登記) | Driveway burden-road 私道負担・道路 | | 1.74 sq m , Northwest 3.7m width (contact the road width 11.6m) 1.74m2、北西3.7m幅(接道幅11.6m) | Completion date 完成時期(築年月) | | May 1992 1992年5月 | Address 住所 | | Osaka-shi, Osaka, Fukushima-ku, Ebie 4 大阪府大阪市福島区海老江4 | Traffic 交通 | | Subway Sennichimae Line "Nodahanshin" walk 9 minutes Hanshin "Noda" walk 10 minutes 地下鉄千日前線「野田阪神」歩9分 阪神本線「野田」歩10分
| Person in charge 担当者より | | Rep Yokoyama Kazuki 担当者横山 和樹 | Contact お問い合せ先 | | Sumitomo Real Estate Sales Co., Ltd. Nodahanshin business center TEL: 06-6458-3700 Please contact as "saw SUUMO (Sumo)" 住友不動産販売(株)野田阪神営業センターTEL:06-6458-3700「SUUMO(スーモ)を見た」と問い合わせください | Building coverage, floor area ratio 建ぺい率・容積率 | | 80% ・ 300% 80%・300% | Time residents 入居時期 | | Consultation 相談 | Land of the right form 土地の権利形態 | | Ownership 所有権 | Structure and method of construction 構造・工法 | | Steel 5-story 鉄骨5階建 | Use district 用途地域 | | Two dwellings 2種住居 | Other limitations その他制限事項 | | / Terrain: flat /地勢:平坦 | Overview and notices その他概要・特記事項 | | Contact: Yokoyama Kazuki, Parking: car space 担当者:横山 和樹、駐車場:カースペース | Company profile 会社概要 | | <Mediation> Minister of Land, Infrastructure and Transport (11) No. 002077 (one company) Property distribution management Association (Corporation) metropolitan area real estate Fair Trade Council member Sumitomo Real Estate Sales Co., Ltd. Nodahanshin business center Yubinbango553-0001 Osaka-shi, Osaka, Fukushima-ku, Ebie 5-1-1 Sakura Noda Building third floor 1F <仲介>国土交通大臣(11)第002077号(一社)不動産流通経営協会会員 (公社)首都圏不動産公正取引協議会加盟住友不動産販売(株)野田阪神営業センター〒553-0001 大阪府大阪市福島区海老江5-1-1 さくら野田ビルディング3階1F |
Local appearance photo現地外観写真  1992 May is built
平成4年5月築です
 Floor plan
間取り図
Location
|