Used Homes » Kansai » Osaka prefecture » Higashiyodogawa District
 
| | Osaka-shi, Osaka Higashiyodogawa Ward 大阪府大阪市東淀川区 |
| Hankyu Senri Line "Kunijima" walk 3 minutes 阪急千里線「柴島」歩3分 |
| Heisei 13 years building House is this price! ! Crime prevention surface is also safe with a double key and shutter. 平成13年建築の戸建てがこの価格!!二重の鍵とシャッター付きで防犯面も安心です。 |
Features pickup 特徴ピックアップ | | Immediate Available / Riverside / Bathroom Dryer / Yang per good / Flat to the station / A quiet residential area / Japanese-style room / Toilet 2 places / 2-story / South balcony / Urban neighborhood 即入居可 /リバーサイド /浴室乾燥機 /陽当り良好 /駅まで平坦 /閑静な住宅地 /和室 /トイレ2ヶ所 /2階建 /南面バルコニー /都市近郊 | Price 価格 | | 18,800,000 yen 1880万円 | Floor plan 間取り | | 2LDK 2LDK | Units sold 販売戸数 | | 1 units 1戸 | Land area 土地面積 | | 54.02 sq m 54.02m2 | Building area 建物面積 | | 74.39 sq m 74.39m2 | Completion date 完成時期(築年月) | | January 2001 2001年1月 | Address 住所 | | Osaka-shi, Osaka Higashiyodogawa Ward Kunijima 3 大阪府大阪市東淀川区柴島3 | Traffic 交通 | | Hankyu Senri Line "Kunijima" walk 3 minutes Hankyu Kyoto Line "Awaji" walk 10 minutes 阪急千里線「柴島」歩3分 阪急京都線「淡路」歩10分
| Related links 関連リンク | | [Related Sites of this company] 【この会社の関連サイト】 | Person in charge 担当者より | | [Regarding this property.] The nearby sports park, It is a very quiet residential area. South-facing road for the previous eye has spread greatly, Parking is also easy to park in the poor people. Bathroom Dryer also heating, There is also a ventilation, I think that a very nice detached. 【この物件について】近くにはスポーツ公園があり、とても閑静な住宅街です。南向きの道路は目の前が大きく広がっている為、駐車が苦手な人にも停めやすいです。浴室乾燥も暖房、換気もあり、とても素敵な戸建てと思います。 | Contact お問い合せ先 | | TEL: 0800-603-3497 [Toll free] mobile phone ・ Also available from PHS Caller ID is not notified Please contact the "saw SUUMO (Sumo)" If it does not lead, If the real estate company TEL:0800-603-3497【通話料無料】携帯電話・PHSからもご利用いただけます 発信者番号は通知されません 「SUUMO(スーモ)を見た」と問い合わせください つながらない方、不動産会社の方は
| Time residents 入居時期 | | Immediate available 即入居可 | Land of the right form 土地の権利形態 | | Ownership 所有権 | Use district 用途地域 | | Commerce 商業 | Other limitations その他制限事項 | | Quasi-fire zones 準防火地域 | Company profile 会社概要 | | <Mediation> Minister of Land, Infrastructure and Transport (1) No. 008115 (Ltd.) House communications heaven six business center Yubinbango531-0064 Osaka-shi, Osaka, Kita-ku, Kokubunji 1-3-6 campus life Kokubunji <仲介>国土交通大臣(1)第008115号(株)ハウスコミュニケーション天六営業センター〒531-0064 大阪府大阪市北区国分寺1-3-6 キャンパスライフ国分寺 |
Local appearance photo現地外観写真  Day is good on the south-facing
南向きで日当たり良好です
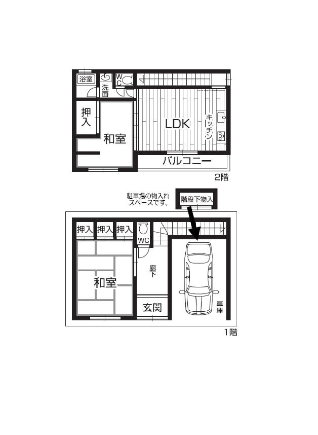
Otherその他  Floor plan
間取り図
Parking lot駐車場  There is a high roof can be a storage compartment
ハイルーフ可能で物入れがあります
Entrance玄関  This enhancement also shoebox
下駄箱も充実です
 Parking lot
駐車場
 Wash, bathroom
洗面、浴室
Other introspectionその他内観  Second floor Japanese-style room (it is bright on the south-facing)
二階和室(南向きで明るいです)
 First floor Japanese-style room (It is with a shutter)
1階和室(シャッター付です)
Livingリビング  The second floor living room is very bright.
二階リビングは非常に明るいです。
Toiletトイレ  Bathroom is equipment (It is also useful when the rain)
浴室設備です(雨のときも便利です)
Bathroom浴室  It is with the bath handrail.
手すり付きのお風呂です。
 Primary school
小学校
Station駅  The photograph is a "Kunijima" station. Within walking distance to the other, Hankyu "Awaji Station" Kyoto, Kitasenri, Umeda, It goes into a variety of line, etc. Tenjinbashisujirokuchome.
写真は「柴島」駅です。他に歩いて行ける、阪急「淡路駅」は京都、北千里、梅田、天神橋筋六丁目等色々な線に入ります。
Location
|