|
|
Osaka-shi, Osaka Joto-ku,
大阪府大阪市城東区
|
|
Keihan "Noe" walk 2 minutes
京阪本線「野江」歩2分
|
|
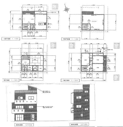
Station 2-minute walk! Built shallow Property! Land area more than 32 square meters! Roof balcony facilities Floor 5LDK! station, Bank, Super such as living facilities have been enhanced!
駅徒歩2分!築浅物件!土地面積32坪以上!間取り5LDKでルーフバルコニー設備!駅、銀行、スーパーなど生活施設が充実しています!
|
|
Year Available, 2 along the line more accessible, Yang per good, Flat to the stationese-style room, Toilet 2 places, Ventilation good, Three-story or more, roof balcony
年内入居可、2沿線以上利用可、陽当り良好、駅まで平坦、和室、トイレ2ヶ所、通風良好、3階建以上、ルーフバルコニー
|
Features pickup 特徴ピックアップ | | Year Available / 2 along the line more accessible / Yang per good / Flat to the station / Japanese-style room / Toilet 2 places / Ventilation good / Three-story or more / roof balcony 年内入居可 /2沿線以上利用可 /陽当り良好 /駅まで平坦 /和室 /トイレ2ヶ所 /通風良好 /3階建以上 /ルーフバルコニー |
Price 価格 | | 25,800,000 yen 2580万円 |
Floor plan 間取り | | 5LDK 5LDK |
Units sold 販売戸数 | | 1 units 1戸 |
Land area 土地面積 | | 107.72 sq m 107.72m2 |
Building area 建物面積 | | 117.81 sq m 117.81m2 |
Driveway burden-road 私道負担・道路 | | Nothing 無 |
Completion date 完成時期(築年月) | | April 2003 2003年4月 |
Address 住所 | | Osaka-shi, Osaka Joto-ku growth 3-17-11 大阪府大阪市城東区成育3-17-11 |
Traffic 交通 | | Keihan "Noe" walk 2 minutes Subway Tanimachi Line "Noe in the bill" walk 5 minutes Keihan "Sekime" walk 10 minutes 京阪本線「野江」歩2分 地下鉄谷町線「野江内代」歩5分 京阪本線「関目」歩10分
|
Related links 関連リンク | | [Related Sites of this company] 【この会社の関連サイト】 |
Person in charge 担当者より | | [Regarding this property.] Station 2-minute walk! Built shallow Property! Land area more than 32 square meters! 【この物件について】駅徒歩2分!築浅物件!土地面積32坪以上! |
Contact お問い合せ先 | | TEL: 0800-805-5823 [Toll free] mobile phone ・ Also available from PHS Caller ID is not notified Please contact the "saw SUUMO (Sumo)" If it does not lead, If the real estate company TEL:0800-805-5823【通話料無料】携帯電話・PHSからもご利用いただけます 発信者番号は通知されません 「SUUMO(スーモ)を見た」と問い合わせください つながらない方、不動産会社の方は
|
Building coverage, floor area ratio 建ぺい率・容積率 | | 60% ・ 200% 60%・200% |
Time residents 入居時期 | | 2 months after the contract 契約後2ヶ月 |
Land of the right form 土地の権利形態 | | Ownership 所有権 |
Structure and method of construction 構造・工法 | | Steel frame three-story 鉄骨3階建 |
Company profile 会社概要 | | <Mediation> governor of Osaka Prefecture (1) the first 054,416 No. House Grant Co. Yubinbango536-0004 Osaka Joto-ku Imafukunishi 2-13-8 <仲介>大阪府知事(1)第054416号ハウスグラント(株)〒536-0004 大阪府大阪市城東区今福西2-13-8 |