Used Homes » Kansai » Osaka prefecture » Joto-ku
 
| | Osaka-shi, Osaka Joto-ku, 大阪府大阪市城東区 |
| Subway Nagahori Tsurumi-ryokuchi Line "Imafuku Tsurumi" walk 14 minutes 地下鉄長堀鶴見緑地線「今福鶴見」歩14分 |
| ◇ building area About it is 49 square meters 6DK ◇ decorated beautiful pre-renovation ◇ garage two possible ◇建物面積 約49坪6DKです◇リフォーム済みで内装キレイです◇車庫2台可能 |
| ◇ is a south-facing balcony there is a room of Japanese-style sun per good ◇ 9 Pledge ◇ There is a Western-style continuation can be placed in your favorite layout ◇ will be parked two garage (limited size) ◇ super close to ・ station ・ Yes hospital, Life is convenient situated ◇ we will immediately guide you to correspond per vacant house! ! Contact us feel free to ☆ → 0800-808-7253 ◇南向きバルコニーです陽当り良好◇9帖の和室のお部屋があります◇洋室の続きがありますお好きなレイアウトで配置できます◇車庫2台停めれます(サイズ制限あり)◇近隣にスーパー・駅・病院あり、生活至便な立地です◇空き家につき即ご案内対応させていただきます!!お問い合わせはお気軽に☆→0800-808-7253 |
Features pickup 特徴ピックアップ | | Super close / Interior renovation / System kitchen / A quiet residential area / Japanese-style room / Toilet 2 places / Bathroom 1 tsubo or more / South balcony / The window in the bathroom / High-function toilet / Three-story or more / City gas / Attic storage スーパーが近い /内装リフォーム /システムキッチン /閑静な住宅地 /和室 /トイレ2ヶ所 /浴室1坪以上 /南面バルコニー /浴室に窓 /高機能トイレ /3階建以上 /都市ガス /屋根裏収納 | Price 価格 | | 26,800,000 yen 2680万円 | Floor plan 間取り | | 6DK 6DK | Units sold 販売戸数 | | 1 units 1戸 | Land area 土地面積 | | 69.54 sq m (21.03 tsubo) (Registration) 69.54m2(21.03坪)(登記) | Building area 建物面積 | | 164.93 sq m (49.89 tsubo) (Registration) 164.93m2(49.89坪)(登記) | Driveway burden-road 私道負担・道路 | | Nothing 無 | Completion date 完成時期(築年月) | | February 1978 1978年2月 | Address 住所 | | Osaka-shi, Osaka Joto-ku, Furuichi 1 大阪府大阪市城東区古市1 | Traffic 交通 | | Subway Nagahori Tsurumi-ryokuchi Line "Imafuku Tsurumi" walk 14 minutes Subway Imazato muscle line "Shimmori Furuichi" walk 14 minutes Subway Imazato muscle line "Sekime growth" walk 17 minutes 地下鉄長堀鶴見緑地線「今福鶴見」歩14分 地下鉄今里筋線「新森古市」歩14分 地下鉄今里筋線「関目成育」歩17分
| Person in charge 担当者より | | Person in charge of black Hama 侑弘 Age: 20 Daigyokai experience: Please let me help you !! happy life that was married in November of the year this year ☆ 担当者黒濱 侑弘年齢:20代業界経験:1年今年の11月に入籍しました!!幸せな暮らしのお手伝いを僕にさせてください☆ | Contact お問い合せ先 | | TEL: 0800-808-7253 [Toll free] mobile phone ・ Also available from PHS Caller ID is not notified Please contact the "saw SUUMO (Sumo)" If it does not lead, If the real estate company TEL:0800-808-7253【通話料無料】携帯電話・PHSからもご利用いただけます 発信者番号は通知されません 「SUUMO(スーモ)を見た」と問い合わせください つながらない方、不動産会社の方は
| Building coverage, floor area ratio 建ぺい率・容積率 | | 60% ・ 200% 60%・200% | Time residents 入居時期 | | Immediate available 即入居可 | Land of the right form 土地の権利形態 | | Ownership 所有権 | Structure and method of construction 構造・工法 | | Wooden 4-story 木造4階建 | Renovation リフォーム | | July 2013 interior renovation completed (kitchen ・ wall) 2013年7月内装リフォーム済(キッチン・壁) | Use district 用途地域 | | One dwelling 1種住居 | Overview and notices その他概要・特記事項 | | Contact: black Hama 侑弘, Facilities: Public Water Supply, This sewage, City gas, Parking: No 担当者:黒濱 侑弘、設備:公営水道、本下水、都市ガス、駐車場:無 | Company profile 会社概要 | | <Mediation> governor of Osaka Prefecture (1) No. 056319 (Ltd.) rack housing Yubinbango574-0033 Osaka Prefecture Daito Ogimachi 6-17 <仲介>大阪府知事(1)第056319号(株)ラックハウジング〒574-0033 大阪府大東市扇町6-17 |
Local appearance photo現地外観写真  Joto-ku, Furuichi 1-chome, is a four-story house
城東区古市1丁目4階建のお家です
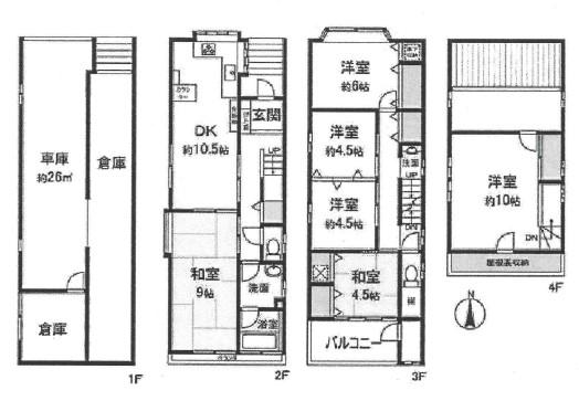
Floor plan間取り図  26,800,000 yen, 6DK, Land area 69.54 sq m , It is a building area of 164.93 sq m 6DK + garage two of the floor plan
2680万円、6DK、土地面積69.54m2、建物面積164.93m2 6DK+車庫2台の間取りです
Local appearance photo現地外観写真  There is attic storage
屋根裏収納あります
Livingリビング  Storage is plenty of kitchen
収納たっぷりのキッチンです
Bathroom浴室  This bath was loose
ゆったりしたお風呂です
Kitchenキッチン  L-type is a system Kitchen
L型システムキッチンです
Non-living roomリビング以外の居室  3F is a Western-style
3Fの洋室です
Entrance玄関  It is the entrance door
玄関ドアです
Wash basin, toilet洗面台・洗面所  There is a wash basin also in shampoo dresser 3F
シャンプードレッサーです3Fにも洗面台あります
Receipt収納  Is a Japanese-style room of storage can hold a lot
和室の収納ですたくさん収納できます
Toiletトイレ  It is a high-function toilet
高機能トイレです
Otherその他  Can you please slow your preview per vacant house
空き家につきごゆっくりご内覧して頂けます
Non-living roomリビング以外の居室  Bright Japanese-style room
明るい和室です
Entrance玄関  It is a photograph that was seen from the entrance
玄関から見た写真です
Toiletトイレ  There are two places toilet
トイレ2箇所あります
Otherその他  Large balcony day is good
広いバルコニーです日当り良好です
Non-living roomリビング以外の居室  It is 9 Pledge of Japanese-style room of 2F
2Fの9帖の和室です
Entrance玄関  There are shoes BOX
シューズBOXあります
Non-living roomリビング以外の居室  All room has been cross Chokawa
全居室クロス張替してます
 Broad Western-style
広い洋室です
Location
|