|
|
Osaka-shi, Osaka Miyakojima-ku
大阪府大阪市都島区
|
|
Subway Tanimachi Line "Noe in the bill" walk 11 minutes
地下鉄谷町線「野江内代」歩11分
|
|
Land area of about 38 square meters!
土地面積約38坪!
|
|
The first floor is the five can park becomes a garage
1階は車庫になり5台駐車可能です
|
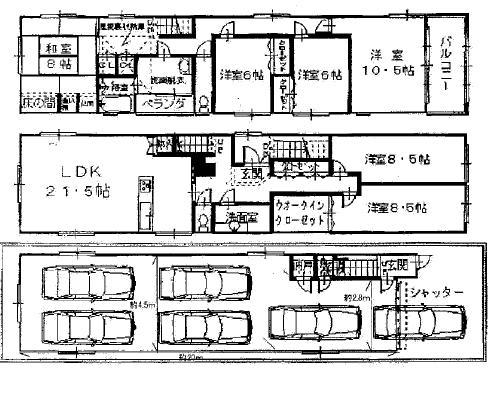
Features pickup 特徴ピックアップ | | Parking three or more possible / 2 along the line more accessible / LDK20 tatami mats or more / Facing south / System kitchen / Yang per good / Flat to the station / Face-to-face kitchen / Security enhancement / Shutter - garage / South balcony / TV monitor interphone / Ventilation good / Three-story or more 駐車3台以上可 /2沿線以上利用可 /LDK20畳以上 /南向き /システムキッチン /陽当り良好 /駅まで平坦 /対面式キッチン /セキュリティ充実 /シャッタ-車庫 /南面バルコニー /TVモニタ付インターホン /通風良好 /3階建以上 |
Price 価格 | | 48,800,000 yen 4880万円 |
Floor plan 間取り | | 6LDK 6LDK |
Units sold 販売戸数 | | 1 units 1戸 |
Land area 土地面積 | | 124.58 sq m (registration) 124.58m2(登記) |
Building area 建物面積 | | 277.07 sq m (registration) 277.07m2(登記) |
Driveway burden-road 私道負担・道路 | | Nothing, South 6m width (contact the road width 4.5m) 無、南6m幅(接道幅4.5m) |
Completion date 完成時期(築年月) | | December 1988 1988年12月 |
Address 住所 | | Osaka-shi, Osaka Miyakojima-ku Miyuki-cho 1 大阪府大阪市都島区御幸町1 |
Traffic 交通 | | Subway Tanimachi Line "Noe in the bill" walk 11 minutes Subway Tanimachi Line "Miyakojima" walk 13 minutes Keihan "Noe" walk 17 minutes 地下鉄谷町線「野江内代」歩11分 地下鉄谷町線「都島」歩13分 京阪本線「野江」歩17分
|
Related links 関連リンク | | [Related Sites of this company] 【この会社の関連サイト】 |
Person in charge 担当者より | | Person in charge of real-estate and building Yamamoto 鎬幸 Age: 30 Daigyokai Experience: 5 years buying and selling Please leave the House Grant Co., Ltd. Yamamoto! We look forward to be only in the consultation of the mortgage! Together, such as property to be worried about it will be announced! 担当者宅建山本 鎬幸年齢:30代業界経験:5年売買はハウスグラント(株)山本にお任せ下さい!住宅ローンの御相談のみでもお待ちしております! 気になる物件などまとめてご案内させていただきます! |
Contact お問い合せ先 | | TEL: 0800-805-5823 [Toll free] mobile phone ・ Also available from PHS Caller ID is not notified Please contact the "saw SUUMO (Sumo)" If it does not lead, If the real estate company TEL:0800-805-5823【通話料無料】携帯電話・PHSからもご利用いただけます 発信者番号は通知されません 「SUUMO(スーモ)を見た」と問い合わせください つながらない方、不動産会社の方は
|
Building coverage, floor area ratio 建ぺい率・容積率 | | 80% ・ 300% 80%・300% |
Time residents 入居時期 | | Consultation 相談 |
Land of the right form 土地の権利形態 | | Ownership 所有権 |
Structure and method of construction 構造・工法 | | Steel frame three-story 鉄骨3階建 |
Overview and notices その他概要・特記事項 | | Contact: Yamamoto 鎬幸, Facilities: Public Water Supply, This sewage, City gas 担当者:山本 鎬幸、設備:公営水道、本下水、都市ガス |
Company profile 会社概要 | | <Mediation> governor of Osaka Prefecture (1) the first 054,416 No. House Grant Co. Yubinbango536-0004 Osaka Joto-ku Imafukunishi 2-13-8 <仲介>大阪府知事(1)第054416号ハウスグラント(株)〒536-0004 大阪府大阪市城東区今福西2-13-8 |