1965September
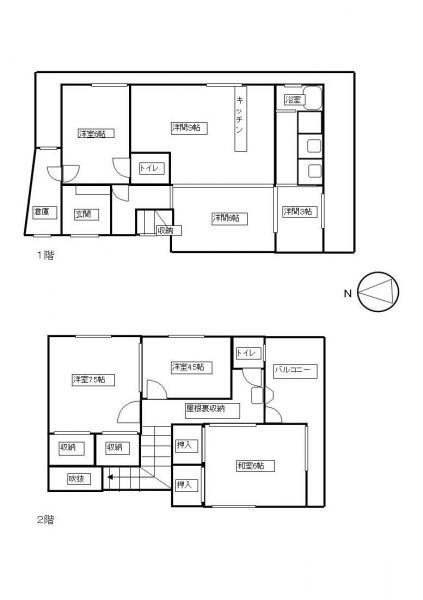
19 million yen, 6LDK, 127.97 sq m
Used Homes » Kansai » Osaka prefecture » Miyakojima-ku
 
| | Osaka-shi, Osaka Miyakojima-ku 大阪府大阪市都島区 |
| Subway Tanimachi Line "Tenjinbashisujirokuchome" walk 24 minutes 地下鉄谷町線「天神橋筋六丁目」歩24分 |
| Local briefings! Customers of hope, Please contact House create 0120-838-660. 現地説明会開催!ご希望のお客様は、ハウスクリエイト0120-838-660までお問合せください。 |
| We will send you detailed documentation! "Material charge" Please request from the button. 詳しい資料お送りいたします!「資料請求する」ボタンからご請求ください。 |
Price 価格 | | 19 million yen 1900万円 | Floor plan 間取り | | 6LDK 6LDK | Units sold 販売戸数 | | 1 units 1戸 | Land area 土地面積 | | 109.31 sq m (registration) 109.31m2(登記) | Building area 建物面積 | | 127.97 sq m (registration) 127.97m2(登記) | Driveway burden-road 私道負担・道路 | | 9.81 sq m , West 1.1m width 9.81m2、西1.1m幅 | Completion date 完成時期(築年月) | | September 1965 1965年9月 | Address 住所 | | Osaka-shi, Osaka Miyakojima-ku KEMA-cho 4 大阪府大阪市都島区毛馬町4 | Traffic 交通 | | Subway Tanimachi Line "Tenjinbashisujirokuchome" walk 24 minutes 地下鉄谷町線「天神橋筋六丁目」歩24分
| Contact お問い合せ先 | | TEL: 0800-805-3496 [Toll free] mobile phone ・ Also available from PHS Caller ID is not notified Please contact the "saw SUUMO (Sumo)" If it does not lead, If the real estate company TEL:0800-805-3496【通話料無料】携帯電話・PHSからもご利用いただけます 発信者番号は通知されません 「SUUMO(スーモ)を見た」と問い合わせください つながらない方、不動産会社の方は
| Building coverage, floor area ratio 建ぺい率・容積率 | | 60% ・ 200% 60%・200% | Land of the right form 土地の権利形態 | | Ownership 所有権 | Structure and method of construction 構造・工法 | | Wooden 2-story 木造2階建 | Use district 用途地域 | | Two mid-high 2種中高 | Company profile 会社概要 | | <Mediation> governor of Osaka (3) No. 049266 (Ltd.) House Create Yubinbango571-0039 Osaka Prefecture Kadoma Hayami-cho 9-17 <仲介>大阪府知事(3)第049266号(株)ハウスクリエイト〒571-0039 大阪府門真市速見町9-17 |
 Local appearance photo
現地外観写真
 Local appearance photo
現地外観写真
Floor plan間取り図  19 million yen, 6LDK, Land area 109.31 sq m , Building area 127.97 sq m
1900万円、6LDK、土地面積109.31m2、建物面積127.97m2
Location
|