1986May
8.8 million yen, 4DK + S (storeroom), 77.91 sq m
Used Homes » Kansai » Osaka prefecture » Nishiyodogawa
 
| | Osaka-shi, Osaka Nishiyodogawa 大阪府大阪市西淀川区 |
| Hanshin "Himejima" walk 5 minutes 阪神本線「姫島」歩5分 |
| ☆ To customers who have received contact us by phone, When your contracts concluded 32 inches TV for free First 50 people limited! ! ☆ Mortgage counseling is also being accepted for free! Absolute confidence in the mortgage! ! ☆お電話でお問い合わせ頂きましたお客様に、ご成約時32インチテレビプレゼント中 先着50名様限定!!☆住宅ローン相談も無料で受付中!住宅ローンに絶対の自信!! |
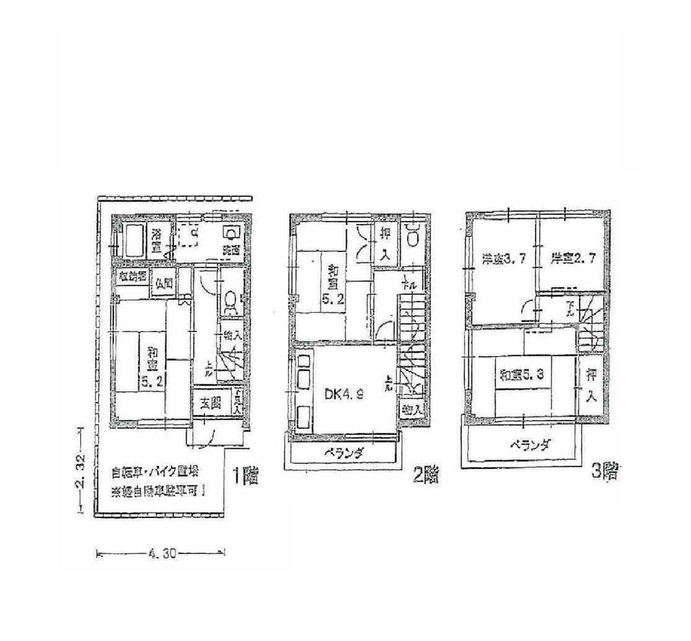
Features pickup 特徴ピックアップ | | Flat to the station / Shaping land / Toilet 2 places / Three-story or more / Flat terrain 駅まで平坦 /整形地 /トイレ2ヶ所 /3階建以上 /平坦地 | Price 価格 | | 8.8 million yen 880万円 | Floor plan 間取り | | 4DK + S (storeroom) 4DK+S(納戸) | Units sold 販売戸数 | | 1 units 1戸 | Land area 土地面積 | | 44.13 sq m (measured) 44.13m2(実測) | Building area 建物面積 | | 77.91 sq m 77.91m2 | Driveway burden-road 私道負担・道路 | | Nothing 無 | Completion date 完成時期(築年月) | | May 1986 1986年5月 | Address 住所 | | Osaka-shi, Osaka Nishiyodogawa Himesato 2 大阪府大阪市西淀川区姫里2 | Traffic 交通 | | Hanshin "Himejima" walk 5 minutes 阪神本線「姫島」歩5分
| Related links 関連リンク | | [Related Sites of this company] 【この会社の関連サイト】 | Contact お問い合せ先 | | ASOQ real estate distribution (Ltd.) TEL: 0800-601-6293 [Toll free] mobile phone ・ Also available from PHS Caller ID is not notified Please contact the "saw SUUMO (Sumo)" If it does not lead, If the real estate company ASOQ不動産流通(株)TEL:0800-601-6293【通話料無料】携帯電話・PHSからもご利用いただけます 発信者番号は通知されません 「SUUMO(スーモ)を見た」と問い合わせください つながらない方、不動産会社の方は
| Time residents 入居時期 | | Consultation 相談 | Land of the right form 土地の権利形態 | | Ownership 所有権 | Structure and method of construction 構造・工法 | | Steel frame three-story 鉄骨3階建 | Overview and notices その他概要・特記事項 | | Parking: car space 駐車場:カースペース | Company profile 会社概要 | | <Marketing alliance (mediated)> governor of Osaka Prefecture (1) No. 056802 ASOQ real estate distribution (Ltd.) Yubinbango554-0012 Osaka Konohana Ward Nishikujo 3-12-17 <販売提携(媒介)>大阪府知事(1)第056802号ASOQ不動産流通(株)〒554-0012 大阪府大阪市此花区西九条3-12-17 |
 Local appearance photo
現地外観写真
Floor plan間取り図  8.8 million yen, 4DK + S (storeroom), Land area 44.13 sq m , Building area 77.91 sq m
880万円、4DK+S(納戸)、土地面積44.13m2、建物面積77.91m2
 Local appearance photo
現地外観写真
 Parking lot
駐車場
Post office郵便局  Nishiyodogawa 403m until the post office
西淀川郵便局まで403m
Location
|