Used Homes » Kansai » Osaka prefecture » Sumiyoshi-ku
 
| | Osaka-shi, Osaka Sumiyoshi-ku, 大阪府大阪市住吉区 |
| Hankai Uemachi Line "Tezukayama Yonchome" walk 6 minutes 阪堺電気軌道上町線「帝塚山四丁目」歩6分 |
| In House Grant, Property can be introduce in Osaka throughout. Especially Abeno Ward ・ Tennoji ・ Higashi Sumiyoshi Ward ・ We are strengthening the Sumiyoshi-ku,. We will wait for local information, such as do not hesitate to contact us. ハウスグラントでは、大阪全域での物件をご紹介可能です。特に阿倍野区・天王寺・東住吉区・住吉区を強化しております。地域情報などお気軽にお問合せお待ちしております。 |
| Heisei 20 years completion of the built shallow property is located in the southeast corner lot of good close day by Bandai pond park is outstanding environment 平成20年完成の築浅物件です南東角地で日当たり抜群ですよ万代池公園も近く環境の良い立地です |
Features pickup 特徴ピックアップ | | Immediate Available / 2 along the line more accessible / Super close / Interior renovation / Facing south / System kitchen / Bathroom Dryer / Yang per good / All room storage / Around traffic fewer / Corner lot / Japanese-style room / Washbasin with shower / Toilet 2 places / South balcony / Warm water washing toilet seat / TV monitor interphone / IH cooking heater / Dish washing dryer / Three-story or more / Floor heating 即入居可 /2沿線以上利用可 /スーパーが近い /内装リフォーム /南向き /システムキッチン /浴室乾燥機 /陽当り良好 /全居室収納 /周辺交通量少なめ /角地 /和室 /シャワー付洗面台 /トイレ2ヶ所 /南面バルコニー /温水洗浄便座 /TVモニタ付インターホン /IHクッキングヒーター /食器洗乾燥機 /3階建以上 /床暖房 | Event information イベント情報 | | Local guide Board (Please be sure to ask in advance) schedule / Every Saturday, Sunday and public holidays time / 9:00 ~ 20:00 現地案内会(事前に必ずお問い合わせください)日程/毎週土日祝時間/9:00 ~ 20:00 | Price 価格 | | 26,800,000 yen 2680万円 | Floor plan 間取り | | 4LDK 4LDK | Units sold 販売戸数 | | 1 units 1戸 | Land area 土地面積 | | 51.81 sq m (registration) 51.81m2(登記) | Building area 建物面積 | | 99.68 sq m (registration) 99.68m2(登記) | Driveway burden-road 私道負担・道路 | | Nothing, South 5m width (contact the road width 10.9m) 無、南5m幅(接道幅10.9m) | Completion date 完成時期(築年月) | | June 2008 2008年6月 | Address 住所 | | Osaka-shi, Osaka Sumiyoshi-ku, Bandai 5 大阪府大阪市住吉区万代5 | Traffic 交通 | | Hankai Uemachi Line "Tezukayama Yonchome" walk 6 minutes Subway Midosuji Line "Nishitanabe" walk 20 minutes Subway Yotsubashi Line "Tamade" walk 16 minutes 阪堺電気軌道上町線「帝塚山四丁目」歩6分 地下鉄御堂筋線「西田辺」歩20分 地下鉄四つ橋線「玉出」歩16分
| Related links 関連リンク | | [Related Sites of this company] 【この会社の関連サイト】 | Person in charge 担当者より | | Personnel Shuhei Asahina Age: 20 Daigyokai experience: While looking for 5-year housing is what originally fun, Is the body and mind and get tired easily at the same time. Because where I am to reduce it even a little, And we enjoy the best in, Best housing to allow the suggestions "bright, We try to cheerfully ". 担当者朝比奈修平年齢:20代業界経験:5年住宅探しは本来は楽しいものですが、同時に身も心も疲れやすいです。それを少しでも軽減して頂く為、そして最高に楽しんで頂き、最高の住宅をご提案出来るように「明るく、元気に」を心掛けています。 | Contact お問い合せ先 | | TEL: 0800-805-5825 [Toll free] mobile phone ・ Also available from PHS Caller ID is not notified Please contact the "saw SUUMO (Sumo)" If it does not lead, If the real estate company TEL:0800-805-5825【通話料無料】携帯電話・PHSからもご利用いただけます 発信者番号は通知されません 「SUUMO(スーモ)を見た」と問い合わせください つながらない方、不動産会社の方は
| Building coverage, floor area ratio 建ぺい率・容積率 | | 60% ・ 200% 60%・200% | Time residents 入居時期 | | Immediate available 即入居可 | Land of the right form 土地の権利形態 | | Ownership 所有権 | Structure and method of construction 構造・工法 | | Wooden three-story 木造3階建 | Renovation リフォーム | | October 2013 interior renovation completed (wall) 2013年10月内装リフォーム済(壁) | Use district 用途地域 | | Two mid-high 2種中高 | Overview and notices その他概要・特記事項 | | Contact: Shuhei Asahina, Facilities: Public Water Supply, This sewage, City gas, Parking: car space 担当者:朝比奈修平、設備:公営水道、本下水、都市ガス、駐車場:カースペース | Company profile 会社概要 | | <Mediation> governor of Osaka Prefecture (1) the first 054,416 No. House Grant (Ltd.) Abeno shop Yubinbango545-0011 Osaka Abeno-ku, Osaka Showacho 2-19-24 <仲介>大阪府知事(1)第054416号ハウスグラント(株)阿倍野店〒545-0011 大阪府大阪市阿倍野区昭和町2-19-24 |
Local appearance photo現地外観写真  Since it is the southeast corner lot day ・ Ventilation will also good
南東角地ですので日当たり・通風も良好でうよ
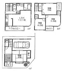
Floor plan間取り図  26,800,000 yen, 4LDK, Land area 51.81 sq m , It is a building area of 99.68 sq m southeast corner lot
2680万円、4LDK、土地面積51.81m2、建物面積99.68m2 南東角地です
Livingリビング  It is a bright living room that incorporates a lot of daylight
採光を多く取り入れた明るいリビングです
Kitchenキッチン  This is a system kitchen with a dishwasher
食器洗い乾燥機付きのシステムキッチンです
Bathroom浴室  Popular bathroom is equipped with TV
人気の浴室テレビ付きです
Non-living roomリビング以外の居室  Japanese-style room is also a bright room light enters
和室も光が入り明るいお部屋です
 What room is also day preeminent
どのお部屋も日当たり抜群です
Wash basin, toilet洗面台・洗面所  Is unified in white is a washroom with a clean
白で統一されて清潔感のある洗面所です
Toiletトイレ  Toilet is with a bidet
ウォシュレット付きのトイレです
Local appearance photo現地外観写真  Stylish appearance in which the white tones
白を基調としたおしゃれな外観です
Location
|