|
|
Osaka-shi, Osaka Tsurumi-ku,
大阪府大阪市鶴見区
|
|
Subway Nagahori Tsurumi-ryokuchi Line "Kadoma south" walk 13 minutes
地下鉄長堀鶴見緑地線「門真南」歩13分
|
|
Corresponding to the flat-35S, It is close to the city, System kitchen, Flat to the station, Washbasin with shower, Face-to-face kitchen, Toilet 2 places, All living room flooring, Built garage, Three-story or more, Livin
フラット35Sに対応、市街地が近い、システムキッチン、駅まで平坦、シャワー付洗面台、対面式キッチン、トイレ2ヶ所、全居室フローリング、ビルトガレージ、3階建以上、リビン
|
|
4LDK! ! 2005 Built! ! 3 floor skylight Yes! ! Attic storage there !! Mitsui Outlet nearby! !
4LDK!!平成17年築!!3階は天窓有!!屋根裏収納有り!!三井アウトレット近く!!
|
Features pickup 特徴ピックアップ | | Corresponding to the flat-35S / It is close to the city / System kitchen / Flat to the station / Washbasin with shower / Face-to-face kitchen / Toilet 2 places / All living room flooring / Built garage / Three-story or more / Living stairs / Attic storage フラット35Sに対応 /市街地が近い /システムキッチン /駅まで平坦 /シャワー付洗面台 /対面式キッチン /トイレ2ヶ所 /全居室フローリング /ビルトガレージ /3階建以上 /リビング階段 /屋根裏収納 |
Event information イベント情報 | | Local guide Board (Please be sure to ask in advance) schedule / Now open 現地案内会(事前に必ずお問い合わせください)日程/公開中 |
Price 価格 | | 21.5 million yen 2150万円 |
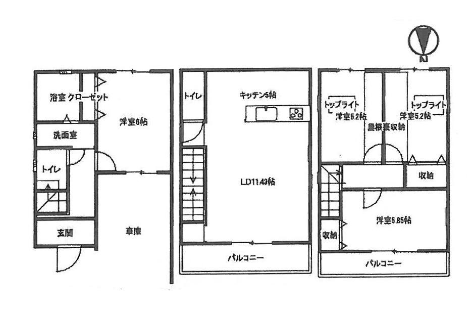
Floor plan 間取り | | 4LDK 4LDK |
Units sold 販売戸数 | | 1 units 1戸 |
Total units 総戸数 | | 1 units 1戸 |
Land area 土地面積 | | 57.16 sq m (17.29 tsubo) (Registration) 57.16m2(17.29坪)(登記) |
Building area 建物面積 | | 99.66 sq m (30.14 tsubo) (Registration) 99.66m2(30.14坪)(登記) |
Driveway burden-road 私道負担・道路 | | Nothing, North 5m width (contact the road width 5.5m) 無、北5m幅(接道幅5.5m) |
Completion date 完成時期(築年月) | | March 2005 2005年3月 |
Address 住所 | | Osaka-shi, Osaka Tsurumi-ku, Matsutaomiya 1 大阪府大阪市鶴見区茨田大宮1 |
Traffic 交通 | | Subway Nagahori Tsurumi-ryokuchi Line "Kadoma south" walk 13 minutes 地下鉄長堀鶴見緑地線「門真南」歩13分
|
Related links 関連リンク | | [Related Sites of this company] 【この会社の関連サイト】 |
Contact お問い合せ先 | | TEL: 06-6958-7888 Please contact as "saw SUUMO (Sumo)" TEL:06-6958-7888「SUUMO(スーモ)を見た」と問い合わせください |
Building coverage, floor area ratio 建ぺい率・容積率 | | 60% ・ 200% 60%・200% |
Time residents 入居時期 | | Consultation 相談 |
Land of the right form 土地の権利形態 | | Ownership 所有権 |
Structure and method of construction 構造・工法 | | Wooden three-story (framing method) 木造3階建(軸組工法) |
Other limitations その他制限事項 | | Quasi-fire zones 準防火地域 |
Overview and notices その他概要・特記事項 | | Facilities: Public Water Supply, This sewage, City gas, Parking: Garage 設備:公営水道、本下水、都市ガス、駐車場:車庫 |
Company profile 会社概要 | | <Mediation> Osaka governor paragraph (1) Art House Co., Ltd. Yubinbango535-0011 Osaka Asahi-ku, the first 053,622 Imaichi 2-22-16 <仲介>大阪府知事(1)第053622号アートハウス(株)〒535-0011 大阪府大阪市旭区今市2-22-16 |